Найти в Дзене

Цифровой двойник: Почему мы не начинаем ремонт, пока не «поживем» в вашей будущей квартире

Сегодня мы поговорим о краеугольном камне нашего рабочего процесса - создании цифрового двойника. Когда клиенты слышат о 3D-визуализации, многие думают: «Ну, картинку мне нарисуют, чтобы было понятно». На самом деле, для нас это не картинка. Это - полноценный прототип вашего дома, который полностью исключает ремонт вслепую. 1. "Прототипирование" вместо "исправления на ходу": Как мы находим ошибки стоимостью в 100+ тысяч рублей Классическая ситуация: на бумажном плане все идеально. Но когда начинается ремонт, выясняется, что радиатор отопления висит именно там, где планировался встроенный шкаф, а подоконник слишком низкий для столешницы «барной» кухни. Точная 3D-модель — это цифровой конструктор, где учтено все: · Инженерные коммуникации: Разводка труб, вентиляционные короба, электросети. · Реальные габариты с учетом толщины стен, плинтусов, напольных покрытий. · Эргономика: Мы проверяем, комфортно ли будет открывать дверцы, выдвигать ящики, проходить между предметами мебели. 2.

И причем здесь экономия до 30% от бюджета. Объясняем на пальцах, как 3D-модель спасает от дорогостоящих ошибок и помогает принять все верные решения до начала стройки.

Сегодня мы поговорим о краеугольном камне нашего рабочего процесса - создании цифрового двойника. Когда клиенты слышат о 3D-визуализации, многие думают: «Ну, картинку мне нарисуют, чтобы было понятно». На самом деле, для нас это не картинка. Это - полноценный прототип вашего дома, который полностью исключает ремонт вслепую.

1. "Прототипирование" вместо "исправления на ходу": Как мы находим ошибки стоимостью в 100+ тысяч рублей

Классическая ситуация: на бумажном плане все идеально. Но когда начинается ремонт, выясняется, что радиатор отопления висит именно там, где планировался встроенный шкаф, а подоконник слишком низкий для столешницы «барной» кухни.

Точная 3D-модель — это цифровой конструктор, где учтено все:

· Инженерные коммуникации: Разводка труб, вентиляционные короба, электросети.

· Реальные габариты с учетом толщины стен, плинтусов, напольных покрытий.

· Эргономика: Мы проверяем, комфортно ли будет открывать дверцы, выдвигать ящики, проходить между предметами мебели.

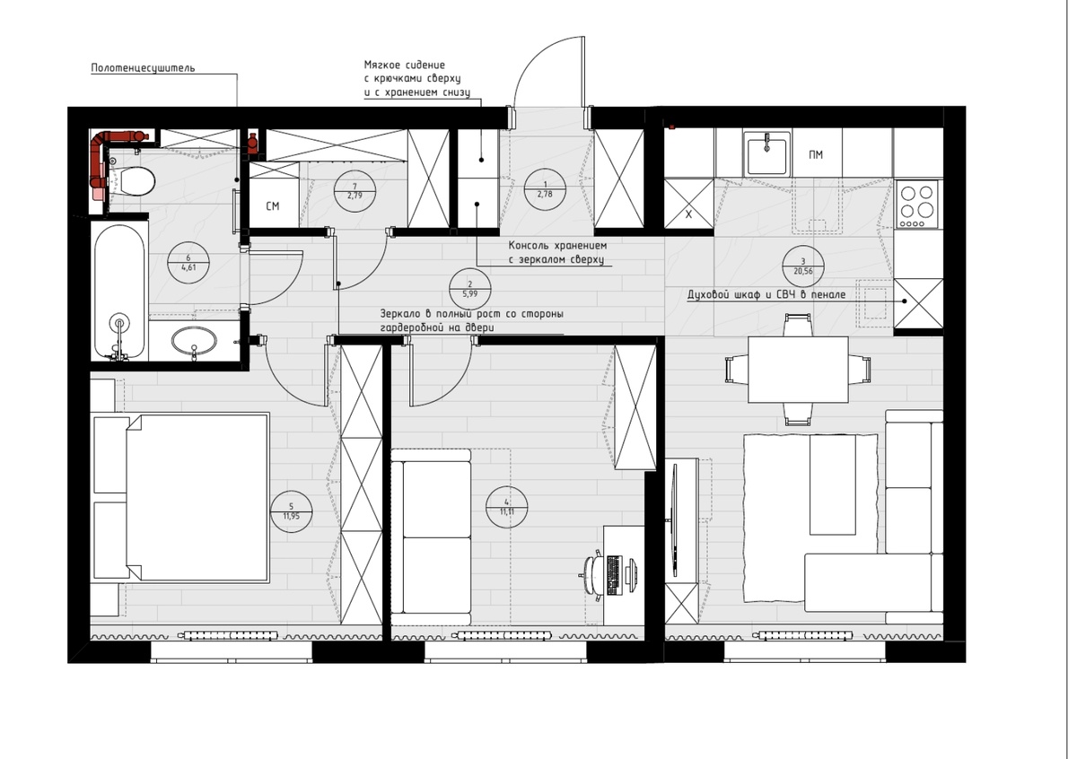
На изображении - план расстановки мебели, который помогает учесть все параметры мебели и размеры помещений.
На изображении - план расстановки мебели, который помогает учесть все параметры мебели и размеры помещений.

Это - 3D визуализации, четко отражающие, как это будет выглядеть в реальной жизни после ремонта с учетом габаритов предметов мебели.
Это - 3D визуализации, четко отражающие, как это будет выглядеть в реальной жизни после ремонта с учетом габаритов предметов мебели.

2. Снимки из будущего: Как серия 3D-визуализаций заменяет вам виртуальный тур

Вам не нужна сложная VR-система, чтобы оценить каждый угол будущего дома. Мы создаем не одну общую картинку, а серию детальных «фотографий» из будущего — видовых точек, с которых вы будете смотреть на свой интерьер каждый день.

Мы делаем десятки высокодетализированных рендеров для каждого проекта:

· Виды из ключевых точек: Как будет выглядеть кухня с порога гостиной? Что вы увидите, лежа на диване? Мы показываем интерьер вашими глазами.

· Сравнение «до/после»: Мы делаем рендеры с тех же ракурсов, что и фотографии «до ремонта», чтобы вы наглядно видели трансформацию.

· Сценарии освещения: Мы предоставляем визуализации при дневном свете и при вечернем искусственном освещении, чтобы вы оценили атмосферу в разное время суток.


Это позволяет вам «обжить» пространство мысленно, прежде чем в нем появятся реальные стены.
Это позволяет вам «обжить» пространство мысленно, прежде чем в нем появятся реальные стены.

3. Бюджет с точностью до 90%: Почему наша смета — это не догадки, а точный расчет

Самое пугающее в ремонте — незапланированные расходы. «Ой, мы не учли, что стена кривая и нужно 5 мешков штукатурки», «Этот ламинат вживую выглядит дешево, придется брать другой, дороже».

Наша модель — это цифровая спецификация проекта:

· Виртуальный подбор материалов: Мы «прикладываем» к модели именно те коллекции плитки, обоев и паркета, которые вы выбрали. Вы видите текстуру и цвет в вашем будущем освещении.

· Прозрачная смета: Каждый предмет в модели (от розетки до дивана) привязан к конкретной позиции в смете. Если вы меняете материал фасадов в модели, итоговая сумма в смете меняется автоматически.

Подготовка 3D - визуализаций в нашей студии — это не опция «для красоты». Это:

· Финансовая страховка от ошибок, стоимость которых на объекте возрастает в разы.

· Инструмент принятия решений, который избавляет от стресса и сомнений.

· Гарантия результата, потому что вы получаете ровно тот интерьер, который уже просмотрели на "фото".

Мы не ведем клиентов в слепую. Мы идем с ними в виртуальный тур по их будущему дому, вносим правки, «примеряем» сценарии жизни и только потом превращаем идеальный цифровой прототип в реальность. Потому что наш принцип — ALL IN. Мы погружаемся в проект на 100%.

А вы сталкивались с ошибками в ремонте, которые можно было бы избежать с помощью 3D-модели? Поделитесь своим опытом в комментариях — это поможет другим!