Добавить в корзинуПозвонить
Найти в Дзене

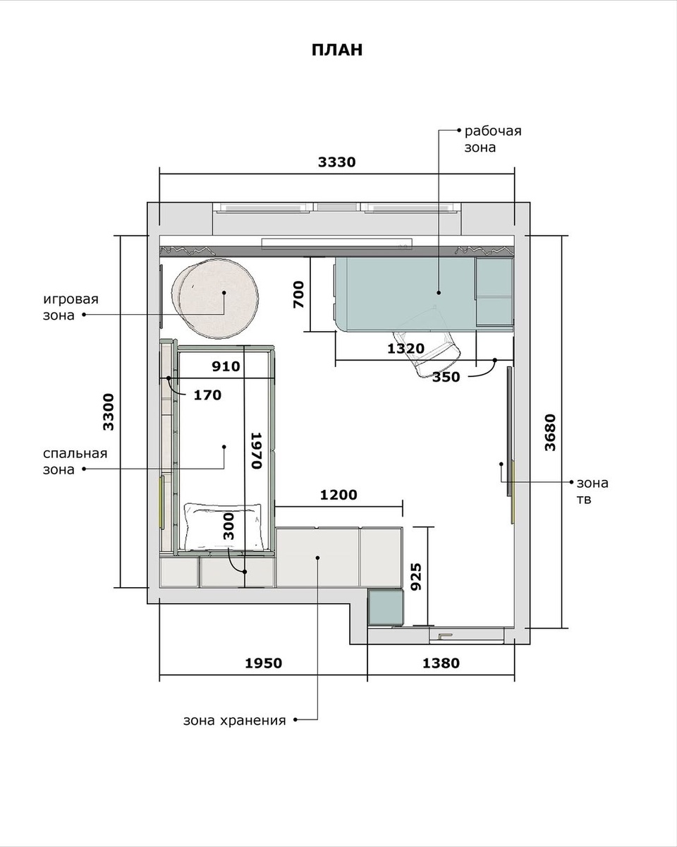
детская девочки | 11,5 кв. м | нск |

первая из двух детских в этой квартире несмотря на компактную площадь, тут получилось вписать все необходимые зоны, появился даже мини-уголок для посиделок ребенка интересный момент с цветовым концептом - здесь он условно "сложный" - 4 оттенка в мебели + текстиль - это добавляет деталей, за которые может дополнительно цепляться глаз __________  #дизайндетской #детскаякомната  #дизайнинтерьера #мебелькраснодар #мебельновосибирск #мебельмосква #дизайнмосква #дизайнновосибирск 

первая из двух детских в этой квартире

несмотря на компактную площадь, тут получилось вписать все необходимые зоны, появился даже мини-уголок для посиделок ребенка

-2

-3

-4

-5

-6

интересный момент с цветовым концептом - здесь он условно "сложный" - 4 оттенка в мебели + текстиль - это добавляет деталей, за которые может дополнительно цепляться глаз

__________

 #дизайндетской #детскаякомната 

#дизайнинтерьера #мебелькраснодар #мебельновосибирск #мебельмосква #дизайнмосква #дизайнновосибирск