Найти в Дзене

Дизайн ванной комнаты: концепция в Планоплане и Remplanner.

План и визуализация второго доработанного варианта ванной комнаты В этой небольшой заметке показываю дизайн ванной комнаты в квартире на Мелитопольской. Моя задача — создать концепцию оформления. Для начала я предложил заказчикам использовать керамическую плитку «Сан-Марко» от Керама Марацци. Этот материал прекрасно преобразит помещение. Общий вид ванной Посмотрите 3D-панораму ванной комнаты, сделанную в Планоплане: Ну и другие ракурсы, дающие прекрасное представление об обстановке: Общий вид ванной Я отказался в этом варианте от идеи объединять стиральную и сушильную машины в колонну. Вместо этого выбрал стиральную машину с функцией сушки. Такой подход упрощает дизайн комнаты. Я не стал прятать технику в пенал, предпочтя оставить пространство вокруг машинки свободным. Над стиральной машиной удобно разместился хозяйственный шкаф. Вид на стиральную машину Вид на ванну Общий вид ванной Ванная комната получилась современная, светлая и легкая. Особое внимание привлекает акцентная стена,
Оглавление

В этой небольшой заметке показываю дизайн ванной комнаты в квартире на Мелитопольской.

Трехкомнатная квартира на Мелитопольской в Москве | Мастерская дизайнера | Дзен

Моя задача — создать концепцию оформления. Для начала я предложил заказчикам использовать керамическую плитку «Сан-Марко» от Керама Марацци. Этот материал прекрасно преобразит помещение.

Общий вид ванной
Общий вид ванной

Посмотрите 3D-панораму ванной комнаты, сделанную в Планоплане:

Preview

Ну и другие ракурсы, дающие прекрасное представление об обстановке:

Общий вид ванной
Общий вид ванной

Я отказался в этом варианте от идеи объединять стиральную и сушильную машины в колонну. Вместо этого выбрал стиральную машину с функцией сушки. Такой подход упрощает дизайн комнаты. Я не стал прятать технику в пенал, предпочтя оставить пространство вокруг машинки свободным. Над стиральной машиной удобно разместился хозяйственный шкаф.

Вид на стиральную машину
Вид на стиральную машину
Вид на ванну
Вид на ванну
Общий вид ванной
Общий вид ванной

Ванная комната получилась современная, светлая и легкая. Особое внимание привлекает акцентная стена, которая понравится женской части семьи: маме и двум девочкам-подросткам.

Но посмотрим по факту.

Доработка 1

После обсуждения с заказчиками мы решили рассмотреть еще один вариант. Он более функциональный, но без фигуры льва. На этой стене разместим крючки для полотенец.

Визуализация  ванной
Визуализация ванной
Визуализация  ванной
Визуализация ванной
Визуализация  ванной
Визуализация ванной

Доработка 2

Обсудил с заказчиками доработку проекта и внес правки. Заменил полотенцесушитель на водяной и повесил его на изначальное место. Переставил крючки и вешалки для полотенец — их достаточно для небольшой ванной. На плане показал сантехнический люк под плиткой над унитазом. Увеличил стеклянную шторку ванны для большего удобства.

Посмотрите 3D-панораму нового варианта ванной.

Preview

Общий вид ванной - доработка 2
Общий вид ванной - доработка 2
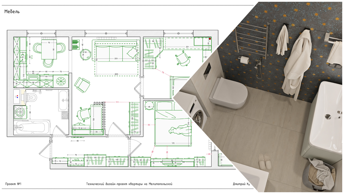
Планировка квартиры
Планировка квартиры
План сантехники в ванной комнате
План сантехники в ванной комнате
Визуализация ванной комнаты
Визуализация ванной комнаты
Визуализация ванной комнаты
Визуализация ванной комнаты
Общий вид ванной комнаты
Общий вид ванной комнаты

Все визуализации и 3D-панорамы разработаны в программе Планоплан.

Чертежи в программе Remplanner.

p.s.

Уроки по Планоплан:

Дизайн-проект интерьера в Планоплане

Услуги дизайна интерьера:

Дмитрий Красса - отзывы, фото проектов, сайт, Архитекторы, Гардеробные и кладовые комнаты, Декораторы и стилисты интерьера, Детские и пеленальные, Дизайнеры интерьера, Корпусная мебель, Лестницы и перила, Освещение, Проектирование и строительство, Производство и установка кухонь, Ремонт и отделка квартир и домов, Специалисты по ремонту кухни, Москва

Уроки по Remplanner:

Дизайн интерьера в Remplanner + Планоплан