Добавить в корзинуПозвонить
Найти в Дзене

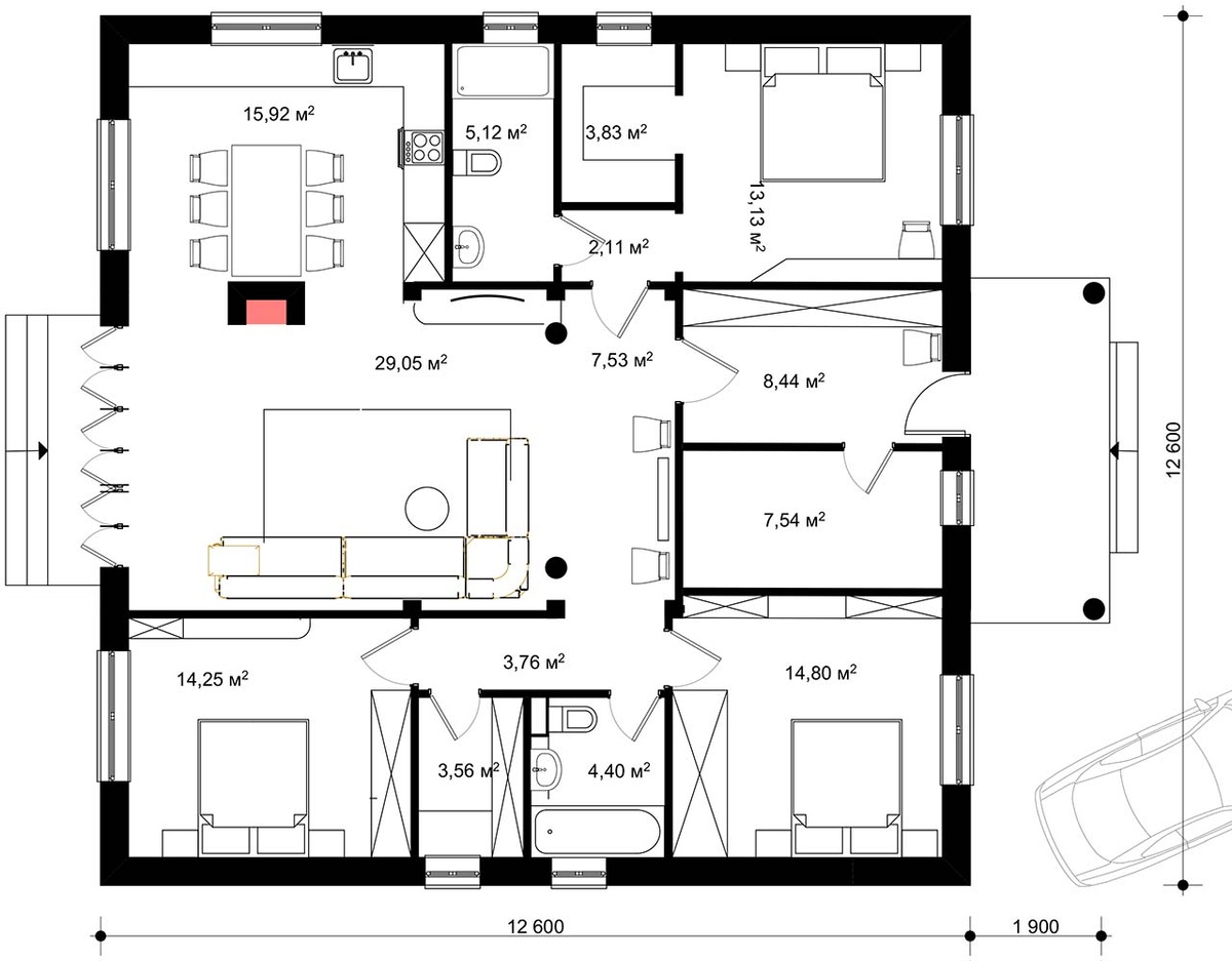
ТАГАНРОГ-2 131 м2- новый проект простого одноэтажного дома с мастер-спальней и двумя детскими.

✅ Проект готовый, условия заказа чертежей - на основном сайте Этот дом - очередная вариация популярного проекта АКСАЙ. 100500 по счёту :)) Вся подборка вот 👇 Середину дома занимают входная группа с котельной, холл и гостиная с выходом в сад. Кухня-столовая от гостиной отделена камином. ✔ Типовая планировка предполагает устройство трёх спален - основной, справа от входа, дополненной гардеробной и душевой; и двух детских с санузлом и кладовкой. ✔ Важно, что детские одинаковой площади, чтобы не было слёз и обид, что "а у него больше комната" 👯‍♂️👯‍♂️ Дом запроектирован без внутренних несущих стен, поэтому планировка может быть изменена. ✔ Например, можно уменьшить котельную, образовав дополнительную кладовую, варьировать размеры детских, сделать кухню более закрытой. ✔ Также, для любителей изолированной кухни при входе в дом, возможен вариант поменять местами кухню-столовую и мастер-спальню. При этом вход в спальню можно устроить как из гостиной, так и и столовой. Конструктивно дом
Оглавление

✅ Проект готовый, условия заказа чертежей - на основном сайте

Этот дом - очередная вариация популярного проекта АКСАЙ. 100500 по счёту :))

Вся подборка вот 👇

Проекты больших одноэтажников простой формы | Инваполис - проекты рациональных домов | Дзен

ПЛАН И ВНУТРЕННЕЕ ПРОСТРАНСТВО

Середину дома занимают входная группа с котельной, холл и гостиная с выходом в сад. Кухня-столовая от гостиной отделена камином.

Типовая планировка предполагает устройство трёх спален - основной, справа от входа, дополненной гардеробной и душевой; и двух детских с санузлом и кладовкой.

✔ Важно, что детские одинаковой площади, чтобы не было слёз и обид, что "а у него больше комната" 👯‍♂️👯‍♂️

Планировка дома, несмотря на компактность и отсутствие коридоров, обеспечивает правильное функциональное зонирование помещений и комфортное безконфликтное пребывание всех жильцов.
Планировка дома, несмотря на компактность и отсутствие коридоров, обеспечивает правильное функциональное зонирование помещений и комфортное безконфликтное пребывание всех жильцов.

ВАРИАНТЫ ПЛАНА

Дом запроектирован без внутренних несущих стен, поэтому планировка может быть изменена.

✔ Например, можно уменьшить котельную, образовав дополнительную кладовую, варьировать размеры детских, сделать кухню более закрытой.

Вместо кладовой можно устроить небольшой кабинетик.
Вместо кладовой можно устроить небольшой кабинетик.

✔ Также, для любителей изолированной кухни при входе в дом, возможен вариант поменять местами кухню-столовую и мастер-спальню. При этом вход в спальню можно устроить как из гостиной, так и и столовой.

В этом варианте возможно устройство камина не только в гостиной, но и с обратной стороны в спальне.
В этом варианте возможно устройство камина не только в гостиной, но и с обратной стороны в спальне.

Конструктивно дом очень простой, с перекрытием из плит и стенами из газобетона. При наличии проектной документации, построить его не составит труда.

  • Заказать документацию можно на страничке проекта дома на сайте бюро ИНВАПОЛИС. Проект разработан в составе "Паспорт + строительный раздел"
  • Другие проекты одноэтажных домов ИНВАПОЛИС здесь

► Чтобы не пропускать публикации, реагируйте лайком 👍 и подписывайтесь на канал, комментируйте, тогда нейросети будут показывать нас вам чаще :)

► Получать обзоры наших проектов и следить за новостями и можно также в ТЕЛЕГРАММ-КАНАЛЕ ИНВАПОЛИС – подписывайтесь, контент немного отличается 😊