Добавить в корзинуПозвонить
Найти в Дзене
DIVAN.RU

Фисташка и модные контрасты: столичная евродвушка 43 кв.м в ЖК «Зиларт»

«Заказчица обратилась ко мне с просьбой разработать дизайн собственной квартиры, — делится дизайнер Зоя Закалюжная. — Основное пожелание: при небольшом бюджете сделать интерьер модным и практичным». Посмотрим на результат. Объект: евродвушка 43 кв.м в ЖК «Зиларт», г. Москва (потолки 3 м) Автор проекта: дизайнер Зоя Закалюжная, автор фото Наталья Вершинина Бюджет проекта: 3,5 млн рублей Реализация: 2024 год Планировку от застройщика слегка переработали. Кусок кухни-гостиной сделали гардеробной с доступом из прихожей. Вход в спальню перенесли на смежную стену, а вдоль первой спроектировали встроенный шкаф. Небольшие изменения на этапе чернового ремонта«усилили» планировку как с точки зрения хранения, так и с визуальной стороны. Во время ремонта для кухонного гарнитура выстроили нишу. Система хранения была сделана по индивидуальному заказу. Фасады кухни на несколько тонов темнее стен, поэтому визуально растворяются в интерьере. Вся бытовая техника встроена, а основное хранение организован
Оглавление

«Заказчица обратилась ко мне с просьбой разработать дизайн собственной квартиры, — делится дизайнер Зоя Закалюжная. — Основное пожелание: при небольшом бюджете сделать интерьер модным и практичным». Посмотрим на результат.

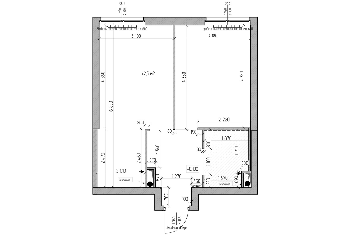
Объект: евродвушка 43 кв.м в ЖК «Зиларт», г. Москва (потолки 3 м)

Автор проекта: дизайнер Зоя Закалюжная, автор фото Наталья Вершинина

Бюджет проекта: 3,5 млн рублей

Реализация: 2024 год

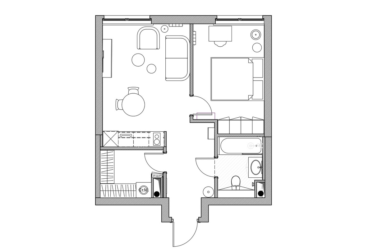
Планировочное решение

Планировку от застройщика слегка переработали. Кусок кухни-гостиной сделали гардеробной с доступом из прихожей. Вход в спальню перенесли на смежную стену, а вдоль первой спроектировали встроенный шкаф. Небольшие изменения на этапе чернового ремонта«усилили» планировку как с точки зрения хранения, так и с визуальной стороны.

Кухня-гостиная

Во время ремонта для кухонного гарнитура выстроили нишу. Система хранения была сделана по индивидуальному заказу. Фасады кухни на несколько тонов темнее стен, поэтому визуально растворяются в интерьере. Вся бытовая техника встроена, а основное хранение организовано в верхних шкафах.

-3

«Круглый стол смягчает геометрию кухни, — отмечает дизайнер. — А черное подстолье и стулья создают контраст. Винтажная картина из соломки с аистами добавляет теплоты».

В гостиную приобрели диван Сорен от divan.ru. Выбор на эту модель пал из-за ее простоты и элегантности. Оттенок обивки сочетается с общим дизайном. Черные ножки дивана рифмуются с другими акцентами в интерьере.

➡️Товары бренда divan.ru

Прием: единство интерьера достигается плавным переходом фисташкового цвета со стены гостиной на потолок в спальне.

Спальня

В центре спальни расположена кровать с «легкой», почти невесомой визуально конструкцией. Рабочая зона у окна дополнена светлой картиной.

На чем сэкономили: керамогранит на подоконниках — недорогое, но эффектное решение для индивидуальности интерьера.

Вместительный шкаф Кимбол от divan.ru с контрастными черными ручками установили в нишу, что помогло «растворить» его в пространстве и добавить интерьеру динамики.

➡️Товары бренда divan.ru

Прихожая

Коридор плавно переходит в кухню-гостиную, открывая вид на панораму окна. У входа — комод с множеством ящиков.

Обратите внимание: входная зона и стена за комодом оформлены в зеленом колор-блоке, объединяющем прихожую по смыслу с остальными помещениями.

Перепланировка позволила организовать гардеробную при входе. Здесь повесили модульную систему хранения из металла с ящиками и полками, спрятали все технические щитки и вывели подключение для стиральной машины.

Гардеробная в малогабаритной квартире — это функциональное счастье. Обои Marburg с журавлями превратили ее в уютное и красивое пространство.
-9

Санузел

Санузел оборудован вместительной тумбой под раковиной и встроенным шкафом над инсталляцией для удобного хранения.

Плитка на полу в санузле повторяет рисунок керамогранита на подоконниках, который имитирует камни различных размеров. Цвет настенной плитки совпадает с цветовой палитрой картин в спальне и прихожей.
-10

🔥 «Черная пятница» в разгаре! Поймайте скидки до 50% в карточках товаров и заберите мебель и аксессуары с максимальной выгодой на divan.ru >>

-11

============================

Оцените интерьер в комментариях, а если материал понравился — не забудьте поставить лайк👍

🖤divan.ru — не только блог про интерьеры, но и производитель доступной дизайнерской мебели. Ищите новые идеи и переходите на сайт, чтобы воплотить их в жизнь