Найти в Дзене
DIVAN.RU

ДО/ПОСЛЕ: преображение однушки 37 кв.м в доме 1914 года в Хамовниках

Изначально здание, в котором находится эта квартира, было четырехэтажным, но в 50-х годах ХХ века надстроили еще два этажа. Однушка расположена в «старой» части, на четвертом этаже. Чтобы новый интерьер смотрелся органично, дизайнер взяла в качестве базы архитектуру здания в стиле позднего модерна и добавила элементы mid-century. Получилось смешение стилей с отсылкой к истории. Заглянем в гости. Объект: квартира 37 кв.м в старом фонде, г. Москва, район Хамовники (потолки 3 м) Автор проекта: дизайнер Анастасия Заркуа, стилист Ольга Олейникова, автор фото Максим Максимов Квартира расположена в доме 1914 года постройки. Здание представляет собой уникальное сочетание позднего модерна (4 этажа) и сталинского ампира (2 верхних этажа, добавлены в середине XX века). Интерьер также сочетает современную мебель и яркие акценты с винтажными предметами и нейтральными оттенками. В квартире открытая планировка с четким зонированием. Перепланировка не потребовалась: кухню отделили легкой перегородкой,
Оглавление

Изначально здание, в котором находится эта квартира, было четырехэтажным, но в 50-х годах ХХ века надстроили еще два этажа. Однушка расположена в «старой» части, на четвертом этаже. Чтобы новый интерьер смотрелся органично, дизайнер взяла в качестве базы архитектуру здания в стиле позднего модерна и добавила элементы mid-century. Получилось смешение стилей с отсылкой к истории. Заглянем в гости.

Объект: квартира 37 кв.м в старом фонде, г. Москва, район Хамовники (потолки 3 м)

Автор проекта: дизайнер Анастасия Заркуа, стилист Ольга Олейникова, автор фото Максим Максимов

Квартира расположена в доме 1914 года постройки. Здание представляет собой уникальное сочетание позднего модерна (4 этажа) и сталинского ампира (2 верхних этажа, добавлены в середине XX века). Интерьер также сочетает современную мебель и яркие акценты с винтажными предметами и нейтральными оттенками.

Пожелания заказчиков

  • Современный дизайн квартиры.
  • Оригинальное оформление, отличное от стандартных «белых» или «серых» интерьеров.

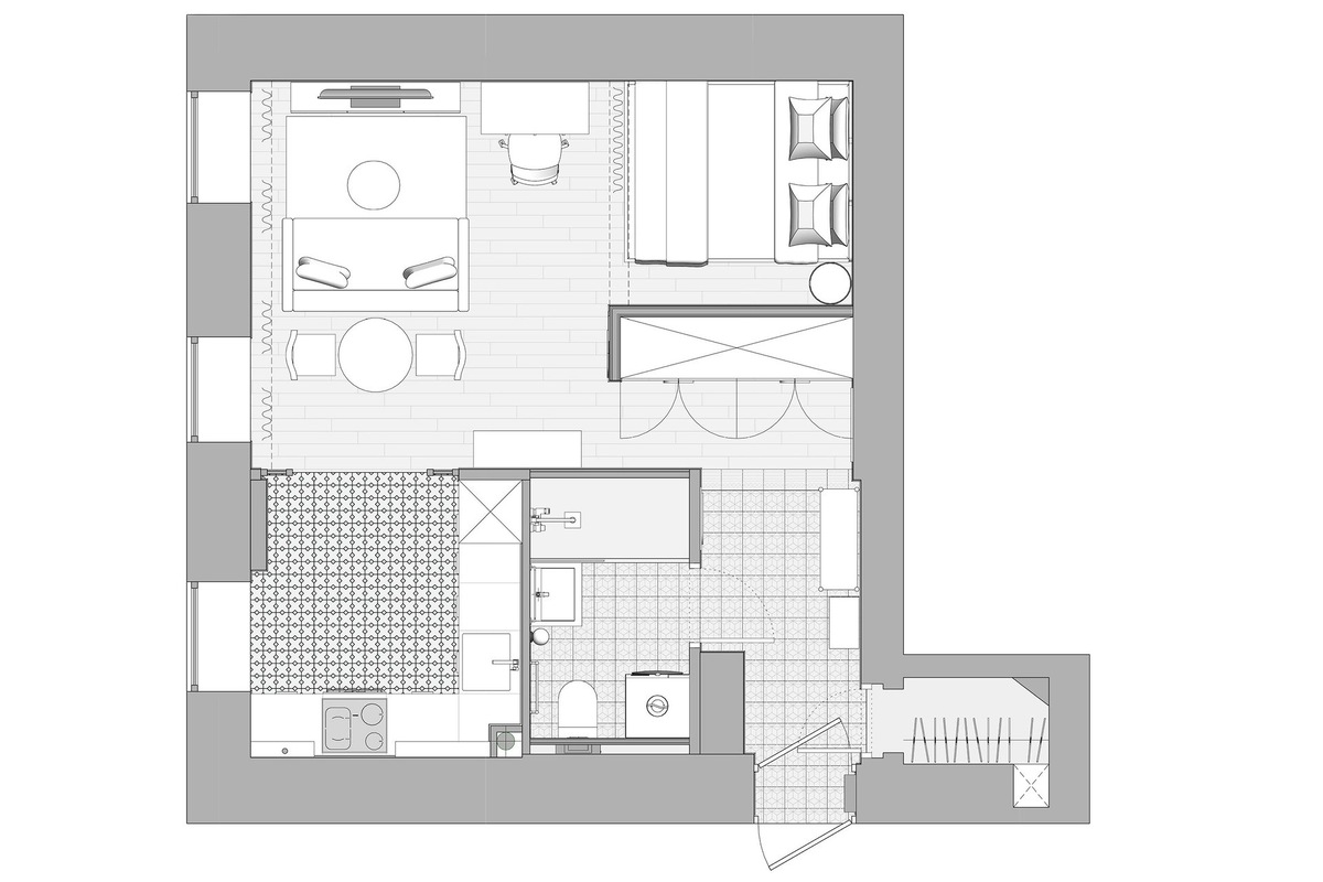
Планировочное решение

В квартире открытая планировка с четким зонированием. Перепланировка не потребовалась: кухню отделили легкой перегородкой, а для шкафа между прихожей и спальной зоной выстроили нишу.

Комната

Последний ремонт в квартире был в начале 2000-х — с тех пор отделку не меняли. Полный демонтаж в целях экономии и ускорения процесса делить не стали: отреставрировали дубовый паркет, сняли старое покрытие со стен, частично заменили электропроводку, смонтировали и покрасили гипсокартонный потолок.

Во время ремонта дизайнер обнаружила арочные кирпичные своды над пластиковыми окнами. Откосы демонтировали, арки восстановили, подчеркнув историю дома. Старые радиаторы отреставрировали.

-4
Компактный диван Коренс заказали у бренда divan.ru. Модель компактная, легкая за счет высоких ножек и низкой спинки — отлично подходит для небольших комнат.

➡️Товары бренда divan.ru

Напротив дивана — тумба под телевизор из светлого дерева. Рядом — рабочее место. Зону отдыха «объединяет» ковер с шахматным узором. Окна закрыли полупрозрачными шторами и рулонными шторами блэкаут для защиты от солнца.

У окна, за диваном, находится обеденная зона с круглым столом (диаметр 70 см) и винтажными стульями.

➡️Товары бренда divan.ru

Спальная зона отделена шкафом (со стороны прихожей) и шторой (со стороны гостиной). Стена за изголовьем оформлена техникой градиент: плотный цвет снизу переходит в светлый у потолка. Яркий акцент — круглая синяя прикроватная тумба.

Кровать «получилась» из двух частей: основание на ножках приобрели у divan.ru, а изголовье в аутентичном стиле заказали на популярном французском сайте.
-7

Кухня

В ходе демонтажных работ на кухне под плиткой была обнаружена «родная» кирпичная кладка. Владельцы приняли решение ее открыть и восстановить.

Угловая планировка гарнитура позволила компактно разместить все необходимое, включая встроенный холодильник. Гладкие фасады в цвет стен визуально «растворяют» мебель. Верхние шкафы расположены только вдоль одной стены, а выразительная кирпичная кладка сохранена как декоративный элемент.

Прихожая

Проблема прямого вида на спальню при входе в квартиру была решена установкой большого шкафа поперек коридора. Это сделало спальную зону приватной и добавило места для хранения.

Состояние прихожей ДО ремонта
Состояние прихожей ДО ремонта

Входная зона акцентирована напольной плиткой, стены окрашены в насыщенный горчичный цвет, а большое зеркало в синей раме добавляет выразительности.

Санузел

Пол санузла выложен той же акцентной 3D-плиткой, что и в прихожей. Нижнюю часть стен покрыли бежевой плиткой, верхнюю — моющейся краской. Вместо ванны установили душевую кабину. Добавили новую сантехнику, тумбу и зеркало.

«Мне очень нравятся световые окна, — говорит дизайнер. — Днем они добавляют естественного света, а вечером создают атмосферу: включаешь свет в ванной, и в гостиной появляется подсветка».

«В этом проекте мне была предоставлена полная свобода в выборе стилистики, благодаря чему удалось реализовать эклектику с историческим подтекстом, — резюмирует дизайнер. — Интерьер создавался по вдохновению, без каких-либо компромиссов в плане экономии, как если бы я делала его для себя».

============================

❄️ Пришла зима, и цены ушли в минус! Успейте купить мебель и аксессуары на divan.ru с дополнительной скидкой −5000 ₽ по промокоду ZIMA >>

-14

============================

Оцените интерьер в комментариях, а если материал понравился — не забудьте поставить лайк👍

🖤divan.ru — не только блог про интерьеры, но и производитель доступной дизайнерской мебели. Ищите новые идеи и переходите на сайт, чтобы воплотить их в жизнь.