Найти в Дзене

ЭТУ ПЛАНИРОВКУ Я СПАСЛА В ПОСЛЕДНИЙ МОМЕНТ - ИНАЧЕ ЖИТЬ БЫЛО БЫ НЕВОЗМОЖНО

Есть одна боль, которая объединяет почти всех заказчиков - планировка. И скажу честно: если этот этап не проработан до мозга костей, квартира будет неудобной на 100%. Неважно, сколько стоит ремонт и какие бренды вы туда поставите - жить в таком пространстве всё равно будет тяжело. Поверьте, я видела это десятки раз. • Кухня отдельно от гостиной - семья существует «по углам», а не вместе. • Коридоры съедают половину площади - метры есть, жизни нет. • Не хватает мест хранения - вещи живут своей жизнью, хозяева - своей. • Спальня вроде есть, а кровать поставить негде - классика. • Пространство кажется меньше, чем оно есть, или просто не для вас. Когда я берусь за проект, я не начинаю с мебели, отделки или красивых Pinterest-картинок. Сначала - ритм жизни семьи: – кто где завтракает, – кто во сколько просыпается, – как движутся по дому, – нужен ли угол тишины или наоборот — зона общения, – как семья хранит вещи, – как проводит вечера. Я выстраиваю сценарии, а уже под них -  логику пр
Оглавление
Есть одна боль, которая объединяет почти всех заказчиков - планировка.

И скажу честно: если этот этап не проработан до мозга костей, квартира будет неудобной на 100%.

Неважно, сколько стоит ремонт и какие бренды вы туда поставите - жить в таком пространстве всё равно будет тяжело.

Поверьте, я видела это десятки раз.

❌ Типичные истории провальных планировок

• Кухня отдельно от гостиной - семья существует «по углам», а не вместе.

• Коридоры съедают половину площади - метры есть, жизни нет.

• Не хватает мест хранения - вещи живут своей жизнью, хозяева - своей.

• Спальня вроде есть, а кровать поставить негде - классика.

• Пространство кажется меньше, чем оно есть, или просто не для вас.

Как я подхожу к спасению планировок

Когда я берусь за проект, я не начинаю с мебели, отделки или красивых Pinterest-картинок.

Сначала - ритм жизни семьи:

– кто где завтракает,

– кто во сколько просыпается,

– как движутся по дому,

– нужен ли угол тишины или наоборот — зона общения,

– как семья хранит вещи,

– как проводит вечера.

Я выстраиваю сценарии, а уже под них -  логику пространства. Потому что планировка - это не «поставить диван напротив ТВ». Это сделать так, чтобы дом работал под вас, а не вы под него.

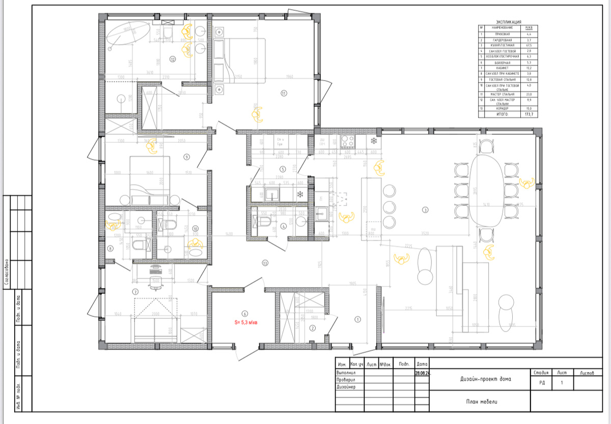
🛠 Было → Стало

Было
Было

Было:

• Проходные зоны съедали ценные метры.

• Логики - ноль, зонирования - ноль.

• Карта дома была, а маршрутов удобства — нет. Планировка не отражала сценарий жизни хозяина.

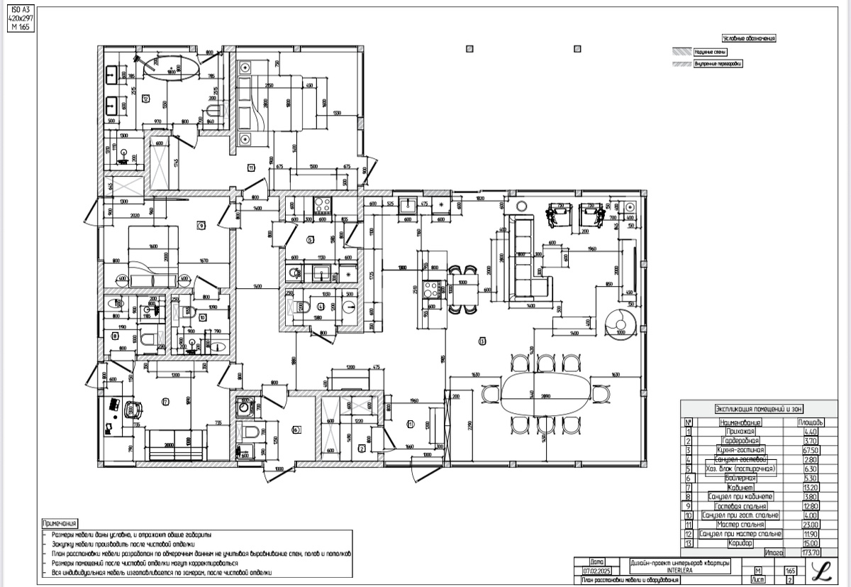
Стало
Стало

Стало:

• Открытая кухня-гостиная - центр жизни.

• Приватная часть отделена - спальни и личные зоны защищены от шума.

• Каждый метр работает - нет пустых и «мертвых» площадей.

•Дом сталбольше без единого дополнительного квадрата.

🎯 Почему грамотная планировка - фундамент

Можно купить самую красивую плитку, заказать кастомную мебель и выбрать дорогие светильники.

Но если логика пространства нарушена, это всё - косметика на проблеме.

Грамотная планировка экономит время, нервы, деньги и делает жизнь легче каждый день.

Это то, что невозможно исправить декором , но можно спасти на старте.

Смотри , с чего начинается реально удобная жизнь