Найти в Дзене
DIVAN.RU

Акцентный изумруд: трешка 70 кв.м для семьи с ребенком

В каждой комнате этой квартиры есть любимый цвет заказчицы — изумрудный. Посмотрим, как удалось его по-разному обыграть. Квартира была сдана без отделки. Изначально планировка включала три комнаты, кухню, два санузла и коридор. Мокрые зоны остались на своих местах. Кухню объединили с соседней комнатой. Все изменения были официально согласованы. Любимый цвет заказчицы, изумрудный, присутствует в каждой комнате квартиры, но обыгран по-разному. В каждом помещении одна или две зоны выполнены в сине-зеленом: в кухне-гостиной — закарнизная ниша и вентиляционный короб, в спальне — верхняя часть стен, в детской — нижняя, а в ванной — участки стен, не облицованные керамогранитом. Стены решили отделать простыми обоями под покраску из-за ограниченного бюджета. Основную часть покрыли белой краской, а вентиляционный и закарнизный короба выделили изумрудной. Угловой кухонный гарнитур без верхних шкафов расположен вдоль стены, обращенной к гостиной. Холодильник и системы хранения интегрированы в нишу
Оглавление

В каждой комнате этой квартиры есть любимый цвет заказчицы — изумрудный. Посмотрим, как удалось его по-разному обыграть.

  • Объект: трехкомнатная квартира 70,3 кв.м, г. Санкт-Петербург (потолки 2,7 м)
  • Автор проекта и декоратор: дизайнер Наталья Трифонова, фотограф: Мария Дмитриева

Пожелания заказчиков

  • Объединить кухню и гостиную.
  • Спроектировать постирочную с сушкой и хранением.
  • Использовать изумрудный цвет в дизайне.

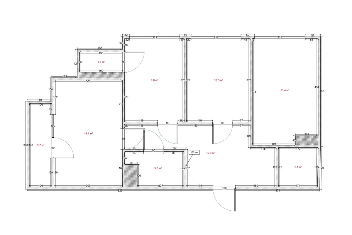
Планировочное решение

Квартира была сдана без отделки. Изначально планировка включала три комнаты, кухню, два санузла и коридор. Мокрые зоны остались на своих местах. Кухню объединили с соседней комнатой. Все изменения были официально согласованы.

Цветовое решение

Любимый цвет заказчицы, изумрудный, присутствует в каждой комнате квартиры, но обыгран по-разному. В каждом помещении одна или две зоны выполнены в сине-зеленом: в кухне-гостиной — закарнизная ниша и вентиляционный короб, в спальне — верхняя часть стен, в детской — нижняя, а в ванной — участки стен, не облицованные керамогранитом.

Кухня-гостиная

Стены решили отделать простыми обоями под покраску из-за ограниченного бюджета. Основную часть покрыли белой краской, а вентиляционный и закарнизный короба выделили изумрудной.

Угловой кухонный гарнитур без верхних шкафов расположен вдоль стены, обращенной к гостиной. Холодильник и системы хранения интегрированы в нишу на боковой стене.

Кухонный гарнитур, фартук «Леруа Мерлен»
Кухонный гарнитур, фартук «Леруа Мерлен»

Прием: для зонирования фартука был использован черный кант. Он, в свою очередь, усилил визуальный ритм, задаваемый другими точечными элементами декора.

Небольшое количество мебели простых форм делает комнату визуально просторной. Центральное место здесь занимает угловой диван Маркфул от divan.ru, подходящий для отдыха и сна. Механизм «пантограф» обеспечивает легкое раскладывание в спальное место. Под сиденьем предусмотрен короб для хранения вещей.
-7

Товары бренда divan.ru

Спальня

Главный элемент спальни — кровать с обивкой насыщенного терракотового цвета. Сначала этот цвет хотели согласовать с оттенком потолка балкона, смежного с комнатой. Но в итоге остановились на более светлом и теплом тоне. С обеих сторон кровати — столики и подвесы.

Единый стиль мебели для спальни и гостиной пришелся по вкусу заказчице. Кровать Маркфул от divan.ru, с ее вертикальной стежкой и ножками, выглядит легкой и не громоздкой. Подходит для небольших помещений.
-8

Обратите внимание: симметричное расположение мебели неосознанно ассоциируется с надежностью и статичностью. «Оно дарит ощущение стабильности, спокойствия и располагает к отдыху», — отмечает дизайнер.

-9

➡️Товары бренда divan.ru

Часть комнаты переоборудовали под гардеробную. Возведенная напротив кровати гипсокартонная перегородка также используется для крепления телевизора.

Прямо из спальни можно выйти на балкон с панорамным остеклением. Дизайн балкона поддерживает общий стиль комнаты. Стены окрашены в изумрудный цвет. На полу керамогранит, как и в ванной. Потолок выделяется ярко-коралловым цветом.

Детская

Детская комната выдержана в той же цветовой гамме, с коричневым диваном-кушеткой в качестве акцента. Напротив — вместительный белый шкаф для хранения. Модель Кимбол от divan.ru выбрана для визуального «растворения» массивной конструкции на фоне белых стен. Фактурный ковер на полу собрал все оттенки комнаты.

-12

Рабочее место школьника у окна оснащено розетками под столешницей для подключения компьютера.

Из комнаты есть выход на еще один небольшой балкон. Полностью стеклянная дверь впускает в комнату больше света. Балкон оформлен аналогично спальне.

Прихожая

Владельцы решили оформить прихожую в белом цвете. Чтобы избежать монотонности, пространство оживили черными графичными деталями: обрамлением двери, зеркалом и фурнитурой. Светлый древесный ламинат на полу смягчил холодность белого интерьера, придав ему уют.

В квартире есть постирочная с санузлом и раковиной, где есть всё для ухода за бельем. Также имеются места для хранения вещей.

Санузел и туалет

Основной санузел отделан миксом плитки и краски. Изумрудный оттенок и декоративное освещение визуально увеличивают пространство. Плитка терраццо и черные детали добавляют динамики.

-17

В санузле установили тумбу с дверцами под раковину и открытый стеллаж. Туалет сделали полностью светлым. Над инсталляцией разместили шкаф для коммуникаций и хранения.

-18

🔥Промокоды BLACK25 и BLACK50 уже в игре! Ловите скидки до 50% в карточках товаров и покупайте мебель и аксессуары с максимальной выгодой на divan.ru >>

-19

============================

Оцените интерьер в комментариях, а если материал понравился — не забудьте поставить лайк👍

🖤divan.ru — не только блог про интерьеры, но и производитель доступной дизайнерской мебели. Ищите новые идеи и переходите на сайт, чтобы воплотить их в жизнь.