Добавить в корзинуПозвонить
Найти в Дзене
Свой Дом

Строим дом из пеноблока: от фундамента до крыши. Пошаговый расчет и реальные цифры

Мечта о собственном доме — с уютными вечерами у окна, детским смехом во дворе и ощущением полной свободы — знакома многим. Но как только дело доходит до реализации, возникает главный вопрос: «А сколько это стоит?». Страх перед неизвестностью и огромными цифрами часто заставляет отложить мечту в долгий ящик. Сегодня мы развеем этот туман. Вместо абстрактных рассуждений мы возьмем реальный проект и «проживем» его строительство от первого колышка до установки водостоков. Наш герой — уютный двухэтажный коттедж (первый этаж и жилая мансарда) из пеноблока в классическом стиле площадью 112,24 м² с тремя спальнями и удобной планировкой. Цель этой статьи — не просто показать итоговую цифру. Мы вместе пройдем по всем этапам, детально разберем каждую крупную статью расходов и поймем, на что именно уходят деньги. Вы увидите, что строительство — это сложный, но абсолютно выполнимый проект, если подойти к нему с умом и четким планом. Прежде чем копать котлован, давайте познакомимся с нашим проектом
Оглавление

Мечта о собственном доме — с уютными вечерами у окна, детским смехом во дворе и ощущением полной свободы — знакома многим. Но как только дело доходит до реализации, возникает главный вопрос: «А сколько это стоит?». Страх перед неизвестностью и огромными цифрами часто заставляет отложить мечту в долгий ящик.

Сегодня мы развеем этот туман. Вместо абстрактных рассуждений мы возьмем реальный проект и «проживем» его строительство от первого колышка до установки водостоков. Наш герой — уютный двухэтажный коттедж (первый этаж и жилая мансарда) из пеноблока в классическом стиле площадью 112,24 м² с тремя спальнями и удобной планировкой.

Цель этой статьи — не просто показать итоговую цифру. Мы вместе пройдем по всем этапам, детально разберем каждую крупную статью расходов и поймем, на что именно уходят деньги. Вы увидите, что строительство — это сложный, но абсолютно выполнимый проект, если подойти к нему с умом и четким планом.

Часть 1: Портрет нашего будущего дома

Прежде чем копать котлован, давайте познакомимся с нашим проектом поближе. Это не просто «коробка», а продуманное пространство для комфортной семейной жизни.

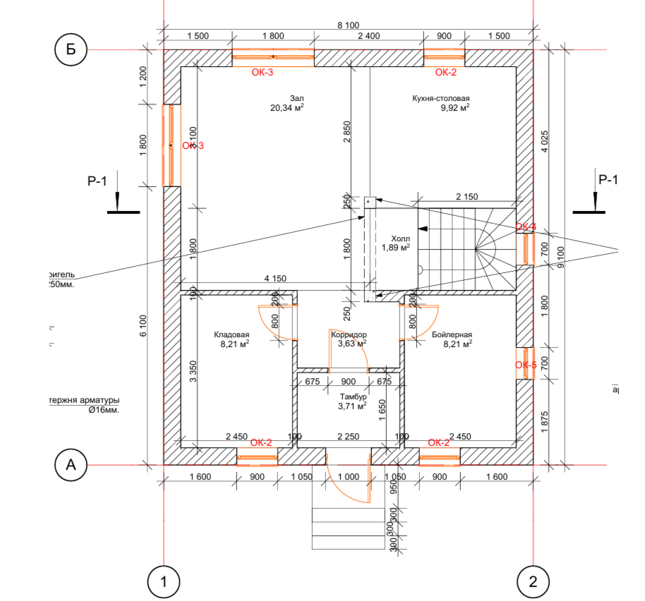
План первого этажа
План первого этажа

  • Общая площадь: 112,24 м²
  • Жилая площадь: 61,58 м²
  • Этажность: 1 этаж + мансарда
  • Материал стен: Пеноблок — популярный, теплый и относительно недорогой материал.
  • Архитектурный стиль: Классический, с гармоничными пропорциями.
  • Кровля: Простая и надежная двухскатная крыша, покрытая металлочерепицей.

Планировка дома — его душа:

  • На первом этаже нас встречает просторный холл, ведущий в сердце дома — светлый зал (19 м²), где будет собираться вся семья. Рядом расположилась удобная кухня-столовая (12 м²), санузел и техническое помещение.
  • Мансардный этаж — это приватная зона. Здесь находятся три спальни: хозяйская (14 м²), детская (15 м²) и еще одна комната (13,5 м²), которую можно оборудовать под гостевую, кабинет или даже небольшой тренажерный зал.

Мансардный этаж
Мансардный этаж

Это образ комфортного семейного гнезда, которое теперь предстоит воплотить в жизнь.

Часть 2: По косточкам: детальный разбор сметы

А теперь самое интересное — деньги. Мы разбили весь процесс строительства на логические этапы, чтобы вы видели, как формируется итоговая стоимость.

Этап 1: Фундамент и полы первого этажа — основа всего

Фундамент — это не просто основа, это гарантия долговечности и надежности всего дома. На этом этапе экономить нельзя. Для нашего дома выбран надежный свайно-ростверковый фундамент с утепленной монолитной плитой по грунту.

  • Основные работы: выемка грунта, бурение свай, установка арматурных каркасов, монтаж опалубки, заливка бетоном ростверка и плиты. Сразу же закладываются гильзы для ввода коммуникаций (вода, канализация).
  • Материалы: бетон, арматура, опалубка, утеплитель (пеноплекс), гидроизоляция, трубы для коммуникаций.
Стоимость этого критически важного этапа составила:Работы: 170 000 руб.
Материалы: 355 000 руб.
Итого по этапу: 525 000 руб.

Этап 2: Возведение стен — растет наша «коробка»

Стены из пеноблока возводятся достаточно быстро. Важно соблюдать технологию кладки, использовать специальный клей и обязательно армировать ряды. Для прочности конструкции между этажами заливается монолитный армопояс.

  • Основные работы: кладка стен первого и мансардного этажей, монтаж перемычек над окнами и дверями, устройство монолитного армопояса, монтаж и демонтаж строительных лесов.
  • Материалы: пеноблок, клей для блоков, арматура, бетон для армопояса и перемычек, пиломатериалы для лесов.
Строительство стен — один из самых затратных этапов:Работы: 210 000 руб.
Материалы: 445 000 руб.
Итого по этапу: 655 000 руб.

Этап 3: Межэтажное перекрытие

Чтобы разделить первый и мансардный этажи, в нашем проекте используются заводские железобетонные плиты перекрытия. Это быстрый и надежный способ, требующий привлечения крана.

  • Основные работы: монтаж ж/б плит с помощью крана, заделка швов и технологических отверстий.
  • Материалы: плиты перекрытия, раствор.
Работы: 35 000 руб.
Материалы: 97 000 руб.
Итого по этапу: 132 000 руб.

Этап 4: Кровля — защита от непогоды

Крыша — пятый фасад дома. Она должна быть не только красивой, но и теплой, и герметичной. Для нашего дома выбрана простая двухскатная крыша с утеплением и покрытием из металлочерепицы.

  • Основные работы: монтаж стропильной системы, укладка гидро- и пароизоляции, утепление (200 мм), монтаж обрешетки и контробрешетки, укладка металлочерепицы.
  • Материалы: пиломатериалы (доска, брус), утеплитель, изоляционные пленки, металлочерепица, крепеж.
Надежная крыша над головой обошлась в:Работы: 160 000 руб.
Материалы: 370 000 руб.
Итого по этапу: 530 000 руб.

Этап 5: Окна и входная дверь — закрываем «теплый контур»

Как только установлены окна и входная дверь, дом официально становится «коробкой с закрытым контуром». Теперь внутри можно начинать отделочные работы в любую погоду.

  • Основные работы: установка оконных блоков и входной металлической двери.
  • Материалы: пластиковые окна, входная дверь.
Работы: 30 000 руб.
Материалы: 190 000 руб.
Итого по этапу: 220 000 руб.

Этап 6: Внешняя отделка фасада — одеваем наш дом

Фасад — это лицо дома. Кроме эстетической функции, он выполняет важную роль в утеплении и защите стен от внешних воздействий. В нашем проекте используется комбинированная отделка.

  • Основные работы: утепление стен снаружи, монтаж базового армирующего слоя, нанесение декоративной штукатурки «под мрамор», отделка цоколя искусственным камнем.
  • Материалы: утеплитель, клей, сетка, грунтовка, декоративная штукатурка, искусственный камень.
Красивый и теплый фасад — значительная статья расходов:Работы: 150 000 руб.
Материалы: 245 000 руб.
Итого по этапу: 395 000 руб.

Этап 7: Завершающие штрихи

Последние, но не менее важные детали, которые придают дому законченный вид и обеспечивают его правильное функционирование.

  • Основные работы: устройство бетонной отмостки по периметру дома, монтаж водосточной системы, подшивка свесов кровли (софитов), вывоз строительного мусора.
  • Материалы: бетон, арматура, водосточная система, софиты.
Работы: 74 160 руб.
Материалы: 83 528 руб.
Итого по этапу: 157 688 руб.

Часть 3: Итоговая аналитика: главные цифры и выводы

Итак, все этапы пройдены, и мы можем подвести итог. Сложив все затраты, мы получаем финальные цифры для строительства «теплого контура» нашего дома.

Общая стоимость строительства: 2 614 688 рублей

  • Стоимость всех работ: 829 160 рублей
  • Стоимость всех материалов: 1 785 528 рублей

Давайте проанализируем эти цифры.

  1. Соотношение работ и материалов. Как видите, почти 68% от общей суммы ушло на материалы, и только 32% — на оплату труда строителей. Это типичная пропорция для строительства из блочных материалов, где основную стоимость составляют сами блоки, бетон, утеплитель и отделка, а не сложность работ.
  2. Стоимость квадратного метра. Это ключевой показатель, который позволяет сравнивать разные проекты. Делим общую стоимость на площадь дома:
    2 614 688 руб. / 112,24 м² =
    ~23 300 рублей за м².

Это и есть «средняя температура по больнице» для строительства дома такого класса и комплектации. Когда вы будете рассматривать другие проекты, вы сможете ориентироваться на эту цифру для быстрой оценки бюджета.

Заключение: что дальше?

Итак, мы выяснили, что построить коробку уютного дома на 112 м² с фундаментом, крышей, окнами и красивым фасадом стоит около 2,6 млн рублей.

Важнейшая оговорка: эта сумма включает в себя так называемый «теплый контур». Она НЕ включает в себя:

  • Внутреннюю черновую и чистовую отделку (штукатурка, шпаклевка, полы, потолки, покраска, обои).
  • Монтаж инженерных систем (отопление, разводка электрики и сантехники, вентиляция).
  • Стоимость самого земельного участка, подключения к коммуникациям и благоустройства территории.

Строительство дома — это марафон, а не спринт. Наш расчет показывает, что при грамотном планировании и детальной смете этот путь становится понятным и предсказуемым. Надеемся, наш разбор поможет вам сделать первый и самый важный шаг к дому вашей мечты