Добавить в корзинуПозвонить
Найти в Дзене
Ольга Земляная

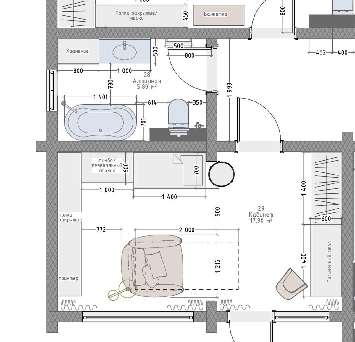
Три варианта расстановки одной и той же зоны

Три варианта расстановки одной и той же зоны. Три варианта не с точки зрения выбора в моменте: с этой точки зрения мы раз 15 вносили правки, чтобы учесть все сценарии жизни семьи. Наши три расстановки с учетом возможного изменения сценария жизни, где в случае прибавления в семье, можно будет трансформировать быстро комнату для чтения и кабинет в совершенно другое функциональное назначение. Эти варианты расстановок делаются для того, чтобы под них вывести и спрятать в полу и стенах коммуникации на случай трансформации. То есть этот случай может вообще никогда не произойти. Но мы сразу учитываем один из вариантов развития событий, естественно, узнав* это от клиентов. Это очень необычный кейс. Но в нашей практике редко бывают типичные случаи или обычные запросы. Все наши клиенты уникальные. И наша задача их уникальность отразить в интерьере. Это классный пример того, что мы пишем историю жизни семьи через интерьер. *чтобы узнавать такие «интимные» подробности, нужно создать макси

Три варианта расстановки одной и той же зоны.

Три варианта не с точки зрения выбора в моменте: с этой точки зрения мы раз 15 вносили правки, чтобы учесть все сценарии жизни семьи.

Наши три расстановки с учетом возможного изменения сценария жизни, где в случае прибавления в семье, можно будет трансформировать быстро комнату для чтения и кабинет в совершенно другое функциональное назначение.

Эти варианты расстановок делаются для того, чтобы под них вывести и спрятать в полу и стенах коммуникации на случай трансформации. То есть этот случай может вообще никогда не произойти. Но мы сразу учитываем один из вариантов развития событий, естественно, узнав* это от клиентов.

Это очень необычный кейс. Но в нашей практике редко бывают типичные случаи или обычные запросы. Все наши клиенты уникальные. И наша задача их уникальность отразить в интерьере.

Это классный пример того, что мы пишем историю жизни семьи через интерьер.

*чтобы узнавать такие «интимные» подробности, нужно создать максимально безопасное пространство, но и этого недостаточно. Важно постоянно быть в одном ценностном поле, где мы ставим человека в центр интерьера и все решения предлагаем под сценарии жизни людей.

Этой концепцией пространства в качестве решения задач по организации и написанию истории жизни важно проникнуться. Полностью и безвозвратно меняется отношение к интерьеру: с картинок и расположения унитазов в сторону того, а зачем каждая вещь, деталь или решение тут у меня дома.

-2
-3