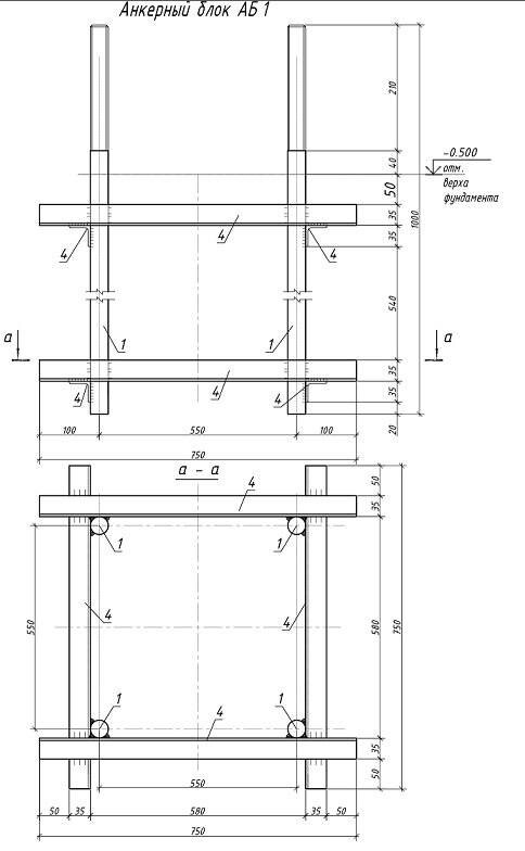
Анкерные группы Не забываем, что основное направление нашей компании - поставки крепежа 🔩. При настроенном изготовлении фундаментных болтов логичное продолжение - производство анкерных групп. Для заказчика очень удобно - заливать фундамент с уже установленными, в соответствии с чертежами, готовыми закладными. Заказать у нас очень просто - присылаете чертежи из проекта и получаете цену и срок изготовления. В качестве дополнительной услуги - доставка до объекта. Приобретая у нас анерные группы, покупатель экономит время и деньги, получая качественную продукцию на объекте точно в срок.
