Найти в Дзене

Мой первый и неосуществлённый проект

Есть ли жизнь в "хрущёвках"? Можно ли приспособить малогабаритную "двушку" для жизни молодой семьи из трёх человек? Все ли "хрущёвки" одинаково ужасны? Вот с этими вопросами мы попробуем разобраться в этой статье. Честно говоря, меня давно привлекала эта сфера деятельности, дизайн интерьеров и архитектура, но течение жизни в какой то момент слишком далеко отнесло меня от неё. И вот, где то в 2010 мне впервые предоставилась возможность заняться обустройством первой квартиры. Что мы имеем: Несущими стенами являются лишь внешние стены квартиры - они толщиной 30-40 см, а все внутренние - гипсобетонные толщиной всего 20 см. В реальности внутренние перегородки были сделаны из отходов строительства, местами было впечатление, если посильнее ударить по ним кулаком, то можно проломить без проблем. Часть перегородок, к примеру между коридором и большой комнатой вообще были сделаны из фанеры на каркасе из бруска. Рай для перепланировок. Задача была относительно малыми средствами сделать квартиру у
Оглавление

Есть ли жизнь в "хрущёвках"?

Можно ли приспособить малогабаритную "двушку" для жизни молодой семьи из трёх человек?

Все ли "хрущёвки" одинаково ужасны?

Вот с этими вопросами мы попробуем разобраться в этой статье.

Всё не так уж и плохо

Честно говоря, меня давно привлекала эта сфера деятельности, дизайн интерьеров и архитектура, но течение жизни в какой то момент слишком далеко отнесло меня от неё. И вот, где то в 2010 мне впервые предоставилась возможность заняться обустройством первой квартиры.

Что мы имеем:

  • кирпичная пятиэтажка серии 1-511 без лифта,
  • этаж 4,
  • общая площадь квартиры 41 кв.м.,
  • две комнаты + кухня + раздельный сан.узел.
Примерно в таком виде была планировка квартиры изначально
Примерно в таком виде была планировка квартиры изначально

Несущими стенами являются лишь внешние стены квартиры - они толщиной 30-40 см, а все внутренние - гипсобетонные толщиной всего 20 см. В реальности внутренние перегородки были сделаны из отходов строительства, местами было впечатление, если посильнее ударить по ним кулаком, то можно проломить без проблем. Часть перегородок, к примеру между коридором и большой комнатой вообще были сделаны из фанеры на каркасе из бруска. Рай для перепланировок.

Задача была относительно малыми средствами сделать квартиру удобной для жизни.

Функция прежде всего

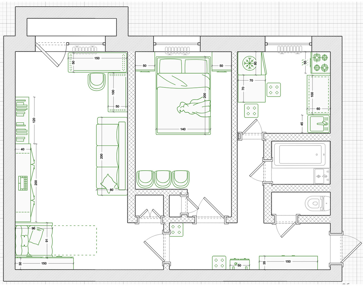
Когда в твоём распоряжении всего 40 с небольшим квадратов приходится использовать каждый сантиметр. Я вдохновлялся японскими жилищами и автодомами.

Вот мой план, как приспособить квартиру

-3

Первым делом мы избавляемся от лишних дверей и микровстроенных шкафов, вместо них делаем небольшую кладовку для велосипеда, пылесоса, швабры и т.п. мелочей.

Срезаем часть перегородки между проходом на кухню и маленькой комнатой - прихожая становится больше, что позволяет нам вдоль стены слева от входа в квартиру сделать большой, как я его назвал "мультишкаф". В нём можно хранить верхнюю одежду, сезонную одежду, на створках "купе" сделать зеркало, а его продолжение может нависать над диваном в гостиной книжными полками.

Поначалу мои дизайнерские скиллы были весьма скромными
Поначалу мои дизайнерские скиллы были весьма скромными

Плавно переходим в гостиную, которую мы отделяем лёгкой перегородкой из гипсокартона от большой комнаты. Там хватает места поставить угловой диван на 3-4 человек, журнальный столик и повесить на перегородку телевизор.

Если дверь в гостиную вместе с перегородкой мы сносим, то в спальню - делаем. Помещение для сна должно быть максимально изолировано от звуков жизни квартиры.

В этой самой перегородке получается сделать большой платяной шкаф-купе, для хранения полотенец, спального белья, нижнего белья и т.п.

Толстые кирпичные стены - огромный плюс этого дома, подоконники широкие, можно их расширить и получить настоящий рабочий стол около окна в спальне! Да и для дамы стол для макияжа и других дел тоже пригодится.

Балкон стеклить в моём представлении - бредовая идея. Летом - это парник, котором будет +50, зимой в холода температура там будет не сильно отличаться от улицы. По итогу хранить там толком ничего нельзя будет, использовать как лаунж-зону тоже. Оставляем его как есть, ставим там летом горшки с цветами и уличную мебель.

Маленькую комнату переделываем под детскую, делаем там сдвижную дверь, чтобы не занимать пространство, ставим базовый набор мебели.

Кухня - эпицентр дома

В любом доме для семьи кухня - это всегда эпицентр жизни, тут и готовят, и едят, и устраивают посиделки с друзьями. Но есть две проблемы:

1. Площадь кухни в хрущёвке всего 5,5 кв.м.

2. В этом доме газовая плита, соответственно мы не можем снести дверь между кухней и прихожей.

В существующей планировке на кухне главным членом семьи был холодильник! Он сидел за столом на самом "козырном" месте, у окна. Полное безобразие!

-6

Итак, что мы делаем:

1. Объединяем подоконник с рабочей поверхностью - получаем больше пространства.

2. Холодильник ставим в противоположный угол и делаем его встроенным в кухонный гарнитур.

3. По левой от входа стене подвесные шкафы делаем узкими и вешаем повыше, чтобы не задевать головой.

4. Для экономии места газовую плиту ставим трёхконфорочную вместо четырёхконфорочной.

5. Стол круглый - чтобы в маленьком помещении не задевать углы.

6. Единственное, что у нас не помещается - посудомоечная машина.

Кухонный гарнитур (как то так)
Кухонный гарнитур (как то так)

И да, чуть не забыли про сан.узел. Объединять его, как делают многие, я не планировал, всё таки совмещённые туалет-ванная допустимы, в моём представлении, при проживании в квартире максимум двух человек, далее уже будет не комфортно.

Интересное решение я подсмотрел у знакомых - так как стена между ванной и туалетом - не капитальная, можно сделать в ней проём и поставить стиральную машину частично в одном помещении, частично в другом. Опять же, экономим место.

Что в итоге?

В итоге, непонятная судьба дома (реновация/не реновация) привела к решению продать квартиру и купить другую.

Из задуманного по проекту были заменена вся "столярка" окон, прорезан проём из туалета в ванную и установлена стиральная машина. Также отремонтирован пол на балконе: положена плитка для крылец.

Как вам проект? Почерпнули ли для себя полезные идеи?

И, да, не судите строго, это был мой первый опыт.