Добавить в корзинуПозвонить
Найти в Дзене

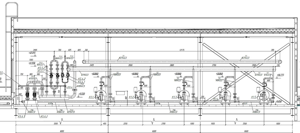
Как Wattson обеспечил тепло для крупнейшего логистического комплекса ОЭЗ «Центр» в Новоусманской районе Воронежской области.

Подразделениями Wattson Воронеж и Wattson Белгород была осуществлена поставка оборудования для котельной на многофункциональный логистический комплекс, расположенный на территории ОЭЗ «Центр» в Новоусманской районе Воронежской области. ✔ 5 напольных конденсационных котлов GEFFEN суммарной мощностью 3,7 МВт https://clck.ru/3QREGa ✔ запорная и регулирующая арматура Ридан ✔ насосы и теплообменники Ридан https://clck.ru/3QRE9y ✔ оборудование водоочистки ЁЛКА https://clck.ru/3QRD3Z
Оглавление

Подразделениями Wattson Воронеж и Wattson Белгород была осуществлена поставка оборудования для котельной на многофункциональный логистический комплекс, расположенный на территории ОЭЗ «Центр» в Новоусманской районе Воронежской области.

-2

В рамках комплектации котельной отгружены:

✔ 5 напольных конденсационных котлов GEFFEN суммарной мощностью 3,7 МВт https://clck.ru/3QREGa

-3

✔ запорная и регулирующая арматура Ридан

✔ насосы и теплообменники Ридан https://clck.ru/3QRE9y

-4

✔ оборудование водоочистки ЁЛКА https://clck.ru/3QRD3Z

-5

В рамках комплектации системы отопления обеспечили более 80 тепловыми завесами и тепловентиляторами Греерс https://clck.ru/3QRCuK

-6

-7

Хотите узнать больше о наших решениях для отопления? Заходите на наш сайт www.wattson.ru