Найти в Дзене
Bibik Architect

Новый проект

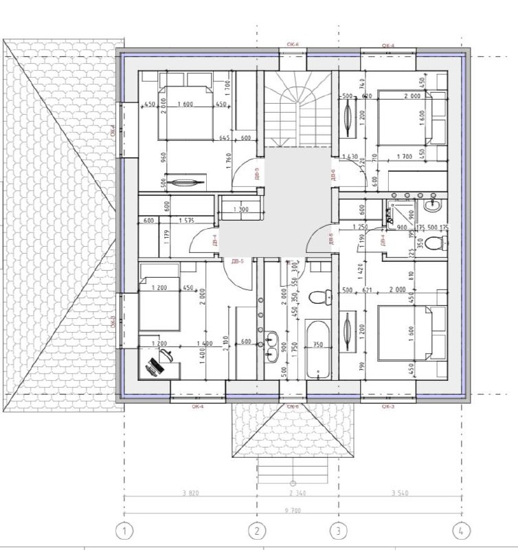
Новый проект! Очередная версия классического решения дома 10х10. На этот раз с пятью спальнями. Строительство будет вестись нашими партнерами в Санкт-Петербурге. Фундамент - монолитная плита (грунты позволяют). Стены: газобетон 400мм + 100мм утепление и облицовка кирпичной кладкой Перекрытия - деревянные Кровельное покрытие - металлочерепица. Полезная площадь помещений - 147м2.

Новый проект!

Очередная версия классического решения дома 10х10. На этот раз с пятью спальнями.

Строительство будет вестись нашими партнерами в Санкт-Петербурге.

Фундамент - монолитная плита (грунты позволяют).

Стены: газобетон 400мм + 100мм утепление и облицовка кирпичной кладкой

Перекрытия - деревянные

Кровельное покрытие - металлочерепица.

Полезная площадь помещений - 147м2.

-2
-3
-4
-5
-6
-7