Добавить в корзину
Позвонить
Найти в Дзене
Войти
Ольга Савченко
28 подписчиков
Подписаться
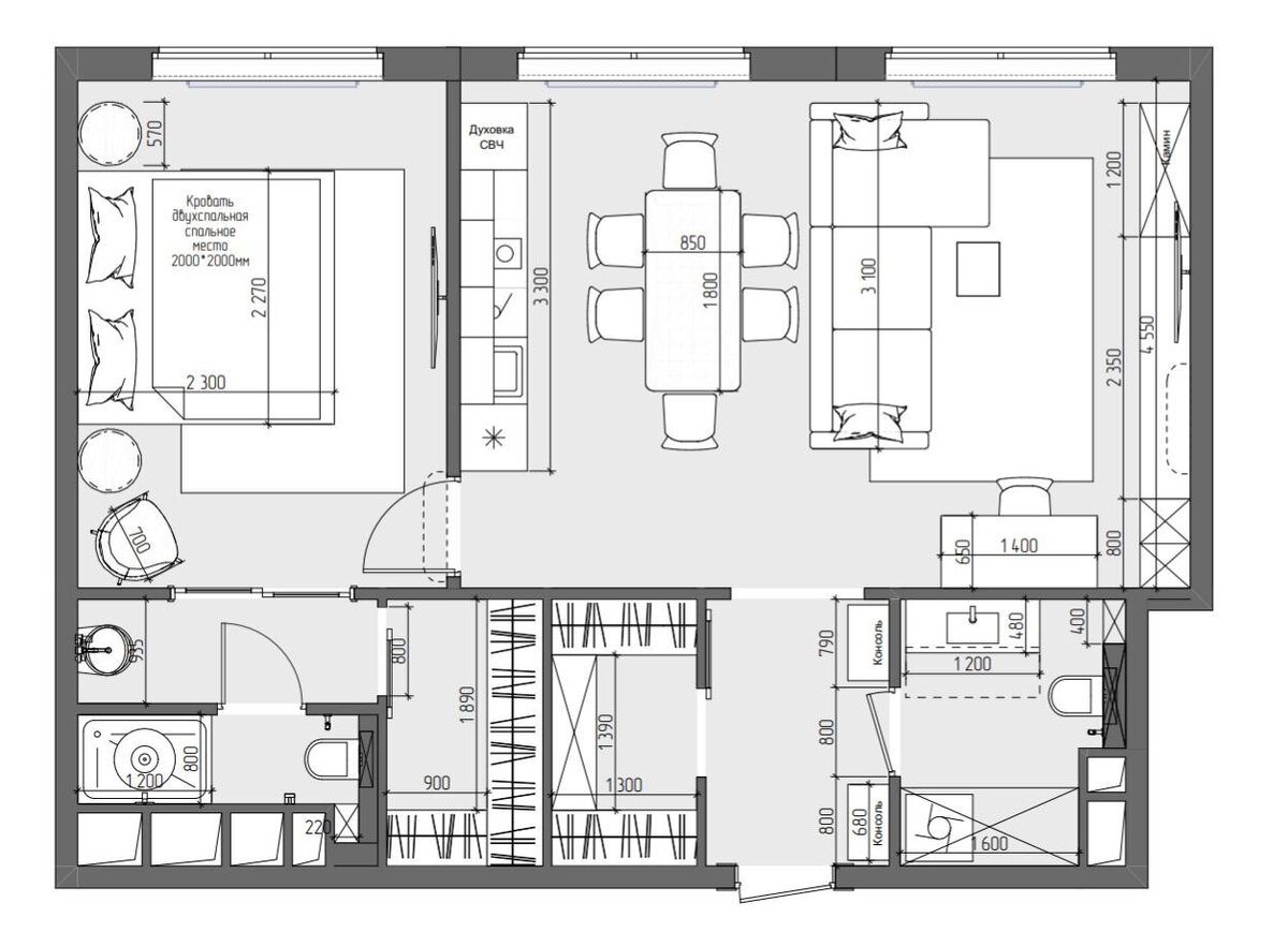
Наша планировка
19 ноября 2025
19 ноя 2025
1
Наша планировка 🤗
Наша планировка 🤗
...
Читать далее
Наша планировка 🤗
1275130734.942.1777685771092.55217