Добавить в корзинуПозвонить
Найти в Дзене
КлиматМаркет96.ру

9 кондиционеров Kentatsu в офисы, Екатеринбург

Объект: Офисное здание, Орджоникидзевский р-н, Екатеринбург Задача: Установка кондиционеров в 9 помещениях, внешние блоки разрешено устанавливать на фасаде. Решение: Классические сплит-системы Kentatsu: серия Kanami, 3,5 кВт — 2 шт.; серия Ichi, 7 кВт — 7 шт. Установка внешних блоков на фасаде здания, автовышка. Исполнители: План раскладки фреоновой трассы и размещения наружного и внутреннего блоков: Монтаж: На данном объекте установка кондиционеров выполнялась после завершения отделочных работ, по этому все коммуникации были проложены внутри помещения вдоль стен, и скрыты кабель-каналом. Общая длина фреонового трубопровода — 130 м. Отвод дренажа со всех сплит-систем выведен в систему канализации, установлены дренажные помпы. Внешние блоки установлены на фасаде здания, с применением автовышки. Смотреть другие наши работы: https://clck.ru/3Q3AnV Заказать кондиционер в любое время года можно на нашем сайте Получить консультацию по подбору оборудования можно по телефонам: +7 (343) 363-63-

Объект: Офисное здание, Орджоникидзевский р-н, Екатеринбург

Задача: Установка кондиционеров в 9 помещениях, внешние блоки разрешено устанавливать на фасаде.

Решение: Классические сплит-системы Kentatsu: серия Kanami, 3,5 кВт — 2 шт.; серия Ichi, 7 кВт — 7 шт. Установка внешних блоков на фасаде здания, автовышка.

Исполнители:

  • Специалист по подбору оборудования Дмитрий, работает в компании с 2018 года
  • Специалист по установке сплит-систем Александр, опыт более 20 лет

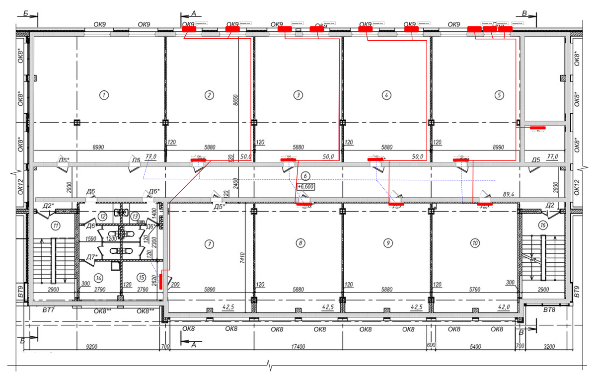
План раскладки фреоновой трассы и размещения наружного и внутреннего блоков:

План этажа
План этажа

Монтаж:

На данном объекте установка кондиционеров выполнялась после завершения отделочных работ, по этому все коммуникации были проложены внутри помещения вдоль стен, и скрыты кабель-каналом.

Общая длина фреонового трубопровода — 130 м. Отвод дренажа со всех сплит-систем выведен в систему канализации, установлены дренажные помпы. Внешние блоки установлены на фасаде здания, с применением автовышки.

-3
-4
-5
-6
-7
-8
-9
-10
-11
-12

Смотреть другие наши работы: https://clck.ru/3Q3AnV

Заказать кондиционер в любое время года можно на нашем сайте

Получить консультацию по подбору оборудования можно по телефонам:

+7 (343) 363-63-15 — Екатеринбург

+7 (800) 500-24-96 — звонок по РФ бесплатный

Ваш КлиматМаркет96!