Найти в Дзене
ПСК "Градиент"

Дом с мансардой 166 м²: разумная площадь без лишних метров

Не каждый готов к масштабному строительству, но и тесной «коробкой» жить не хочется. Наш проект входит в золотую середину: общая площадь 166 м² (89 м² на первом этаже и 77 м² на мансардном) даёт простор для жизни, но не превращается в обузу при эксплуатации. Внешний облик сочетает лаконичность и выразительность: отделка штукатуркой в светлых тонах и гибким клинкером придаёт дому современный вид и обеспечивает долговечность фасада. Конструкция продумана до мелочей: Высоты помещений подобраны для комфорта: Здесь сосредоточены зоны, которыми пользуются чаще всего: Пространство для отдыха и сна: Он подойдёт тем, кто: Читайте эти материалы в ленте канала ПСК Градиент - будет полезно. Этот дом - не про показную роскошь, а про продуманность. Здесь нет лишних метров, но есть всё, что нужно для жизни. Если вы ищете проект, который сочетает функциональность и разумный масштаб, присмотритесь внимательнее.
Оглавление

Почему этот проект стоит внимания

Не каждый готов к масштабному строительству, но и тесной «коробкой» жить не хочется. Наш проект входит в золотую середину: общая площадь 166 м² (89 м² на первом этаже и 77 м² на мансардном) даёт простор для жизни, но не превращается в обузу при эксплуатации.

Архитектурные и конструктивные решения

Внешний облик сочетает лаконичность и выразительность: отделка штукатуркой в светлых тонах и гибким клинкером придаёт дому современный вид и обеспечивает долговечность фасада.

Конструкция продумана до мелочей:

  • свайно‑ростверковый фундамент, надёжность при разумных затратах;
  • стены из керамзитобетона с утеплением, отличная теплоизоляция и прочность;
  • несущие стены толщиной 390 мм, перегородки - 90 мм.

Высоты помещений подобраны для комфорта:

  • первый этаж - 3,0 м (ощущение простора);
  • мансардный этаж - от 1,8 до 2,7 м (достаточно для жилых комнат)

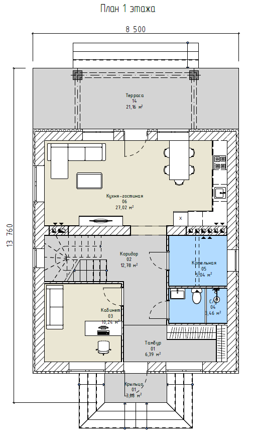
Первый этаж: пространство для повседневной жизни

Здесь сосредоточены зоны, которыми пользуются чаще всего:

-2
  • крыльцо приветственный акцент у входа
  • тамбур защита от холода и ветра
  • коридор (12,78 м²) удобная развязка между помещениями
  • кабинет (10,24 м²) место для работы или хобби
  • санузел (3,46 м²) функциональность без излишеств
  • котельная (5,04 м²) техническое сердце дома
  • кухня‑гостиная (27,02 м²) центр семейной жизни
  • терраса (21,15 м²) зона отдыха на свежем воздухе

Мансардный этаж: уют и приватность

Пространство для отдыха и сна:

-3
  • коридор (9,71 м²) удобная навигация
  • санузел (4,92 м²) второй санузел для комфорта
  • три спальни (11,55 м², 12,64 м², 13,34 м²) достаточно места для семьи
  • балкон (12,43 м²) уголок для утреннего кофе или вечерних размышлений

Почему это удобно: практические плюсы

  1. Экономия на отоплении - компактные габариты и качественное утепление снижают расходы.
  2. Логичная планировка - нет «мёртвых» зон, каждый метр работает.
  3. Два санузла - комфорт для семьи из 3–5 человек.
  4. Терраса и балкон - дополнительное пространство для отдыха
  5. Кабинет на первом этаже - возможность работать, не поднимаясь наверх.

Для кого этот проект?

Он подойдёт тем, кто:

  • хочет дом с мансардой, но боится перегруженности
  • ценит чёткую организацию пространства
  • планирует жить семьёй, не жертвуя личным комфортом
  • ищет баланс между площадью и эксплуатационными расходами

Читайте эти материалы в ленте канала ПСК Градиент - будет полезно.

-5

Этот дом - не про показную роскошь, а про продуманность. Здесь нет лишних метров, но есть всё, что нужно для жизни. Если вы ищете проект, который сочетает функциональность и разумный масштаб, присмотритесь внимательнее.