Найти в Дзене
Альфа-Проект

Проект комфортного каркасного дома 176 м² — готовое решение для семьи

Проект каркасного дома площадью 176 м² — это современное решение для тех, кто ценит пространство, уют и энергоэффективность. Дом подходит для постоянного проживания, загородного участка или дачи премиум-класса. Подробнее - на сайте Альфа-проект Закрытая площадь дома (без стен) — 140 м², высота в коньке — 4,8 м. Фундамент — свайный, каркас с утеплением 200 мм, что гарантирует тёплое и долговечное строение даже для северных регионов. Планировка проекта идеально сбалансирована между личным и общим пространством. В доме предусмотрено: Такое зонирование обеспечивает комфорт проживания большой семьи и возможность приёма гостей. Каркасный дом спроектирован по современным технологиям: Такая конструкция позволяет возвести дом быстро, без усадки и с минимальными затратами на отопление. В состав проекта входит: В комплекте содержится смета по количеству всех материалов, а также ведомости оконных и дверных проёмов. Это полноценный комплект документов для строительства, получения ипотеки и регистра
Оглавление

Проект каркасного дома площадью 176 м² — это современное решение для тех, кто ценит пространство, уют и энергоэффективность. Дом подходит для постоянного проживания, загородного участка или дачи премиум-класса.

Подробнее - на сайте Альфа-проект

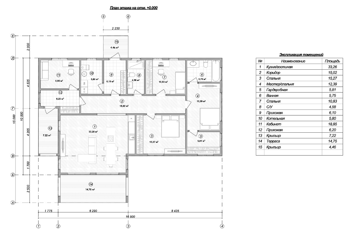
Закрытая площадь дома (без стен) — 140 м², высота в коньке — 4,8 м.

Фундамент — свайный, каркас с утеплением 200 мм, что гарантирует тёплое и долговечное строение даже для северных регионов.

Продуманная планировка — максимум уюта и функциональности

Планировка проекта идеально сбалансирована между личным и общим пространством. В доме предусмотрено:

  • кабинет для работы или хобби,
  • две уютные спальни и просторная мастер-спальня,
  • кухня-гостиная открытого типа,
  • два санузла,
  • гардеробная и коридор,
  • котельная и прихожая,
  • два крыльца и терраса для отдыха.

Такое зонирование обеспечивает комфорт проживания большой семьи и возможность приёма гостей.

-2

Технические характеристики и материалы

Каркасный дом спроектирован по современным технологиям:

  • Фундамент: винтовые сваи (раздел КМ).
  • Каркас: деревянные конструкции (раздел КД).
  • Утепление стен, перекрытий и крыши: 200 мм — надёжная защита от холода.
  • Высота потолков: комфортная и просторная для любых интерьеров.

Такая конструкция позволяет возвести дом быстро, без усадки и с минимальными затратами на отопление.

Что входит в проект

В состав проекта входит:

  • ЭП — эскизный проект с планировками и фасадами;
  • КМ — конструкции металлические (фундамент на винтовых сваях);
  • КД — конструкции деревянные.

В комплекте содержится смета по количеству всех материалов, а также ведомости оконных и дверных проёмов. Это полноценный комплект документов для строительства, получения ипотеки и регистрации дома.

Преимущества каркасного дома 176 м²

  • Высокая энергоэффективность и тёплые стены;
  • Экономия на отоплении и обслуживании;
  • Быстрая сборка и возможность строительства своими силами;
  • Идеален для семьи из 3–6 человек;
  • Проект готов для подачи в банк под ипотеку.
-3

Как купить проект

Купить проект каркасного дома 176 м² можно онлайн прямо на сайте «Альфа-проект».

Просто добавьте проект в корзину и оформите покупку.

Через несколько минут вы получите проект в электронном виде и сможете приступить к строительству.

Начните строительство своего дома мечты

Проект каркасного дома 176 м² — это надёжное, тёплое и рациональное решение для семьи.

Закажите проект прямо сейчас — и начните путь к дому своей мечты уже сегодня!

-4
-5