Добавить в корзину
Позвонить
Найти в Дзене
Войти
ELNDESIGN Студия дизайна
9 подписчиков
Подписаться
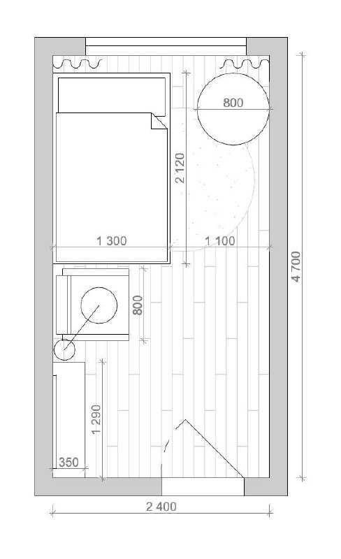
Планировочное решение
2 ноября 2025
2 ноя 2025
~1 мин
Планировочное решение
Планировочное решение
...
Читать далее
Планировочное решение
1725883881.988.1776607484655.88304