Добавить в корзинуПозвонить
Найти в Дзене

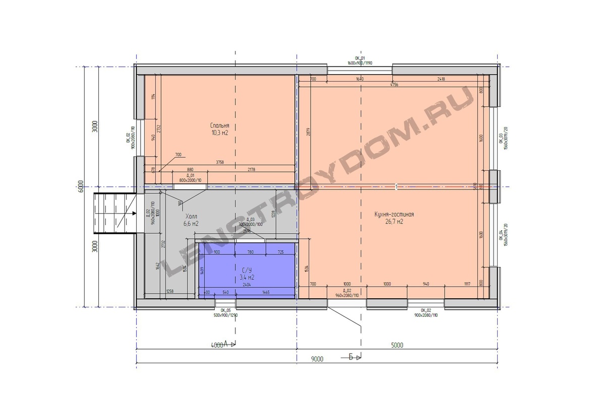
На такой дом по проекту Scandi S с индивидуальной планировкой, планируем заезжать в ближайшее время в КП «Лесная роща», Тосненский район

На такой дом по проекту Scandi S с индивидуальной планировкой, планируем заезжать в ближайшее время в КП «Лесная роща», Тосненский район. Линейные размеры дома 9х6 м, в доме разместятся просторная кухня-гостиная, спальня, совмещенный СУ, холл. #ленстройдом #каркасныедома #scandi_s #лесная_роща www.lenstroydom.ru скандимини.рф sk@lenstroydom.ru +7 (812) 408-30-08 https://clck.ru/3Q2CJE

На такой дом по проекту Scandi S с индивидуальной планировкой, планируем заезжать в ближайшее время в КП «Лесная роща», Тосненский район.

Линейные размеры дома 9х6 м, в доме разместятся просторная кухня-гостиная, спальня, совмещенный СУ, холл.

#ленстройдом #каркасныедома #scandi_s #лесная_роща

www.lenstroydom.ru

скандимини.рф

sk@lenstroydom.ru

+7 (812) 408-30-08 https://clck.ru/3Q2CJE

-2
-3
-4