Найти в Дзене

Планировка 3-комнатной квартиры: приемы

Как создать удачную планировку, какие приемы для этого можно использовать? На что обратить внимание? Рассмотрим варианты планировок 75-метровой квартиры с 2-мя спальнями (ЖК "Will Towers"), а также приемы планировки (в конце статьи), которые я использовала, работая над этой планировкой. Семейная пара с двумя школьниками. Детская, общая для двух детей, должна находиться дальше от гостиной, чтобы гости не тревожили сон детей, и иметь максимальный размер, насколько это возможно. Кровати отдельные, двухъярусная не рассматривается. Планировку от застройщика со спальней с совмещенной с ней ванной и гардеробной клиенты сразу отвергли, т.к. хотели разметить детей дальше от кухни и гостиной. Уже был куплен холодильник side-by-side, стиральная и сушильная машины, которые предполагалось расположить одна над другой, проектор для детской с креплением к потолку или стене. Нужен обеденный стол для гостей. Ванна должна быть 1,8 м. Первое, что бросается в планировке от застройщика – вытянутые помеще
Оглавление

Как создать удачную планировку, какие приемы для этого можно использовать? На что обратить внимание?

Рассмотрим варианты планировок 75-метровой квартиры с 2-мя спальнями (ЖК "Will Towers"), а также приемы планировки (в конце статьи), которые я использовала, работая над этой планировкой.

рендер Will towers, источник willtowers.ru
рендер Will towers, источник willtowers.ru

Основные вводные от заказчиков

Семейная пара с двумя школьниками. Детская, общая для двух детей, должна находиться дальше от гостиной, чтобы гости не тревожили сон детей, и иметь максимальный размер, насколько это возможно. Кровати отдельные, двухъярусная не рассматривается. Планировку от застройщика со спальней с совмещенной с ней ванной и гардеробной клиенты сразу отвергли, т.к. хотели разметить детей дальше от кухни и гостиной.

планировка от застройщика, правая спальня совмещена с гардеробной и санузлом, дверь второй спальни располагается напротив гостевого санузла. Кухня располягяется в глубине левого помещения дальше от окон
планировка от застройщика, правая спальня совмещена с гардеробной и санузлом, дверь второй спальни располагается напротив гостевого санузла. Кухня располягяется в глубине левого помещения дальше от окон

Уже был куплен холодильник side-by-side, стиральная и сушильная машины, которые предполагалось расположить одна над другой, проектор для детской с креплением к потолку или стене. Нужен обеденный стол для гостей. Ванна должна быть 1,8 м.

Особенности квартиры

Первое, что бросается в планировке от застройщика – вытянутые помещения. Это не всегда плохо, т.к. зонировать удобнее прямоугольник, чем квадрат. Но здесь ширина гостиной получается чуть более 3 метров, что, мягко говоря, немного. Окна до пола, открываются небольшие фрамуги. У окон образуются ниши с конвекторами в полу. Эти ниши вполне можно использовать, что я и делаю. При этом площадь помещений на планах посчитана без ниш.

Покажу 4 планировки, каждая из которых имеет свою изюминку.

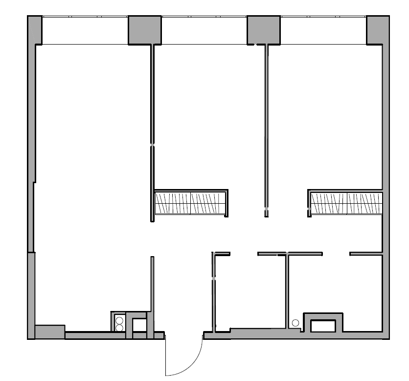
Планировка с самыми большими детской и спальней

  • Минимальное количество вспомогательных помещений, что дало возможность отвоевать квадратные метры для спальни и детской: коридорчик в 3 метра, в котором, к тому же, разместились стиральная и сушильная машины; прихожая с двумя вместительными шкафами заняла менее 5 метров.
  • Нет гардеробной, в небольшой квартире более рационально использовать шкафы. Подробнее читайте об этом здесь.
  • Нет мастер-спальни с ванной, но этим, как я уже сказала выше, будут грешить все планировки.
  • Приватная зона за дверью, где расположены спальни и основной санузел. Даже если кто-то хочет пройти незамеченным для гостей из спальни в ванную, у него есть такая возможность.
  • Вытянутые помещения кухни-гостиной и детской зонированы. У двери детской – хранение и место на полу для игр. В глубине – кровати, которые можно использовать для просмотра проектора, который расположен под потолком. Рабочая зона – у окна.
  • Стиральная и сушильная машины внесены в приватную зону, хотя их можно вынести из нее и разметить в шкафу в прихожей.
планировка с максимальной площадью спальни и детской в сумме
планировка с максимальной площадью спальни и детской в сумме

Планировка с отдельной кухней

  • Самая большая детская (больше 20 м), но маленькая спальня (около 12 метров).
  • Основной недостаток в том, что хозяевам придется идти в ванну через гостиную, но при этом пока дети спят, можно уютно попить утром кофе вдвоем в кухне, которая прилегает к спальне.
  • Минимальное количество вспомогательных помещений, нет гардеробной. Есть минимальный коридорчик чуть менее 1,5 метров. Прихожая, вместе с хозяйственной зоной (хозяйственный шкаф и стиральная машина) и двумя вместительными шкафами заняла менее 6 метров. За счет того, что гостиная находится в проходной зоне, здесь не нужен лишний коридор. Отсутствие подсобных помещений дает возможность сделать детскую большой.
  • Гостиная прилегает к кухне: удобно приносить в гостиную угощения, но при этом вся «красота» после приготовления пищи остается скрыта от гостей. А если же хозяева чистюли, а гостей много, тоже удобно устроить дегустацию на кухне или попить кофе в тишине, пока кто-то поет караоке в гостиной.
  • Вытянутая детская зонирована иначе, чем в предыдущем варианте. У входа - зона для игр и просмотра фильмов, далее - спальная зона. Рабочая зона во всех планировках расположена у окна для хорошего освещения. Платяной шкаф "спрятался" в нише у входа.
  • Для хозяйственных нужд и стирки предусмотрен шкаф между кухней и прихожей.
планировка с отдельной кухней, примыкающей к гостиной и спальне
планировка с отдельной кухней, примыкающей к гостиной и спальне

Планировка с проходной гардеробной

  • Эта планировка с минимальной площадью детской и спальни за счет того, что здесь выделен достаточно просторный коридор, где расположены шкафы, а также техника для стирки - этакая проходная гардеробная. На мой взгляд, это компромиссный вариант, с одной стороны, гардеробная есть, но место, свободное от шкафов используется для прохода к другим помещениям. В данном случае, я бы использовала закрытые шкафы.
  • Детская настолько мала, что не хочется размещать платяные шкафы внутри нее, здесь есть легкие узкие стеллажи для книг и игрушек, которые можно заменить просто тумбами или комодами, чтобы сделать пространство более легким. Гардеробные шкафы вне комнаты можно использовать и для детский вещей.
  • Гостиная, как я уже писала довольна узка при такой планировке. Тем не менее, при компактных размерах дивана (до 2 м длиной), его вполне можно разместить «лицом» к окну. Можно использовать рулонные шторы блекаут и напольный проектор, который ставится в непосредственной близости от экрана или разместить обычный проектор на потолке. Можно, как на плане установить тумбу с ТВ. В случае с проектором, убрав экран, можно будет любоваться видом из окна.
планировка с проходной гардеробной и гостиной с диваном напротив окна
планировка с проходной гардеробной и гостиной с диваном напротив окна

Планировка с гостиной при входе

  • Этот вариант понравится далеко не всем, так как зона кухни и гостиной не имеет отдельных окон. Но это попытка сломать геометрию квартиры, которая «крутится» вокруг 3 вытянутых помещений. Проблема с окнами решается застекленными проемами в стене – их можно разместить как вертикально, так и горизонтально выше человеческого роста. Можно сделать вставки из стеклоблоков. Ну или более смелый вариант круглые или любой другой формы окна в стене. В последнем случае, нужно точно понимать, что именно будет за стеной. Но даже если там находится кровать, над которой вы размещаете окно с матированным стеклом, это может быть вполне функционально. Из гостиной все равно не видно тех, кто лежит на кровати, если она прилегает к стене с окном.
  • Спальня здесь получилась с двумя окнами и довольно просторная, обе оконные ниши можно использовать и для рабочей зоны, и для туалетного столика, и чтобы просто посидеть, полюбоваться видом.
  • Санузел получился самым маленьким, но за счет удачного расположения двери он вмещает все то, что и санузлы площадью 6 метров, включая ванну 180 см.
  • Гостевой санузел здесь больше, в нем располагаются стиральная и сушильная машины, а также хозяйственный шкаф

А теперь суммирую приемы планирования, которые использовались при создании этих планировок.

Планировка с кухней-гостиной без собственных окон
Планировка с кухней-гостиной без собственных окон

Приемы планирования помещения

  • Рабочие зоны лучше разместить у окон, чтобы можно было работать при дневном свете, тем более в детских. При хорошем виде это также позволяет отвлечься от работы и полюбоваться видом, а также переводить взгляд вдаль, что полезно для глаз.
  • «Сажаем» мебель на оси. Например, в планировке с диваном в середине помещения красной линией отмечен центр помещения, относительно которого мы размещаем мебель. В последней планировке мы центрируем кровать по середине колонны. В этой же планировке обеденный стол выравнен по центру входной двери, что обеспечит гармоничный вид при входе в квартиру. Этот прием сделает общее восприятие пространства более гармоничным.
  • Выравниваем стены и мебель, чтобы они не «плясали». Например, стена между спальней и гостиной имеет продолжение в стене шкафа в прихожей (см. 1ую планировку в галерее). Если бы этот шкаф был расположен ближе к кухне или гостевому санузлу, образовался бы дополнительный угол, который не украсил бы планировку. Два конца П-образной кухни выведены на один уровень. Можно ли было сделать иначе? Да! Но тогда один из концов нужно было бы делать значительно длиннее и «привязывать» его герметически к углу или другой мебели в комнате. Во второй планировке в галерее полка для ключей нужна не только функционально, но и еще для того, чтобы выстроить красивую линию стены прихожей. Можно ли было стену гостевого санузла перенести в сторону гостиной? Да! Но тогда гостиная приобрела бы странную неправильную форму.
  • Если наша планировка специально не строится из помещений неправильной формы (это возможно, если это предполагает концепция интерьера, но тогда это должно считываться), то мы стремимся к тому, чтобы любое помещение было прямоугольником и квадратом в восприятии человека, который в это помещение попадает. И последнее замечание очень важно. То есть помещение может быть неправильной формы, как, например, гостевой санузел в планировке с гостиной без окон. Но для человека, который находится внутри, это помещение будет прямоугольным за счет того, что мы полностью заполнили нишу.
гостевой санузел имеет неправильную форму, однако наюлюдатель внутри помещения будет воспринимать его, как прямоугольный за счет того, что ниша заполнена мебелью
гостевой санузел имеет неправильную форму, однако наюлюдатель внутри помещения будет воспринимать его, как прямоугольный за счет того, что ниша заполнена мебелью
  • В большинстве случаев выгоднее располагать дверь дальше от угла помещения. В этом случае у всех стен за исключением дверного проема можно расположить мебель. Если же дверь прилегает к углу, вы теряете как минимум 1,5 м у стены, прилегающей к двери. Например, если дверь в детской в этой планировке сместить к углу, у нас уже не получилось бы разместить систему хранения напротив кроватей, по крайней мере, она была бы значительно меньше.
если бы дверь детской прилегала у углу, разместить такую систему хранения было бы невозможно
если бы дверь детской прилегала у углу, разместить такую систему хранения было бы невозможно
  • Если в помещении должна быть не одна функция, и предполагается зонирование, лучше чтобы это помещение было прямоугольным, а не квадратным, тогда каждая из получившихся частей будет стремиться к квадрату. При зонировании же квадратного помещения мы рискуем получить излишне вытянутые зоны. Конечно, играет роль площадь и соотношение сторон, но общее правило будет таким.

Читайте также как сэкономить на дизайне интерьера