Найти в Дзене
ГосземляРФ

Название: указан в разделе документы

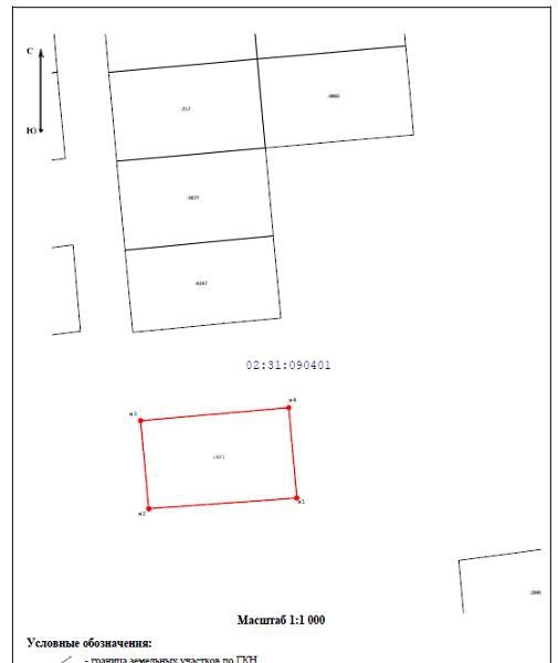
Название: указан в разделе документы Канал: Госземля Республика Башкортостан Область: - Район: - Населенный пункт: - Локация: Смотреть на карте ВРИ: Ведение садоводства Кадастровый номер: 02:31:090401:1 Кадастровая стоимость: - Вид сделки: Аренда Площадь: 1500 м² Начальная цена: - руб. Дата завершения: 29.11.2025 Подробнее: ГИС ТОРГИ #госземля #земляотгосударства #земля #земельныйучасток #земельныеторги #торги #аукцион #арендаземли #аренда #республикабашкортостан

Название: указан в разделе документы

Канал: Госземля Республика Башкортостан

Область: -

Район: -

Населенный пункт: -

Локация: Смотреть на карте

ВРИ: Ведение садоводства

Кадастровый номер: 02:31:090401:1

Кадастровая стоимость: -

Вид сделки: Аренда

Площадь: 1500 м²

Начальная цена: - руб.

Дата завершения: 29.11.2025

Подробнее: ГИС ТОРГИ

#госземля #земляотгосударства #земля #земельныйучасток #земельныеторги #торги #аукцион #арендаземли #аренда #республикабашкортостан