Найти в Дзене

Рубрика «Звонок другу

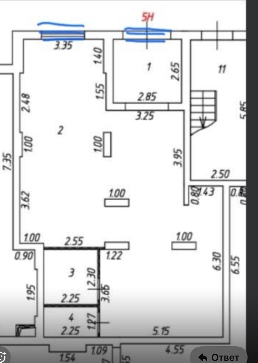
Рубрика «Звонок другу» Команда привет! Ко мне пришло помещение от собственника в ДУ. Сколько видите здесь юнитов, если грамотно распилить? Общая площадь 89м2, потолок 5м. Я увидел 2 кабинета на 2-м этаже в конце, идеальная площадь справа с мокрой точкой, пока не пойму что делать с коридором и кишкой в конце. Ваши мысли?

Рубрика «Звонок другу»

Команда привет! Ко мне пришло помещение от собственника в ДУ.

Сколько видите здесь юнитов, если грамотно распилить? Общая площадь 89м2, потолок 5м.

Я увидел 2 кабинета на 2-м этаже в конце, идеальная площадь справа с мокрой точкой, пока не пойму что делать с коридором и кишкой в конце.

Ваши мысли?