Добавить в корзинуПозвонить
Найти в Дзене

Открыто, пока не перегородим

Этот интерьер — как чистый лист. Кажется, всё уже готово: тёплый паркет, глубокие цвета, грамотный свет. Но вы смотрите на open-space, который совсем скоро поменяется. По центру появится перегородка, и вся эта свобода превратится в две функциональные зоны — кухню и гостиную. Проектом предусмотрено чёткое зонирование, но сейчас в кадре — самый красивый и честный момент: когда квартира ещё "дышит". Ни дивана, ни кухни, ни комода — только воздух, свет и перспектива. ЖК Событие — один из самых стильных жилых комплексов в городе, и такие пространства — редкость. Это та стадия, когда хочется остановиться и просто полюбоваться, пока не начался мебельный бой. Потому что после — начнётся логистика, сборки, примерки, не туда открывающиеся дверцы и вечная рулетка с доставками.
Но пока — open-space. Полный вдох. Перед прыжком в комплектацию.

Этот интерьер — как чистый лист. Кажется, всё уже готово: тёплый паркет, глубокие цвета, грамотный свет. Но вы смотрите на open-space, который совсем скоро поменяется. По центру появится перегородка, и вся эта свобода превратится в две функциональные зоны — кухню и гостиную.

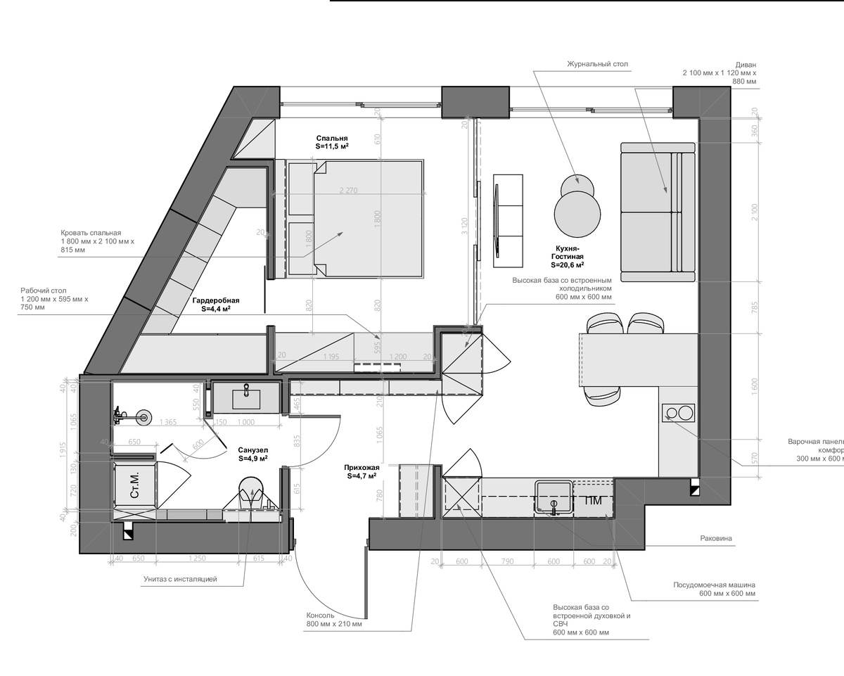
Продуманный дизайн планировки квартиры
Продуманный дизайн планировки квартиры

Проектом предусмотрено чёткое зонирование, но сейчас в кадре — самый красивый и честный момент: когда квартира ещё "дышит". Ни дивана, ни кухни, ни комода — только воздух, свет и перспектива.

Сейчас самое подходящее время остановиться и просто полюбоваться, пока не начнется мебельный хаос
Сейчас самое подходящее время остановиться и просто полюбоваться, пока не начнется мебельный хаос

ЖК Событие — один из самых стильных жилых комплексов в городе, и такие пространства — редкость. Это та стадия, когда хочется остановиться и просто полюбоваться, пока не начался мебельный бой. Потому что после — начнётся логистика, сборки, примерки, не туда открывающиеся дверцы и вечная рулетка с доставками.

Но пока — open-space. Полный вдох. Перед прыжком в комплектацию.

-4