Найти в Дзене

Ну, кто так строит? История о кривой планировке

Здравствуйте, друзья! Давненько не брала я в руки шашку, пардон, перо. Всё время съедает работа. Однако, нынче отправилась я ненадолго в заслуженный отпуск и добралась-таки до Дзена. Краткое вступление из моих учебных воспоминаний. На первом курсе у нас был проект малоэтажного частного дома. И вот решила я выпендриться и сделать не простой дом, а круглый. Но, инициатива, как известно, всегда имеет инициатора, что я и испытала в полной мере впоследствии. Особенно когда пришло время делать макет моего произведения. С тех пор, собственно, круглые и прочие непрямоугольные объекты вызывают во мне застарелую дрожь и полное неприятие, особенно касаемо жилых строений. Единственным исключением из правил я оставила для себя эркеры. Их вполне можно интересно обыгрывать. Но вот судьба решила напомнить о былых страданиях и подсунула мне удивительно нестандартную планировку, с которой пришлось основательно помучиться. Итак, получила я в работу четырёхкомнатную квартиру в сталинском доме для семейной

Здравствуйте, друзья! Давненько не брала я в руки шашку, пардон, перо. Всё время съедает работа. Однако, нынче отправилась я ненадолго в заслуженный отпуск и добралась-таки до Дзена.

Краткое вступление из моих учебных воспоминаний. На первом курсе у нас был проект малоэтажного частного дома. И вот решила я выпендриться и сделать не простой дом, а круглый. Но, инициатива, как известно, всегда имеет инициатора, что я и испытала в полной мере впоследствии. Особенно когда пришло время делать макет моего произведения.

С тех пор, собственно, круглые и прочие непрямоугольные объекты вызывают во мне застарелую дрожь и полное неприятие, особенно касаемо жилых строений. Единственным исключением из правил я оставила для себя эркеры. Их вполне можно интересно обыгрывать.

Но вот судьба решила напомнить о былых страданиях и подсунула мне удивительно нестандартную планировку, с которой пришлось основательно помучиться.

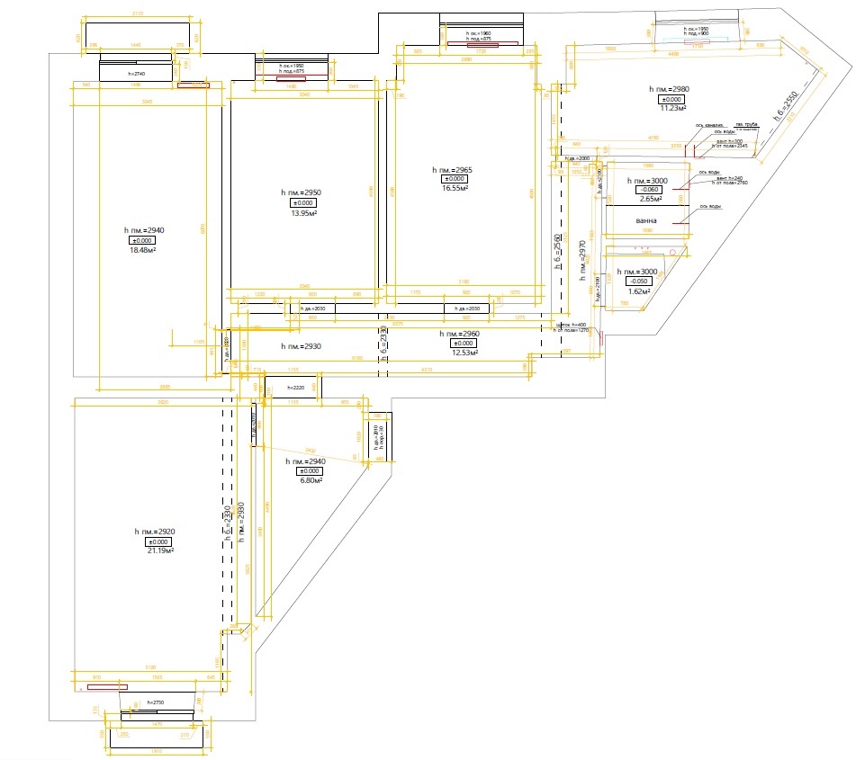
Итак, получила я в работу четырёхкомнатную квартиру в сталинском доме для семейной пары с тремя детьми (дочь-подросток и двое младших сыновей). Причём, что непонятно для такого количества комнат, с крохотными санузлами. В которые надо было как-то уместить ещё второй унитаз и постирочную. Так же в запросе было максимальное количество зон хранения.

План замера
План замера

Нужно ещё добавить, что по всей квартире проходят довольно громоздкие несущие колонны и балки, которые тоже надо было как-то ненавязчиво вписать в интерьер. Балки отмечены на чертеже замера пунктиром. Видимо, в квартире ранее уже была какая-то перепланировка, в которой отдельные стены выносились из-под этих балок.

Кухня, как видите на плане, бестолковая - косая, длинная и узкая. А семья предпочитает семейные ужины за одним столом.

Плюс ко всему у всех будущих обитателей квартиры оказались весьма разные вкусы, как по цветам, так и по дизайну. Но, как говорится, назвался шампиньоном – полезай в ридикюль.

С цветами мы определились достаточно быстро, по дизайну и сочетаниям оттенков все участники процесса прислали свои пожелания и пошла работа. Часть стен перенесли,об этом я буду рассказывать в процессе повествования. А пока просто покажу итоговое планировочное решение. Здесь тоже балки обозначены пунктиром, уже цветным.

Чертёж из личного портфолио
Чертёж из личного портфолио

Начнём, как обычно, с прихожей. За счет переноса стены спальни под балку, на её законное место, прихожая получилась достаточно просторной для большой семьи. К тому же удалось выделить гардеробную, в которую мы поместили три больших стеллажа со штангами под сезонную одежду и обувь (их показывать не буду). Стены в коридоре, гостиной и кухне отделаны декоративной штукатуркой под шёлк. Она очень прочная и, при необходимости, легко реставрируется собственными руками. Пол в прихожей, коридоре и кухне - кварцвиниловая плитка под светлый мрамор.

Вид от входа
Вид от входа
Фронтальный вид
Фронтальный вид
Вид на вход в квартиру
Вид на вход в квартиру

Коридор длинный, с несущей колонной и теми самыми балками. Из-за колонны получается уступ 40 см, вровень с ним мы встроили узкие шкафы для хранения на всю длину коридора. Потолок же коридора у санузлов опустили на уровень балки, она там просто огромная, 44х40 см. Как-то обыгрывать её не было никакого смысла.

Вид со стороны прихожей
Вид со стороны прихожей

Стены гостиной сдвинули вовнутрь, чтобы поставить ещё один, уже полной глубины шкаф и расширить коридор для увеличения санузлов. Напротив двери в гостиную сделали нишу в шкафах, чтобы не было сплошной мебельной стены.

Вид со стороны санузлов
Вид со стороны санузлов
Ниша напротив двери гостиной
Ниша напротив двери гостиной
Вид на вход в гостиную
Вид на вход в гостиную

В гостиной нужно было место для отдыха всей семьи, обязательно аквариум, книжный шкаф и стеллаж под цветы. Несущую колонну мы как раз и обыграли разницей глубины аквариума и шкафа. А за счёт переноса правой стены образовалась ниша по цветочный стеллаж.

Вид от входа
Вид от входа

В одном из просмотренных проектов заказчице очень понравилось зеркало с фацетами, и мы добавили его в интерьер.

Диванная зона
Диванная зона

Заказчики очень любят семейные фотографии, поэтому все свободные пространства отведены под них.

Вид от окна
Вид от окна
ТВ-зона и вход на кухню
ТВ-зона и вход на кухню

Хозяева квартиры хотели отдельные выходы на кухню из гостиной и коридора. Двери широкие, поэтому мы использовали кассетные, уходящие в стены, не загромождающие пространство распашным открыванием.

В остальных комнатах стены под покраску, цвета подобраны по вкусам их будущих обитателей. Напольные покрытия - ламинат по их же выбору.

Самым простым оказалось решение интерьера для девочки, она настолько точно описала своё видение комнаты, что её планировка и визуализация сложились самыми первыми. Цвет чистый белый, пустая стена напротив кровати предназначена для просмотров фильмов с проектора.

Вид от входа
Вид от входа
Фронтальный вид
Фронтальный вид
Вид от окна
Вид от окна

Комната мальчиков длинная и узкая, мы разбили её на две зоны, спальную и для занятий. Шкафы над стеллажами с уступом, туда врезан потолочный карниз со шторами, чтобы старший сын, занимаясь. не мешал младшему отдыхать. Стиль и цвета выбирал старший.

Вид от входа
Вид от входа
Вид от окна
Вид от окна
Сторона старшего сына
Сторона старшего сына

Рабочие поверхности освещаются врезанной в дно шкафов светодиодной лентой с рассеивателем.

Сторона младшего сына
Сторона младшего сына

Спальня родителей тоже разделена на две зоны. Спальня отделена стеклянной перегородкой и шторой. Изначально камин хотели сделать в гостиной, но потом решили перенести его в спальню. Цвета и акценты выбраны по желанию заказчицы.

Вид от входа
Вид от входа
Вид от перегородки
Вид от перегородки
Зона спальни
Зона спальни
Вид от окна
Вид от окна
Зона кабинета
Зона кабинета

Теперь самая сложная часть квартиры, поэтому вынесу её план отдельно.

Чертёж из личного портфолио
Чертёж из личного портфолио

Кухню нужно было как-то расширить, чтобы проход между столом и рабочей зоной был более менее комфортным. Конфигурацию вентиляционного короба менять категорически запрещено. Поэтому мы немного сдвинули стену кухни, обойдя короб. Это тоже не одобряется, но не настолько критично.

Получился выступ, вдоль которого мебель меньшей глубины. Такие шкафы удобны для хранения чайной посуды и прочей хозяйственной мелочи.

Вид от входа
Вид от входа
Вид на вход в гостиную
Вид на вход в гостиную
Вид от угла
Вид от угла

Ну, собственно, остались санузлы. Ради второго унитаза решено было пожертвовать ванной в пользу душевой. Но обязательно хотелось большую раковину. Плитка от Керама Марацци, коллекция Серенада.

Вид от входа
Вид от входа
Вид на раковину
Вид на раковину

В туалет мы уместили-таки постирочную и маленькую раковину. Плитка та же, но без акцентов.

Вид от входа
Вид от входа
Постирочная зона
Постирочная зона
Вид со стороны постирочной
Вид со стороны постирочной

По расстояниям для комфортного перемещения всё выверено до сантиметра. Это я всегда проверяю по законам эргономики, а так же подстраховываюсь сидящими, стоящими и идущими фигурками людей в натуральную величину.

Что хочу ещё сказать? С этой квартирой я работала непривычно долго. Концепция менялась бессчётное количество раз. Но, кажется, мне удалось всё-таки выжать из неё максимум относительно первоначального плана.

Такие дела. Кому интересна информация по ремонту на Чистых прудах, выложу через некоторое время то, что уже сделано. Надо туда доехать.

Засим прощаюсь. Всем добра!