Добавить в корзинуПозвонить
Найти в Дзене
ИДЕИ ВАШЕГО ДОМА

Дизайн спальни 11 кв. м: 3 варианта планировки и идеи оформления (57 фото)

Рассказываем, как обустроить небольшую спальню, показываем примеры планировок и вдохновляющие дизайн-идеи. В современной квартире спальня используется по-разному: по прямому назначению или, совмещая разные функциональные зоны, служит одновременно кабинетом, гардеробной, даже детской. На средней площади можно реализовать любые из этих сценариев, но в первую очередь надо позаботиться о том, чтобы в комнате было комфортно отдыхать. В статье поделимся примерами планировок и идеями дизайна спальни 11 кв. м. На 11 квадратах вполне можно разместить все необходимое, если детально продумать планировку. Рассмотрим несколько вариантов. В этом проекте дизайнер предложила несколько функциональных решений для небольшой комнаты. Помещение площадью 11,2 кв. м — практически идеальной квадратной формы с окном по центру. Основное хранение организовали в примыкающей гардеробной, поэтому в рамках комнаты оставалось разместить необходимые функциональные зоны. Для этого: Площадь этой спальни в квартире для п
Оглавление

Рассказываем, как обустроить небольшую спальню, показываем примеры планировок и вдохновляющие дизайн-идеи.

Слева проект Ирины Калининой. Справа проект Мии Грабчак
Слева проект Ирины Калининой. Справа проект Мии Грабчак

В современной квартире спальня используется по-разному: по прямому назначению или, совмещая разные функциональные зоны, служит одновременно кабинетом, гардеробной, даже детской. На средней площади можно реализовать любые из этих сценариев, но в первую очередь надо позаботиться о том, чтобы в комнате было комфортно отдыхать. В статье поделимся примерами планировок и идеями дизайна спальни 11 кв. м.

Варианты планировок спальни 11 кв. м

На 11 квадратах вполне можно разместить все необходимое, если детально продумать планировку. Рассмотрим несколько вариантов.

Пример №1

В этом проекте дизайнер предложила несколько функциональных решений для небольшой комнаты.

   Проект Евгении Ивлиевой
Проект Евгении Ивлиевой

Помещение площадью 11,2 кв. м — практически идеальной квадратной формы с окном по центру. Основное хранение организовали в примыкающей гардеробной, поэтому в рамках комнаты оставалось разместить необходимые функциональные зоны. Для этого:

  • По центру установили полноразмерную двуспальную кровать с тумбочками по бокам.
  • Пространство у окна превратили в небольшую зону отдыха, добавив матрас и подушки.
  • В углу напротив кровати предусмотрели небольшое рабочее место с треугольной столешницей.

Пример №2

Площадь этой спальни в квартире для пары — 11,6 квадратных метров.

   Проект Аиды и Ильи Тверских
Проект Аиды и Ильи Тверских

Нужно было разместить в комнате уже имевшуюся мебель: двуспальную кровать поставили по центру, напротив входа, а высокий комод — в углу у окна. Помимо последнего, авторы проекта предусмотрели еще несколько мест для хранения: вместительный шкаф с полками сбоку от кровати, тумбочки и узкую широкую консоль напротив спального места.

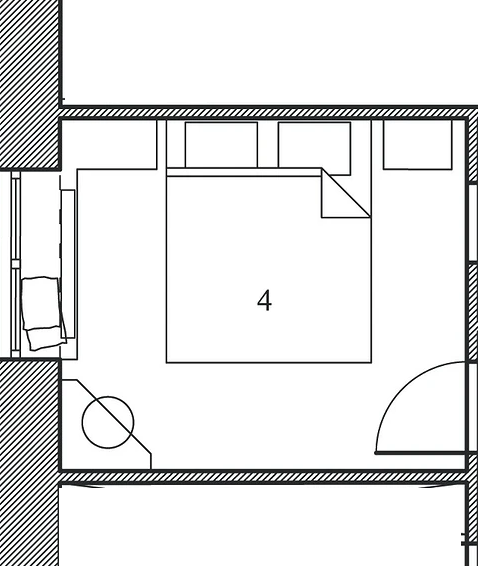
Пример №3

Площадь спальни в этом проекте — 11,3 квадратных метров.

   Проект Ирины Калининой
Проект Ирины Калининой

Это пример стандартной планировки комнаты с одной функцией. Не было необходимости размещать здесь рабочее место или много систем хранения — для этого при спальне предусмотрена гардеробная. Центром интерьера стала большая кровать. Напротив нее разместили ТВ-зону, тумбу поставили только с одной стороны. С другой поставили удобное мягкое кресло — получилась мини-зона отдыха.

Что разместить в спальне

Расставить мебель на 11 квадратах не так сложно. Задача та же, что и на любой площади: разместить все необходимое, сохранив при этом удобство и гармоничность интерьера. В этом помогает тщательно продуманное зонирование.

   Дизайн: студия Le Des. Фото: Инна Каблукова
Дизайн: студия Le Des. Фото: Инна Каблукова

Кровать

Кровать лучше располагать изголовьем у стены, а не у окна. Можно сэкономить место и придвинуть кровать к стенке, но это не слишком удобно, к тому же нарушается симметрия интерьера. Оставьте по обеим сторонам проходы достаточного размера. Эргономика очень важна! Также психологически комфортнее, когда спальное место находится не напротив дверного проема.

Рабочее место

В квартире, где под кабинет не предусмотрено отдельное пространство, эту функцию нередко выполняет спальня. Вариант спорный: психологически может быть неудобно работать в месте, где вы спите. Зато в дневное время там легче обеспечить тишину и не отвлекаться на домочадцев.

Небольшую консоль можно поставить в углу комнаты или вместо одной из прикроватных тумб. Если у окна есть подоконник подходящей высоты, организуйте рабочее место на нем. Важно предусмотреть правильное освещение: поставьте на стол лампу, свет должен падать с левой стороны. Письменный стол одновременно можно использовать в качестве туалетного столика, если повесить над ним зеркало. Если есть выход на балкон, то подумайте над обустройством домашнего офиса там.

Детская кроватка

Даже при наличии в квартире детской родители часто решают поставить кроватку в своей комнате, пока малыш еще совсем маленький. Лучше, если кроватка будет располагаться не слишком близко к окну, чтобы ребенку не мешали сквозняки, шум и пыль с улицы, особенно если квартира на невысоком этаже. Обычно кроватку ставят вместо одной из прикроватных тумб или сбоку от родительской кровати. Обозначить зоны можно с помощью разных цветов и отделочных материалов, например, покрасить стену у кроватки другим цветом, повесить в детской зоне картину.

Важно также позаботиться о месте для хранения детских вещей. Подойдут детский пеленальный столик с выдвижными ящиками или высокий вместительный комод.

Вместительные шкафы

В небольшой квартире бывает сложно организовать хранение. Если в комнате нет ниши, в которой бы разместился встроенный шкаф, советуем присмотреться к высоким корпусным системам хранения до потолка.

В маленькой комнате шкаф обычно располагают по стене сбоку от кровати. Выбирайте простые однотонные фасады без декора и рисунков. Идеально, если они будут оформлены в цвете стен, тогда объемная система хранения не станет визуально давить. Сейчас в моде отсутствие фурнитуры, когда дверцы оснащены специальными углублениями или открываются от нажатия. По-прежнему актуальны зеркальные двери-купе. Зрительно крупные отражающие поверхности делают комнату светлее и просторнее.

Один из вариантов обустройства вместительного хранения спальне 11 кв. м — П-образные шкафы вокруг двери или кровати. Чтобы конструкция не смотрелась массивно, выбирайте светлые цвета фасадов.

Идеи оформления спальни 11 кв. мт

После планировки пространство следующим шагом ремонта будет планирование отделки, освещения и подходящего декора.

   Дизайн: Анна Жижайкина. Фото: Глеб Хлопунов. Стиль: Виктория Горбачева
Дизайн: Анна Жижайкина. Фото: Глеб Хлопунов. Стиль: Виктория Горбачева

Отделка

На небольшой площади лучше не использовать в отделке слишком темные цвета. Избегайте слишком ярких узоров орнаментов в оформлении стен — пусть они будут однотонные либо с неконтрастным рисунком. Чтобы разнообразить интерьер, можно сделать акцент в изголовье кровати. Также стены украшают молдингами и рейками. Кроме дерева, стену можно оформить МДФ или мягкими панелями. Делайте акцент только на одном участке, а остальные оставьте нейтральными.

В отделке пола желательно использовать натуральные «теплые» материалы: инженерную доску, паркет. Но и качественный ламинат или кварцвинил вполне подойдут. С цветом потолка не стоит экспериментировать. Простое белое покрытие — беспроигрышный вариант для маленькой комнаты, за исключением зонирующего окрашивания.

Текстиль

В небольшом пространстве лучше отказаться от слишком пестрого текстиля. Чтобы выдержать в интерьере минимализм, выбирайте лаконичные однотонные шторы. Отлично подойдут ткани блэкаут — так вы сможете защитить комнату от солнечного света и обеспечить себе комфортный отдых в любое время суток. От тяжелых портьер стоит отказаться в пользу современных римских штор или скомбинировать несколько видов оконного текстиля (римские шторы и легкие длинные портьеры, тюль и портьеры).

Чтобы не создавать визуальный шум, выбирайте однотонное постельное белье и покрывало нейтральных оттенков.

Декор

Декор играет в спальне особую роль. Он придает ей завершенность, расставляет акценты и отвечает за атмосферу. Поскольку площадь не такая большая, важно не переборщить с аксессуарами. При их выборе отталкивайтесь от стиля комнаты:

  • Классический интерьер предполагает обилие декора, но для 11 квадратов чаще выбирают сдержанную неоклассику. Такой интерьер дополнят картины в лаконичных рамах, красивые подвесные светильники, зеркало, букеты в вазах.
  • Спальня 11 кв. м в современном стиле базируется на минимализме, так что украшений должно быть немного. Это тоже может быть картина или постер, пару предметов ручной работы или необычного дизайна.
  • Для сканди, бохо и экостиля выбирают подходящий по тематике природный декор. Обязательны растения в любом виде, керамика или деревянные изделия. Будут уместны плетеные корзины.
  • Лофт-спальню дополняют броскими индустриальными деталями. Предпочтительны холодные материалы: металл (в том числе матовый), стекло, камень.

Освещение

Ошибочно считать, что в маленьком пространстве нет смысла продумывать освещение и ограничиваться центральным верхним светильником. Чем больше световых точек, тем лучше. Можно вообще отказаться от потолочного освещения в виде люстры посередине и разместить точечные лампочки по периметру. Например, для стиля лофт или минимализм отлично подойдут трековые разнонаправленные светильники.

Традиционные лампы на прикроватных тумбах можно заменить настенными бра и таким образом освободить дополнительную поверхность. Также полезны светодиодные ленты. С их помощью подсвечивают стену в изголовье или потолочный карниз по периметру комнаты. Такой прием визуально увеличивает высоту потолка.