Добавить в корзинуПозвонить
Найти в Дзене
Берег Песочной

Проект ПБ-154 — современный двухэтажный коттедж размером 7 на 16 метров с 3 спальнями и общей площадью 157,3 м²

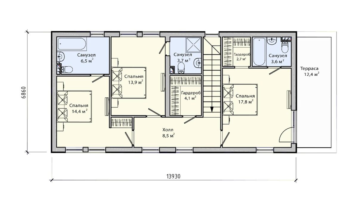
🏡 Представляем наш проект ПБ-154 — современный двухэтажный коттедж размером 7 на 16 метров с 3 спальнями и общей площадью 157,3 м². В доме есть уютная въездная арка для парковки автомобиля, которая защищает ваш транспорт от погодных условий. Наружные стены выполнены из утепленных сборных железобетонных панелей БЭНПАН Премиум толщиной 270 мм, а внутренние несущие стены — из панелей БЭНПАН 260 мм. Межкомнатные перегородки — из панелей толщиной 100 мм. Перекрытия между этажами — из сборных ЖБ плит толщиной 305 мм. Высота стен первого этажа — 3,2 метра, второго — 2,72 метра. Кровля плоская с наружным водостоком, фасад отделан штукатуркой по панелям БЭНПАН Премиум, а цоколь украшен мраморной крошкой. Планировка: первый этаж разделен въездной аркой, которая служит парковкой. Здесь расположены кладовая, котельная, просторная кухня-гостиная (43,9 м²), санузел и умывальная. Входной тамбур защищает от холода. На втором этаже — холл, три спальни (каждая со своим санузлом), гардероб и большая те

🏡 Представляем наш проект ПБ-154 — современный двухэтажный коттедж размером 7 на 16 метров с 3 спальнями и общей площадью 157,3 м². В доме есть уютная въездная арка для парковки автомобиля, которая защищает ваш транспорт от погодных условий.

-2
-3
-4
-5
-6

Наружные стены выполнены из утепленных сборных железобетонных панелей БЭНПАН Премиум толщиной 270 мм, а внутренние несущие стены — из панелей БЭНПАН 260 мм. Межкомнатные перегородки — из панелей толщиной 100 мм. Перекрытия между этажами — из сборных ЖБ плит толщиной 305 мм.

Высота стен первого этажа — 3,2 метра, второго — 2,72 метра. Кровля плоская с наружным водостоком, фасад отделан штукатуркой по панелям БЭНПАН Премиум, а цоколь украшен мраморной крошкой.

Планировка: первый этаж разделен въездной аркой, которая служит парковкой. Здесь расположены кладовая, котельная, просторная кухня-гостиная (43,9 м²), санузел и умывальная. Входной тамбур защищает от холода. На втором этаже — холл, три спальни (каждая со своим санузлом), гардероб и большая терраса, выход на которую есть у одной из спален.

Особенность проекта — отдельные входы в технические помещения и парковка, защищенная от дождя и снега. Такой современный коттедж из энергоэффективных ЖБ панелей БЭНПАН рассчитан на комфортное проживание семьи из 4-5 человек и прослужит не менее 100 лет.

Узнайте больше о проекте: https://beregpesochnoy.ru/construction/lot-no164
📞 +7 (495) 260-98-32

А вы мечтаете о своем загородном доме? Какие особенности важны для вас при выборе проекта?

#ЗагородныйДом #ПроектПБ154 #Строительство #ЖильеМечты #СовременныйКоттедж #Энергоэффективность #ДомМечты #ЖБПанели