Найти в Дзене

Как рождается интерьер бизнес-класса: закулисье ремонта

Когда вы видите фотографии наших готовых квартир, всё выглядит просто — чистый интерьер, продуманная планировка, сбалансированные цвета и уют, к которому хочется прикоснуться.
Но за каждым таким результатом — десятки этапов, инженерных решений, согласований и сотни аккуратных действий, где нет места случайности. В этом кейсе мы показываем закулисье проекта Well Home — как из новостройки с черновой отделкой рождается квартира, где всё продумано до мелочей.
Вы увидите, сколько труда, технологий и внимания к деталям стоит за тем, что обычно остаётся за кадром: от первых замеров до момента, когда загорается свет и интерьер оживает. Напримере ЖК «Времена года», г. Казань
площадь: 93,8 м²
Мы делаем всё, чтобы интерьер выглядел безупречно не только в день сдачи, но и оставался актуальным через годы.
Работаем чисто, технологично и с гарантией на каждый этап.
Ниже — подробный разбор всех шагов, через которые проходит каждый наш проект.
Мы начинаем с тщательных обмеров помещения площадью 93,
Оглавление

Когда вы видите фотографии наших готовых квартир, всё выглядит просто — чистый интерьер, продуманная планировка, сбалансированные цвета и уют, к которому хочется прикоснуться.
Но за каждым таким результатом — десятки этапов, инженерных решений, согласований и сотни аккуратных действий, где нет места случайности.

В этом кейсе мы показываем закулисье проекта Well Home — как из новостройки с черновой отделкой рождается квартира, где всё продумано до мелочей.
Вы увидите,
сколько труда, технологий и внимания к деталям стоит за тем, что обычно остаётся за кадром: от первых замеров до момента, когда загорается свет и интерьер оживает. Напримере ЖК «Времена года», г. Казань
площадь: 93,8 м²

Мы делаем всё, чтобы интерьер выглядел безупречно не только в день сдачи, но и
оставался актуальным через годы.
Работаем чисто, технологично и с гарантией на каждый этап.
Ниже — подробный разбор всех шагов, через которые проходит каждый наш проект.


Этап 1. Обмер и анализ квартиры



Мы начинаем с
тщательных обмеров помещения площадью 93,8 м².
Фиксируем каждую деталь: перепады уровней, диагонали, положение стояков и розеток.
На этом этапе выявляются все особенности объекта, что позволяет избежать ошибок на дальнейших стадиях.


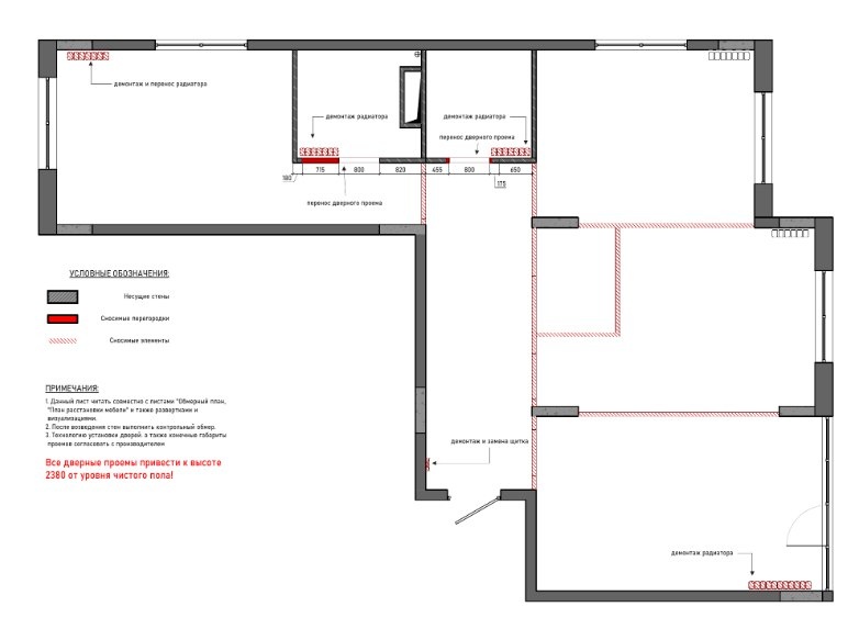
Этап 2. Перепланировка и функциональная схема

На основании обмеров мы разработали новую функциональную планировку.
Квартира получила:

  • Просторную кухню-гостиную;
  • Мастер-спальню с отдельным санузлом и гардеробной;
  • Детскую комнату и дополнительную спальню;
  • Гардеробную при входе и второй санузел.

Все изменения выполнены в рамках законодательства и без затрагивания несущих конструкций.

Этап 3. Дизайн-проект

На этом этапе дизайнер разработал концепцию в современном стиле с использованием кремовой гаммы и терракотовых акцентов.

Мы подобрали проверенные временем материалы:

  • Керамогранит Baldocer Ceramica;
  • Краска HYGGE Paint;
  • Сантехника Vincea;
  • Смесители OmoiKiri;
  • Фурнитура Hettich;
  • Бытовая техника Gorenje и Hisense;
  • Система защиты от протечек Neptun;
  • Quartz Parquet — для теплого и износостойкого покрытия.

Этап 4 — Подготовительный

Что делаем

  • Полная укрывка и защита входной двери, оконных рам, подоконников, радиаторов, встроенных элементов и мест, которые остаются нетронутыми.
  • Организация временных проходов, пылеограничителей и зон складирования материалов.

Почему это важно:

Минимизируем риск механических повреждений и загрязнений, сохраняем заводскую отделку, обеспечиваем порядок на объекте.

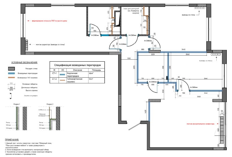
Этап 5 — Кладка: возведение стен и перегородок

Возведение перегородок по согласованной перепланировке (кирпич / пазогребневые блоки), армирование и точки крепления под ниши/короба.

  • Проклейка и герметизация стыков, акустическая прокладка в местах сопряжения с несущими конструкциями.
    Тонкости
  • Контроль геометрии по лазерному уровню; учёт строительных допусков при выводе под встроенные шкафы и сантехнику.

Этап 6 — Вентиляция

  • Прокладка воздуховодов и каналов для кухни/санузлов, установка монтажных патрубков и ревизионных лючков.
  • Подготовка закладных под вентрешётки, консервация каналов до чистовой отделки.
    Тонкости
  • Согласуем трассы с дизайн-проектом и потолочными решениями, оставляем доступ для сервисного обслуживания.

Этап 7 — Черновой электромонтаж

Точная разметка точек света, розеток, выключателей, щитков; высверливание лунок под подрозетники в стенах из кирпича/блока; устройство штроб под кабели и трассы тёплых полов.

  • Монтаж кабель-каналов, прокладка кабеля (сертифицированные марки), установка и сборка электрощита с маркировкой цепей.
    Тонкости и качество
  • Все линии маркируются по схеме; мы оставляем исполнительные схемы. Кабели и материалы — в соответствии с проектом и нормами.

Установка электрощита, и маркировка линий
Установка электрощита, и маркировка линий


Этап 8 — Прокладка трасс кондиционеров

Прокладка скрытых трасс под фреонопроводы и дренаж, шумоподавляющая прокладка и гидроизоляция участков прохода через ограждающие конструкции.
Тонкости

  • Трассы выводятся в технические зоны; учитываем разводку потолков и будущую мебельную компоновку.

 Фото: трассы кондиционеров
Фото: трассы кондиционеров

Этап 9 — Механизированная штукатурка и откосы

Механизированная штукатурка гипсовыми смесями для жилых зон и цементная штукатурка в санузлах (влагостойкая). Формирование откосов.

  • Откосы формируем по шаблону, проверка ровности — лазерным уровнем.


Этап 10 — Черновой сантехмонтаж

Разводка систем ХВС/ГВС, монтаж коллекторных групп, подготовка и сборка каркасов инсталляций, установка скрытых частей смесителей при необходимости.

  • Подключение и интеграция системы защиты от протечек Neptun с датчиками и автоматикой перекрытия.
  • Опрессовка всех контуров (отопление, ГВС, ХВС) и проверка герметичности.
  • Все фитинги и соединения проходят опрессовку; инсталляции подгоняются по высотам, привязка к плиточным решениям.


Этап 11 — Полусухая стяжка пола

  • Устройство армированной полусухой стяжки по всей площади, формирование деформационных швов.
  • Прокладка тёплого пола в санузлах и — при наличии балкона — на балконах; утепление зон пенополистиролом.
  • Укрытие стяжки полиэтиленом для контролируемого испарения и равномерного набора прочности.
    Тонкости
  • Контроль высот по нивелиру; защита прилегающих поверхностей от влаги и пыли.

Этап 12 — Шпаклёвочные работы

Многослойное шпаклевание стен и потолков, шлифовка, обеспыливание и грунтование.

  • Поклейка стеклохолста там, где предусмотрено.
    Тонкости
  • Работа в системе обеспыливания, регулярный фотоотчёт; используем материалы, совместимые с последующей окраской HYGGE Paint.

Этап 13 — Плиточные работы (санузлы и влажные зоны)

Нанесение обмазочной гидроизоляции в зонах повышенной влажности (пол и примыкания); сборка каркасов для ванн и душевых подиумов; укладка испанского керамогранита Baldocer Ceramica на пол и стены; установка полок/нишей.

  • Затирка влагостойкими смесями.
    Тонкости
  • Подгонка рисунка, минимизация швов, контроль наклона для слива, герметизация примыканий.

Этап 14 — Малярные работы (финиш)

Поклейка стеклохолста (где предусмотрено), финишное шпаклевание, тонкое шлифование; грунтовка; покраска стен краской HYGGE Paint; оклейка выбранных обоев.
Тонкости

  • Перед покраской — мойка окон и финальное обеспыливание; покраска по слоям для равномерной фактуры.

Этап 15 — Перед укладкой пола: уборка и подготовка основания

Сухая промышленная уборка всей площади, обеспыливание промышленным пылесосом; грунтование стяжки.
Тонкости

  • Безопасность адгезии — обязательный этап для долговечности покрытия.


Этап 16 — Укладка напольного покрытия

Укладка кварц-паркета на специальную подложку; контроль сужения/расширения швов, компенсационные зазоры.

  • После укладки — обязательная защита покрытия до окончания всех работ.
    Тонкости
  • Кварц-паркет выбран за влагостойкость и стабильность в сочетании с тёплыми полами.

Этап 17 — Чистовая электрика и сантехника

Установка чистовых розеток и выключателей (закрываем защитной плёнкой), подключение осветительных приборов; установка финальной сантехники Vincea и смесителей OmoiKiri; монтаж водных фильтров и измельчителя отходов.
Тонкости

  • Проверка всех электрических цепей под нагрузкой; опробование сантехники под рабочим давлением; проверка работы системы Neptun.


Этап 18 — Перед установкой дверей: защита углов и подготовка

Защитная подготовка всех углов и проходов (плинтусы, коробки).

  • Контроль уровней и посадочных габаритов под двери.
    Тонкости
  • Мы всегда защищаем новые покрытия и углы, чтобы установка дверей прошла без повреждений.

Защита углов
Защита углов

Этап 19 — Установка межкомнатных дверей

Монтаж дверных коробок и дверей (включая скрытые конструкции и доводчики), регулировка петель и прилегания.
Тонкости

  • Двери подбираются по цвету и фактуре, чтобы не нарушать единую стилистику.

Этап 20 — Сборка корпусной мебели и установка техники

Сборка кухонной и корпусной мебели на месте; монтаж фасадов и фурнитуры Hettich; установка встроенной техники Gorenje и Hisense, подключение измельчителя OmoiKiri.
Тонкости

  • Точная подгонка фасадов, выверка зазоров, организация внутренних систем хранения согласно дизайн-проекту.


Этап 21 — Установка натяжных потолков, карнизов и освещения

  • Монтаж натяжных потолков с металлическим теневым профилем, установка люков доступа, подготовка и монтаж электрокарнизов, встраиваемых и подвесных светильников.
    Тонкости
  • Интеграция световых сценариев: базовый, рабочий, акцентный — с диммерами и зонами управления.

Этап 22 — Финишный этап:

Установка плинтусов, окончательный клининг (многоступенчатая уборка).

  • Подключение/проверка всего бытового оборудования: бойлеры, фильтры, система Neptun, управление тёплыми полами, подключение внешних и внутренних блоков кондиционирования.
  • Финальная расстановка мебели, текстиля, декора; фотофиксация готового объекта; передача эксплуатационной документации и гарантийных талонов заказчику.
    Тонкости
  • Мы сдаём объект чистым, полностью проверенным и готовым к проживанию; проводим инструктаж по эксплуатации всех систем.




Готовый результат дизайнерского ремонта от Well home

Наши гарантии и принципы качества

  • Гарантия на работы — официальная гарантия Well Home на весь объём работ.
  • Материалы и бренды проверены временем — Baldocer Ceramica, HYGGE Paint, Vincea, OmoiKiri, Gorenje, Hisense, Hettich, Neptun и др.
  • Чистота как технология — на объекте всегда поддерживается порядок; ежедневный вывоз мусора, использование пылеудаляющих систем и укрытий.
  • Технологии соблюдены — все этапы выполняются по нормативам и проектной документации; у нас инженерный контроль и фотоотчёты.
  • Актуальность дизайна — мы используем базовые, «вечные» решения и нейтральные палитры, а также продуманную детализацию, поэтому интерьер остаётся современным и через несколько лет.

    Понравился интерьер?
    Создадим
    такой же дизайн под ключ в вашей квартире в новостройке — с гарантией и фиксированной стоимостью.
    г. Казань
    Тел: 89600518641