Π”ΠΎΠ±Π°Π²ΠΈΡ‚ΡŒ Π² ΠΊΠΎΡ€Π·ΠΈΠ½ΡƒΠŸΠΎΠ·Π²ΠΎΠ½ΠΈΡ‚ΡŒ
Найти Π² Π”Π·Π΅Π½Π΅
Π”ΠžΠœΠ€ΠΠ₯Π’Π•Π Πš

πŸ‘Π€Π°Ρ…Π²Π΅Ρ€ΠΊΠΎΠ²Ρ‹ΠΉ Π΄ΠΎΠΌ Β«Π’ΠΈΠ½Π΄ 150Β» β€” ΡΡ‚ΠΈΠ»ΡŒΠ½Ρ‹ΠΉ ΠΈ соврСмСнный Π΄ΠΎΠΌ для ΠΊΠΎΠΌΡ„ΠΎΡ€Ρ‚Π½ΠΎΠΉ Π·Π°Π³ΠΎΡ€ΠΎΠ΄Π½ΠΎΠΉ ΠΆΠΈΠ·Π½ΠΈ!

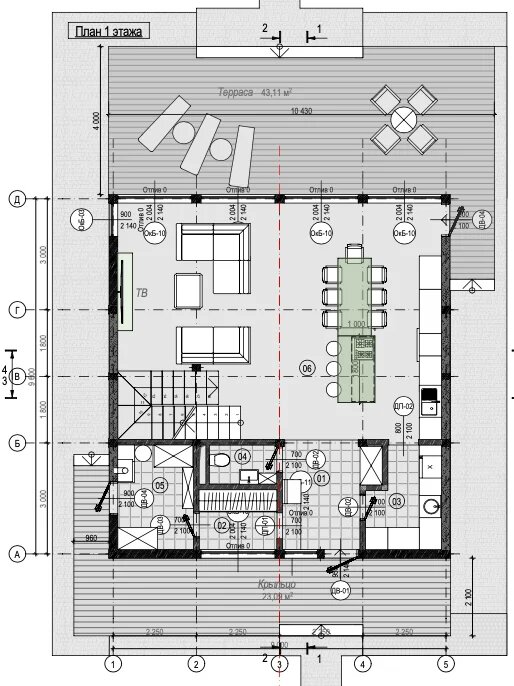
Π­Ρ‚ΠΎΡ‚ ΡΡ‚ΠΈΠ»ΡŒΠ½Ρ‹ΠΉ ΠΈ ΡƒΡŽΡ‚Π½Ρ‹ΠΉ Π΄ΠΎΠΌ ΠΎΡ‚Π»ΠΈΡ‡Π½ΠΎ ΠΏΠΎΠ΄ΠΎΠΉΠ΄Π΅Ρ‚ для Π΄Π°Ρ‡ΠΈ ΠΈΠ»ΠΈ Π·Π°Π³ΠΎΡ€ΠΎΠ΄Π½ΠΎΠ³ΠΎ Тилья для постоянного проТивания.✨ πŸ“ΠŸΠ»ΠΎΡ‰Π°Π΄ΡŒ Ρ‚Ρ‘ΠΏΠ»ΠΎΠ³ΠΎ ΠΊΠΎΠ½Ρ‚ΡƒΡ€Π° – 150 ΠΌΒ² πŸŒΏΠŸΠ»ΠΎΡ‰Π°Π΄ΡŒ тСррас ΠΈ ΠΊΡ€Ρ‹Π»Π΅Ρ† – 66,2 ΠΌΒ² πŸ Π“Π°Π±Π°Ρ€ΠΈΡ‚Ρ‹ – 9,0 Γ— 9,6 ΠΌ πŸ›οΈ3 спальни πŸ›2 санузла Π“Π»Π°Π²Π½Ρ‹Π΅ особСнности ΠΏΡ€ΠΎΠ΅ΠΊΡ‚Π°: β€” Гостиная 56,0 ΠΌΒ² с ΠΏΠ°Π½ΠΎΡ€Π°ΠΌΠ½Ρ‹ΠΌ остСклСниСм ΠΈ Π²Ρ‚ΠΎΡ€Ρ‹ΠΌ свСтом Π½Π° фасадных Π±Π΅Π·Ρ€Π°ΠΌΠ½Ρ‹Ρ… ΠΎΠΊΠ½Π°Ρ…. β€” Π—ΠΎΠ½Ρ‹ Π΄ΠΈΠ²Π°Π½Π½ΠΎΠΉ, ΠΊΡƒΡ…Π½ΠΈ ΠΈ столовой с Π²Ρ‹Ρ…ΠΎΠ΄ΠΎΠΌ Π½Π° тСррасу. β€” ЀранцузскиС ΠΎΠΊΠ½Π° Π² ΠΏΠΎΠ» Π² спальнС. β€” Входная Π³Ρ€ΡƒΠΏΠΏΠ°: нСбольшой Ρ‚Π°ΠΌΠ±ΡƒΡ€. β€” ΠŸΠ΅Ρ€Π²Ρ‹ΠΉ этаТ: санузСл ΠΈ ΠΊΠΎΡ‚Π΅Π»ΡŒΠ½Π°Ρ. β€” Π’Ρ‚ΠΎΡ€ΠΎΠΉ этаТ: Ρ…ΠΎΠ»Π» со Π²Ρ‚ΠΎΡ€Ρ‹ΠΌ свСтом, ΠΎΡ‚Π΄Π΅Π»ΡŒΠ½Π°Ρ спальня ΠΈ дСтская. πŸ”₯Π¦Π΅Π½Π°: 12 490 000 β‚½ πŸ•οΈΠŸΡ€Π°ΠΊΡ‚ΠΈΡ‡Π½Ρ‹ΠΉ ΠΈ ΡΡ‚ΠΈΠ»ΡŒΠ½Ρ‹ΠΉ Π΄ΠΎΠΌ, ΠΊΠΎΡ‚ΠΎΡ€Ρ‹ΠΉ станСт ΠΈΠ΄Π΅Π°Π»ΡŒΠ½Ρ‹ΠΌ Ρ€Π΅ΡˆΠ΅Π½ΠΈΠ΅ΠΌ для Π·Π°Π³ΠΎΡ€ΠΎΠ΄Π½ΠΎΠ³ΠΎ проТивания. πŸ“² Π£Π·Π½Π°ΠΉΡ‚Π΅ большС ΠΎ ΠΏΡ€ΠΎΠ΅ΠΊΡ‚Π΅ ΠΈ Π·Π°ΠΊΠ°ΠΆΠΈΡ‚Π΅ Π΄ΠΎΠΌ своСй ΠΌΠ΅Ρ‡Ρ‚Ρ‹ ΡƒΠΆΠ΅ сСгодня: πŸ‘‰ ΠŸΠ΅Ρ€Π΅ΠΉΡ‚ΠΈ ΠΊ ΠΏΡ€ΠΎΠ΅ΠΊΡ‚Ρƒ 🌐 Наш сайт

Π­Ρ‚ΠΎΡ‚ ΡΡ‚ΠΈΠ»ΡŒΠ½Ρ‹ΠΉ ΠΈ ΡƒΡŽΡ‚Π½Ρ‹ΠΉ Π΄ΠΎΠΌ ΠΎΡ‚Π»ΠΈΡ‡Π½ΠΎ ΠΏΠΎΠ΄ΠΎΠΉΠ΄Π΅Ρ‚ для Π΄Π°Ρ‡ΠΈ ΠΈΠ»ΠΈ Π·Π°Π³ΠΎΡ€ΠΎΠ΄Π½ΠΎΠ³ΠΎ Тилья для постоянного проТивания.✨

πŸ“ΠŸΠ»ΠΎΡ‰Π°Π΄ΡŒ Ρ‚Ρ‘ΠΏΠ»ΠΎΠ³ΠΎ ΠΊΠΎΠ½Ρ‚ΡƒΡ€Π° – 150 ΠΌΒ²

πŸŒΏΠŸΠ»ΠΎΡ‰Π°Π΄ΡŒ тСррас ΠΈ ΠΊΡ€Ρ‹Π»Π΅Ρ† – 66,2 ΠΌΒ²

πŸ Π“Π°Π±Π°Ρ€ΠΈΡ‚Ρ‹ – 9,0 Γ— 9,6 ΠΌ

πŸ›οΈ3 спальни

πŸ›2 санузла

Π“Π»Π°Π²Π½Ρ‹Π΅ особСнности ΠΏΡ€ΠΎΠ΅ΠΊΡ‚Π°:

β€” Гостиная 56,0 ΠΌΒ² с ΠΏΠ°Π½ΠΎΡ€Π°ΠΌΠ½Ρ‹ΠΌ остСклСниСм ΠΈ Π²Ρ‚ΠΎΡ€Ρ‹ΠΌ свСтом Π½Π° фасадных Π±Π΅Π·Ρ€Π°ΠΌΠ½Ρ‹Ρ… ΠΎΠΊΠ½Π°Ρ….

β€” Π—ΠΎΠ½Ρ‹ Π΄ΠΈΠ²Π°Π½Π½ΠΎΠΉ, ΠΊΡƒΡ…Π½ΠΈ ΠΈ столовой с Π²Ρ‹Ρ…ΠΎΠ΄ΠΎΠΌ Π½Π° тСррасу.

β€” ЀранцузскиС ΠΎΠΊΠ½Π° Π² ΠΏΠΎΠ» Π² спальнС.

β€” Входная Π³Ρ€ΡƒΠΏΠΏΠ°: нСбольшой Ρ‚Π°ΠΌΠ±ΡƒΡ€.

β€” ΠŸΠ΅Ρ€Π²Ρ‹ΠΉ этаТ: санузСл ΠΈ ΠΊΠΎΡ‚Π΅Π»ΡŒΠ½Π°Ρ.

β€” Π’Ρ‚ΠΎΡ€ΠΎΠΉ этаТ: Ρ…ΠΎΠ»Π» со Π²Ρ‚ΠΎΡ€Ρ‹ΠΌ свСтом, ΠΎΡ‚Π΄Π΅Π»ΡŒΠ½Π°Ρ спальня ΠΈ дСтская.

πŸ”₯Π¦Π΅Π½Π°: 12 490 000 β‚½

πŸ•οΈΠŸΡ€Π°ΠΊΡ‚ΠΈΡ‡Π½Ρ‹ΠΉ ΠΈ ΡΡ‚ΠΈΠ»ΡŒΠ½Ρ‹ΠΉ Π΄ΠΎΠΌ, ΠΊΠΎΡ‚ΠΎΡ€Ρ‹ΠΉ станСт ΠΈΠ΄Π΅Π°Π»ΡŒΠ½Ρ‹ΠΌ Ρ€Π΅ΡˆΠ΅Π½ΠΈΠ΅ΠΌ для Π·Π°Π³ΠΎΡ€ΠΎΠ΄Π½ΠΎΠ³ΠΎ проТивания.

πŸ“² Π£Π·Π½Π°ΠΉΡ‚Π΅ большС ΠΎ ΠΏΡ€ΠΎΠ΅ΠΊΡ‚Π΅ ΠΈ Π·Π°ΠΊΠ°ΠΆΠΈΡ‚Π΅ Π΄ΠΎΠΌ своСй ΠΌΠ΅Ρ‡Ρ‚Ρ‹ ΡƒΠΆΠ΅ сСгодня:

πŸ‘‰ ΠŸΠ΅Ρ€Π΅ΠΉΡ‚ΠΈ ΠΊ ΠΏΡ€ΠΎΠ΅ΠΊΡ‚Ρƒ

🌐 Наш сайт

-2
-3