Добавить в корзинуПозвонить
Найти в Дзене

Клапаны системы дымоудаления PPK-2D: надёжные ли это решение для систем противодымной вентиляции?

Консультацию проводит компания New Engineering Discoveries (NED) — ведущий российский бренд климатической техники, сайт: https://air-ned.com/ В условиях пожара эффективная эвакуация дыма — один из ключевых факторов, спасающих жизни и минимизирующих ущерб. Дымовые клапаны PPK-2D, выпускаемые компанией NED, разработаны специально для систем вытяжной противодымной вентиляции. Эти устройства оснащены нормально закрытой заслонкой, которая в штатном режиме остаётся герметично запертой, а при возникновении пожара — автоматически открывается, обеспечивая удаление дымовых газов и поддержание безопасных условий для эвакуации. Клапаны сертифицированы в установленном законом порядке и полностью соответствуют требованиям сводов правил СП 7.13130.2013 и СП 60.13330.2016. Важно отметить, что их нельзя устанавливать в помещениях категорий А и Б по взрывопожарной опасности, а также в системах, где осуществляется отсос взрывоопасных или агрессивных сред. Клапаны PPK-2D имеют предел огнестойкости Е 90,
Оглавление

Консультацию проводит компания New Engineering Discoveries (NED) — ведущий российский бренд климатической техники, сайт: https://air-ned.com/

В условиях пожара эффективная эвакуация дыма — один из ключевых факторов, спасающих жизни и минимизирующих ущерб. Дымовые клапаны PPK-2D, выпускаемые компанией NED, разработаны специально для систем вытяжной противодымной вентиляции. Эти устройства оснащены нормально закрытой заслонкой, которая в штатном режиме остаётся герметично запертой, а при возникновении пожара — автоматически открывается, обеспечивая удаление дымовых газов и поддержание безопасных условий для эвакуации.

Клапаны сертифицированы в установленном законом порядке и полностью соответствуют требованиям сводов правил СП 7.13130.2013 и СП 60.13330.2016. Важно отметить, что их нельзя устанавливать в помещениях категорий А и Б по взрывопожарной опасности, а также в системах, где осуществляется отсос взрывоопасных или агрессивных сред.

Клапан системы дымоудаления
Клапан системы дымоудаления

Технические характеристики и надёжность

Клапаны PPK-2D имеют предел огнестойкости Е 90, что подтверждает их способность сохранять работоспособность в течение 90 минут при воздействии высоких температур. Изделия рассчитаны на эксплуатацию в климатическом исполнении У3 по ГОСТ 15150-69 и выдерживают температуру окружающей среды от –30 °C до +50 °C (при условии отсутствия прямого попадания осадков).

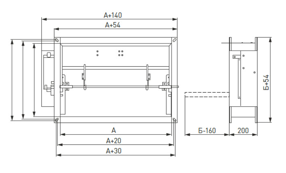
Корпус и заслонка выполнены из оцинкованной стали, что обеспечивает долговечность и устойчивость к коррозии. В зависимости от исполнения — стенового или канального — привод может размещаться внутри или снаружи корпуса. Стеновые клапаны имеют один присоединительный фланец и устанавливаются в проёмы перегородок или наружных стен, тогда как канальные — с двумя фланцами — монтируются непосредственно в воздуховоды.

Гибкость монтажа и управления

PPK-2D выпускаются с двумя типами приводов:

  • электромагнитным (с жёсткими или мягкими пружинами в зависимости от ориентации),
  • электромеханическим (без возвратной пружины).

Для электромагнитных моделей предусмотрены два варианта монтажа:

  • В — вертикальный (в стенах и перегородках, размер Б — вертикальный, привод — сверху),
  • G — горизонтальный (в перекрытиях и потолках).

Клапаны с сервоприводом можно монтировать в любом положении, при этом в вертикальной установке привод должен находиться слева. Поскольку корпус не оснащён люком обслуживания, модели с внутренним расположением привода рекомендуется устанавливать на торце воздуховода. Зазоры между корпусом и строительной конструкцией заделываются цементно-песчаным раствором для обеспечения огнезащиты.

Эстетика и защита

Для сохранения внешнего вида и защиты внутренних механизмов от посторонних предметов компания NED предлагает декоративные решётки RDP. Они изготавливаются из оцинкованной стали с порошковым покрытием в любой цвет по шкале RAL. По запросу возможен выпуск из нержавеющей стали. Крепление решёток — с помощью болтовых соединений, что обеспечивает надёжную фиксацию и простоту обслуживания.

Выбирая дымовые клапаны PPK-2D, вы выбираете проверенное инженерное решение, сочетающее безопасность, надёжность и эстетику.

КАНАЛЬНОЕ ИСПОЛНЕНИЕ, ПРИВОД СНАРУЖИ

-2
-3

✅Скачать Каталог продукции в pdf

Источник: https://air-ned.com/tovar-28.html