Добавить в корзинуПозвонить
Найти в Дзене

Дом из «тёплых» блоков: разбираем новый проект для Подмосковья с умным армированием

Всем привет! С вами команда Wood House. Сегодня мы покажем, как рождается современный и тёплый дом не из дерева, а из инновационных стеновых блоков. Перед нами - готовый эскизный проект, разработанный для нашего заказчика в Московской области. Давайте заглянем в чертежи и разберём ключевые решения. Перед нами стоит задача построить уютный и функциональный одноэтажный дом для постоянного проживания. Габариты здания в осях - 10 на 12 метров, что позволяет комфортно разместить все необходимое без ощущения тесноты. Что внутри? 1. Фундамент: Монолитная плита
Мы запроектировали утеплённую железобетонную плиту толщиной 300 мм. Это современное и надежное решение для пучинистых грунтов Подмосковья. 2. Стены: Тёплые блоки «Инноблок»
Несущие стены мы возводим из керамзитобетонных блоков «Инноблок» толщиной 400 мм. Это материал с высокими теплоизоляционными свойствами, что делает дом энергоэффективным. 3. Перекрытие и Кровля: Деревянная классика В этом проекте мы применили несколько важных узлов,
Оглавление

Всем привет! С вами команда Wood House. Сегодня мы покажем, как рождается современный и тёплый дом не из дерева, а из инновационных стеновых блоков. Перед нами - готовый эскизный проект, разработанный для нашего заказчика в Московской области. Давайте заглянем в чертежи и разберём ключевые решения.

Концепция: Компактный дом с продуманной планировкой

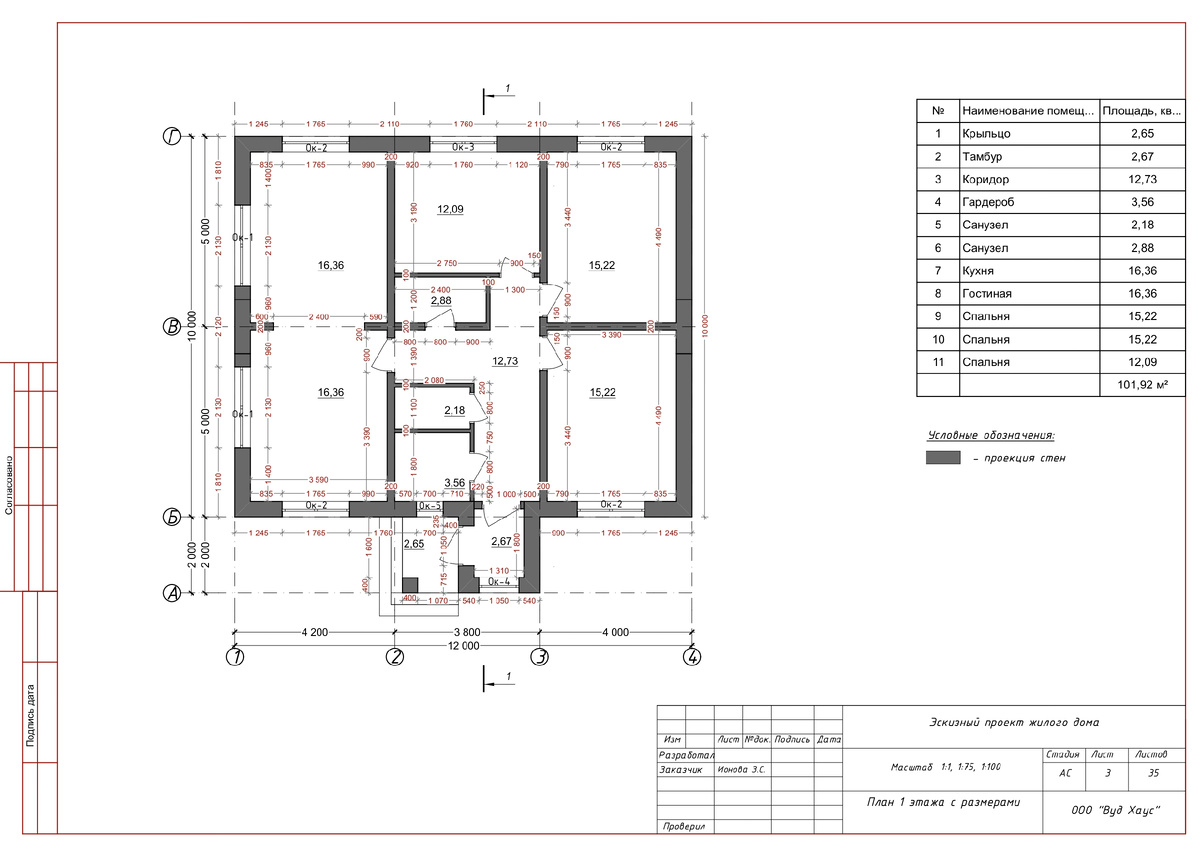
Перед нами стоит задача построить уютный и функциональный одноэтажный дом для постоянного проживания. Габариты здания в осях - 10 на 12 метров, что позволяет комфортно разместить все необходимое без ощущения тесноты.

Что внутри?

  • Общая площадь: 101.92 м² (включая крыльцо).
  • Планировка: Войдя через крыльцо и тамбур, вы попадете в просторный холл-коридор площадью 12.73 м². Отсюда доступна вся жилая зона: большая гостиная (16.36 м²), кухня-столовая (16.36 м²), три изолированные спальни (15.22, 15.22 и 12.09 м²), два санузла и гардеробная.
  • Для кого: Идеальный вариант для семьи с детьми или тех, кто ценит уединение и комфорт.

Конструктив: Надёжность от фундамента до крыши

1. Фундамент: Монолитная плита
Мы запроектировали утеплённую железобетонную плиту толщиной 300 мм. Это современное и надежное решение для пучинистых грунтов Подмосковья.

  • Важный нюанс: В плите заранее предусмотрены гильзы - закладные элементы для ввода всех коммуникаций (водопровод, канализация). Это избавляет от необходимости алмазного бурения готового бетона.
Фундамент
Фундамент

2. Стены: Тёплые блоки «Инноблок»
Несущие стены мы возводим из керамзитобетонных блоков «Инноблок» толщиной 400 мм. Это материал с высокими теплоизоляционными свойствами, что делает дом энергоэффективным.

  • Армирование: Для прочности каждые три ряда блоков армируются кладочной сеткой 50х50 мм. В зонах оконных и дверных проёмов установлены перемычки из металлического уголка.

3. Перекрытие и Кровля: Деревянная классика

  • Перекрытие: Собрано по деревянным балкам (лагам) сечением 50х200 мм, с утеплением каменной ватой.
  • Кровля: Стропильная система из доски 50х200 мм образует четыре ската с одинаковым уклоном в 17 градусов. Площадь кровли - 135.46 м², покрытие - металлочерепица.

Технологические акценты: На что обращаем особое внимание

В этом проекте мы применили несколько важных узлов, которые гарантируют долговечность:

  • Узел примыкания стен: Места соединения внутренних несущих стен и перегородок с наружными тщательно армируются. А перегородки мы присоединяем через демпферный шов, заполняемый монтажной пеной. Это компенсирует возможные подвижки и предотвращает появление трещин.
  • Парящий парапет: Конструкция кровли предусматривает оригинальное боковое примыкание к парапету с использованием прижимной планки и фартука из оцинкованной стали. Это обеспечивает герметичность и аккуратный вид.
  • Защита древесины: Все деревянные элементы конструкции в обязательном порядке обрабатываются антисептиками и антипиренами.

Итог: Проект, в котором продумано всё

Этот проект - наглядный пример того, как даже в компактном формате можно создать полноценное, энергоэффектиное и комфортное жилье. Здесь нет случайных решений: от толщины фундаментной плиты до шага укладки арматурной сетки - всё просчитано и направлено на один результат: надёжный и тёплый дом, который прослужит десятилетия.

Компания Wood House реализует проекты любой сложности, будь то дом из бруса, как в прошлый раз, или из современных блочных материалов, как этот. Главное для нас - качество, проверенное технологиями.

А что для вас важнее в загородном доме: классика дерева или современные материалы? Пишите в комментариях!

#WoodHouse #ВудХаус #ПроектДома #ДомИзБлоков #Инноблок #КерамзитобетонныеБлоки #СтроительствоДома #ОдноэтажныйДом #ПланировкаДома #ЭнергоэффективныйДом #МонолитнаяПлита #СтропильнаяСистема #ТехнологииСтроительства #ЗагородныйДом #НадежныйДом