Найти в Дзене

«Перепланировка однокомнатной квартиры»

Когда площадь всего 40 м², приходится продумывать каждый сантиметр.
Главная задача — не просто разместить всё необходимое, а сохранить ощущение воздуха и света. Изначальная планировка Но выбрали этот: Что сделали: Планировка — это важнейший этап, основа и фундамент всего ремонта. Именно поэтому я приглашаю вас присоединиться к интенсиву «PROПЛАНИРОВКИ».

Когда площадь всего 40 м², приходится продумывать каждый сантиметр.

Главная задача — не просто разместить всё необходимое, а
сохранить ощущение воздуха и света.

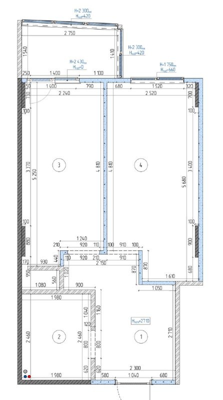
Изначальная планировка

-2
  • Огромная вытянутая спальня и такая же кухня.
  • Не было зоны гостиной
  • Хотелось добавить рабочее место, но поставить его было негде.

Но выбрали этот:

-4

Что сделали:

  • Отказались от постирочной, чтобы сохранить ощущение воздуха и не перегружать 40 м².
  • Скруглили стену между спальней и гостиной — так в пространство попадает больше естественного света.
  • Перепланировали кухню: теперь она компактная, но функциональная, с удобным фронтом и обеденной зоной.
  • Разделили общесемейное пространство на зоны — кухня, столовая, мягкая зона и рабочее место. Благодаря этому исчез эффект узкого «вагончика».
  • У окна сделали уютную зону отдыха, где можно просто посидеть и посмотреть в окно.
  • В спальне разместили полноценную кровать и вместительный шкаф.
  • Ещё один большой шкаф — в прихожей, что решает вопрос хранения.

Планировка — это важнейший этап, основа и фундамент всего ремонта.

Именно поэтому я приглашаю вас присоединиться к интенсиву «PROПЛАНИРОВКИ».