Найти в Дзене

🔥 План тёплых полов

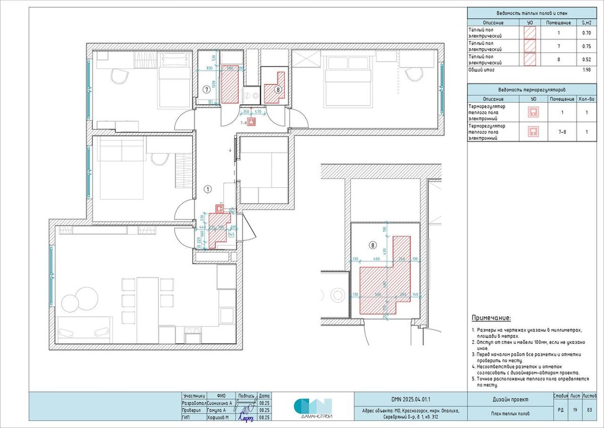
🔥 План тёплых полов Тёплый пол = комфорт. Но без проекта он может оказаться под шкафом или ковром. 📑 План тёплых полов показывает: • зоны подогрева, • площади контуров, • места терморегуляторов. Зачем он нужен? • Тепло только там, где это нужно. • Нет перерасхода электричества. • Управление комфортом становится простым. 👉 Тёплый пол по плану = уют без лишних затрат. #ремонтподключ #ремонт #дизайнпроект #интерьер #советыдизайнера

🔥 План тёплых полов

Тёплый пол = комфорт. Но без проекта он может оказаться под шкафом или ковром.

📑 План тёплых полов показывает:

• зоны подогрева,

• площади контуров,

• места терморегуляторов.

Зачем он нужен?

• Тепло только там, где это нужно.

• Нет перерасхода электричества.

• Управление комфортом становится простым.

👉 Тёплый пол по плану = уют без лишних затрат.

#ремонтподключ #ремонт #дизайнпроект #интерьер #советыдизайнера