Найти в Дзене

Сложная задача: скрыто разместить систему вентиляции и кондиционирования, сохранив дизайн и высоту потолков.

Проектирование: @luxorta
Расположение: Санкт-Петербург
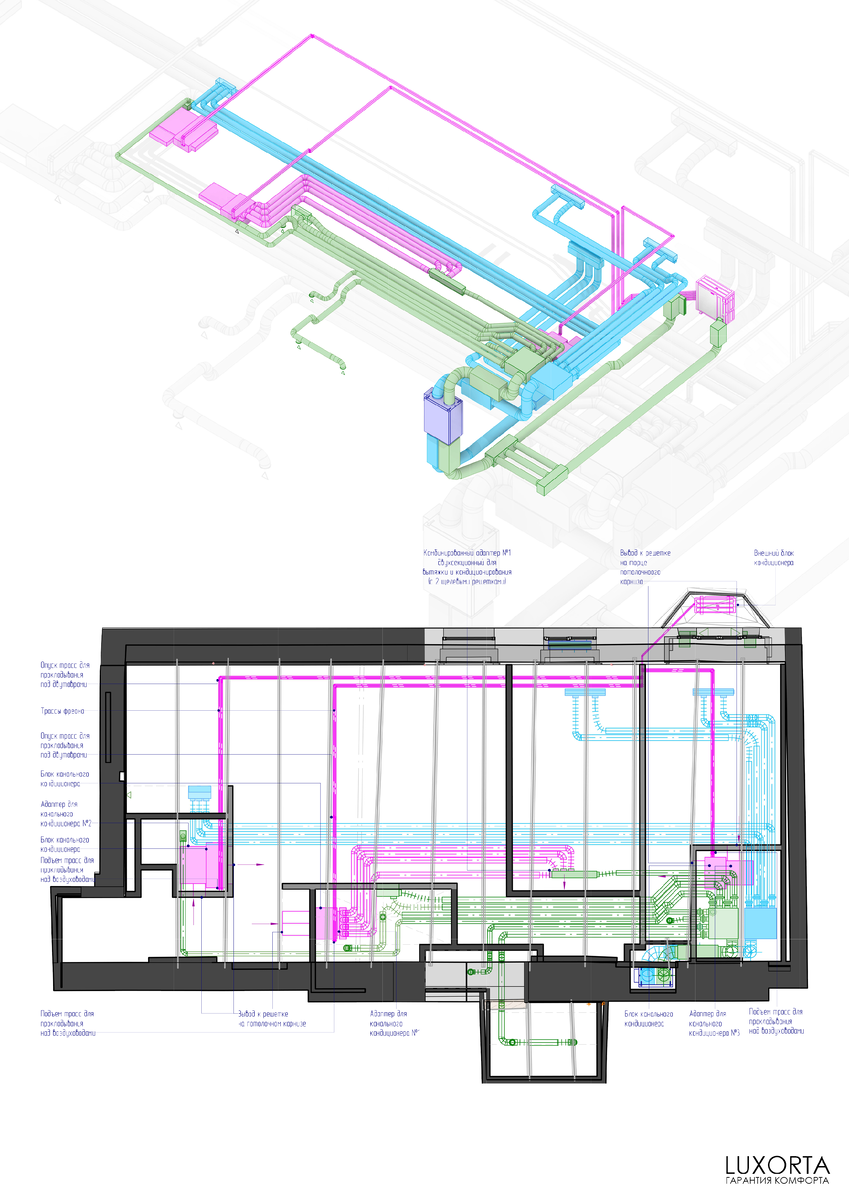
Год: 2024 Задача была непростой: нужно было спроектировать и внедрить систему приточно-вытяжной вентиляции и канального кондиционирования, при этом сохранить чистый дизайн интерьера, не нарушив высоту потолков и эстетику помещений. Особенности реализации:
- Воздухообмен 420 м³/час — за час в квартире площадью 92 м2 полностью обновляется воздух.
- Сеть воздуховодов проложена в конструкции пола и за потолком.
- Приток и вытяжка осуществляются через декоративные решетки, встроенные в карнизы и потолочные плоскости.
- Все коммуникации проложены без изменений фасада.
- Вентиляционная установка размещена в звукоизолированной нише.
- Дренаж кондиционеров подключен к канализации для отвода конденсата.
- Организованы полноценные зоны доступа для обслуживания и замены оборудования Мы органично вписали инженерные системы в дизайн-проект: крупное оборудование разместили в технических нишах, а вентиляционные решетки и коммуникации замаскировали

Проектирование: @luxorta
Расположение: Санкт-Петербург
Год: 2024

Задача была непростой: нужно было спроектировать и внедрить систему приточно-вытяжной вентиляции и канального кондиционирования, при этом сохранить чистый дизайн интерьера, не нарушив высоту потолков и эстетику помещений.

Особенности реализации:
- Воздухообмен 420 м³/час — за час в квартире площадью 92 м2 полностью обновляется воздух.
- Сеть воздуховодов проложена в конструкции пола и за потолком.
- Приток и вытяжка осуществляются через декоративные решетки, встроенные в карнизы и потолочные плоскости.
- Все коммуникации проложены без изменений фасада.
- Вентиляционная установка размещена в звукоизолированной нише.
- Дренаж кондиционеров подключен к канализации для отвода конденсата.
- Организованы полноценные зоны доступа для обслуживания и замены оборудования

Мы органично вписали инженерные системы в дизайн-проект: крупное оборудование разместили в технических нишах, а вентиляционные решетки и коммуникации замаскировали лепниной и карнизами.

Luxorta — гарантия комфорта
Наш сайт:
luxorta.ru/

#люксорта #вентиляция #кондиционирование #инженерия #дизайнинтерьера #санктпетербург #приточновытяжнаявентиляция #проектированиевентиляции