Добавить в корзинуПозвонить
Найти в Дзене
Юлия Осипова

✨ Проект «Скандинавская гармония» ✨

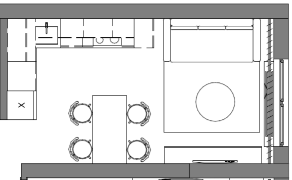
Представьте себе кухню-гостиную площадью всего 18 квадратных метров, где каждая деталь работает на ощущение спокойствия и уюта.
На такой компактной площади пришлось умело разместить всё, что нужно для жизни: ▪ зону кухни с удобной системой хранения, ▪ обеденную зону, где можно собраться всей семьёй, ▪ зону отдыха с книжным стеллажом и ТВ, создающую настоящий уголок для расслабления. В основе интерьера — сложные оттенки серого, тёплое натуральное дерево и мягкий рассеянный свет, который словно обнимает пространство.
🎯 Главная идея проекта — превратить маленькое пространство в комфортную, функциональную и гармоничную кухню-гостиную, где хочется отдыхать, читать, готовить и встречаться с близкими.
💡 Стиль можно описать как современный минимализм с нотками скандинавской мягкости — без лишнего декора, но с любовью к материалам, свету и пропорциям. ✨ В конкурсных проектах я люблю экспериментировать с яркими сочетаниями и смелыми акцентами, но в работе всегда иду от предпочтений зака
Изображение мудборда взято с сайта Pinterest и использовано в ознакомительных целях.
Изображение мудборда взято с сайта Pinterest и использовано в ознакомительных целях.

Представьте себе кухню-гостиную площадью всего 18 квадратных метров, где каждая деталь работает на ощущение спокойствия и уюта.

-2

На такой компактной площади пришлось умело разместить всё, что нужно для жизни:

▪ зону кухни с удобной системой хранения,

▪ обеденную зону, где можно собраться всей семьёй,

▪ зону отдыха с книжным стеллажом и ТВ, создающую настоящий уголок для расслабления.

-3
-4

В основе интерьера — сложные оттенки серого, тёплое натуральное дерево и мягкий рассеянный свет, который словно обнимает пространство.

-5
-6

🎯 Главная идея проекта — превратить маленькое пространство в комфортную, функциональную и гармоничную кухню-гостиную, где хочется отдыхать, читать, готовить и встречаться с близкими.

💡 Стиль можно описать как современный минимализм с нотками скандинавской мягкости — без лишнего декора, но с любовью к материалам, свету и пропорциям.

✨ В конкурсных проектах я люблю экспериментировать с яркими сочетаниями и смелыми акцентами, но в работе всегда иду от предпочтений заказчика: ваш дом — ваша история, и она важнее любых трендов.