Найти в Дзене
ПСК "Градиент"

Компактный дом 85 м²: рациональное решение для небольшого участка

Экономия пространства - главный козырь этого проекта. Габариты 7х6 метров позволяют разместить дом даже на маленьком участке, оставив место для сада, огорода или парковки. При этом дом получился достаточно функциональным и комфортным для проживания. Прочный фундамент на сваях с ростверком обеспечивает надёжность конструкции. Стены из газобетона с толщиной несущих конструкций 300 мм гарантируют отличную теплоизоляцию. Внешняя отделка штукатуркой придаёт дому аккуратный внешний вид. Функциональность на первом плане: Комфортное пространство: Общая площадь дома составляет 85,57 м², что делает его идеальным вариантом для семьи из 3-4 человек. Рациональное использование площади позволяет разместить всё необходимое для комфортной жизни: Хотите узнать больше о планировках для небольших участков? Читайте наши предыдущие материалы о том, как эффективно использовать пространство в компактном доме. Такой дом это не компромисс, а продуманное решение для тех, кто ценит функциональность и рациональн
Оглавление

Почему стоит рассмотреть небольшой дом?

Экономия пространства - главный козырь этого проекта. Габариты 7х6 метров позволяют разместить дом даже на маленьком участке, оставив место для сада, огорода или парковки. При этом дом получился достаточно функциональным и комфортным для проживания.

Технические особенности

Прочный фундамент на сваях с ростверком обеспечивает надёжность конструкции. Стены из газобетона с толщиной несущих конструкций 300 мм гарантируют отличную теплоизоляцию. Внешняя отделка штукатуркой придаёт дому аккуратный внешний вид.

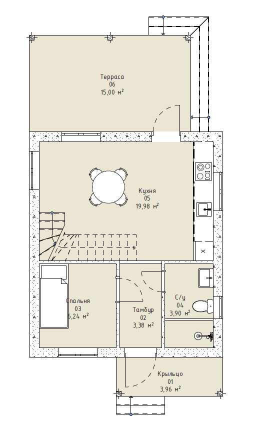
Планировка первого этажа

Функциональность на первом плане:

  • Просторная кухня-гостиная 20 м²
  • Уютная спальня
  • Практичный тамбур и крыльцо
  • Удобный санузел
  • Терраса 15 м² для летнего отдыха
-2

Второй этаж

Комфортное пространство:

  • Просторный холл
  • Две светлые спальни
  • Санузел
-3

Общая площадь дома составляет 85,57 м², что делает его идеальным вариантом для семьи из 3-4 человек.

Преимущества планировки

Рациональное использование площади позволяет разместить всё необходимое для комфортной жизни:

  • Высокие потолки на первом этаже (2,7 м) создают ощущение простора
  • Терраса становится дополнительным местом для отдыха
  • Наклонные потолки мансарды придают особую атмосферу уюта

Хотите узнать больше о планировках для небольших участков? Читайте наши предыдущие материалы о том, как эффективно использовать пространство в компактном доме.

Такой дом это не компромисс, а продуманное решение для тех, кто ценит функциональность и рациональный подход к строительству.

Заглядывайте в наш канал и на сайт ПСК Градиент тут много полезного.