Добавить в корзинуПозвонить
Найти в Дзене
ДОМ-Т

ДОМ ПОД СЕМЕЙНУЮ ИПОТЕКУ: ТН-90 (ПРАКТИЧНЫЙ)

Жизненное пространство Представляем вашему вниманию дом площадью 90 м² с двумя спальнями под семейную ипотеку, ТН-90. Сегодня мы подробно разберем его планировочные решения, которые делают этот дом не просто зданием, а по-настоящему комфортным пространством для жизни вашей семьи. Гармония в деталях: почему планировка ТН-90 так удобна Ключевой принцип этого проекта — разумное планировочное решение и максимальная эффективность. Здесь нет ничего лишнего — каждый квадратный метр работает на ваш комфорт. Проект создан для тех, кто ценит практичность, функциональность и уют без излишеств. Давайте рассмотрим, как это реализовано на практике. Планировочные решения дома под семейную ипотеку с двумя спальнями Экспликация помещений: Почему эта планировка работает? Дом ТН-90 — это реальная возможность улучшить качество жизни без лишних затрат. Продуманная до мелочей планировка, энергоэффективные технологии и скорость строительства «под ключ» или до стадии «white box» делают вашу мечту о собственно

Жизненное пространство

Представляем вашему вниманию дом площадью 90 м² с двумя спальнями под семейную ипотеку, ТН-90. Сегодня мы подробно разберем его планировочные решения, которые делают этот дом не просто зданием, а по-настоящему комфортным пространством для жизни вашей семьи.

Гармония в деталях: почему планировка ТН-90 так удобна

Ключевой принцип этого проекта — разумное планировочное решение и максимальная эффективность. Здесь нет ничего лишнего — каждый квадратный метр работает на ваш комфорт. Проект создан для тех, кто ценит практичность, функциональность и уют без излишеств.

Давайте рассмотрим, как это реализовано на практике.

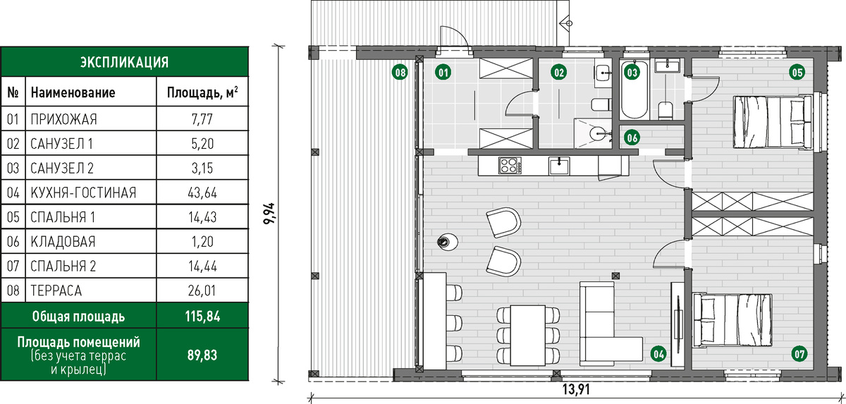
Планировочные решения дома под семейную ипотеку с двумя спальнями

-2

Экспликация помещений:

  • Прихожая — просторное помещение с двумя гардеробными шкафами, что позволяет организовать хранение верхней одежды и обуви без беспорядка.
  • Гостиная-кухня-столовая — совмещенное пространство, где семья проводит большую часть времени вместе. Здесь можно готовить, обедать, отдыхать у телевизора и принимать гостей, не чувствуя тесноты.
  • Мастер-спальня — родительское убежище с отдельным санузлом, просторная и комфортная.
  • Спальня 2 — подойдет для детей или в качестве кабинета.
  • Техническое помещение — это помещение соответствует всем требованиям газовых служб для размещения котла и другого инженерного оборудования, что является обязательным условием для получения кредита на строительство. В этом помещении для наибольшего удобства также установлено дополнительное сантехническое оборудование.

Почему эта планировка работает?

  • Никаких коридоров-проходов: площадь использована максимально эффективно, минимизированы бесполезные «транзитные» зоны.
  • Уединение для всех: две изолированные спальни гарантируют личное пространство как для детей, так и для взрослых членов семьи.
  • Фокус на семье: большая гостиная, объединенная с кухней, становится естественным центром притяжения, укрепляя семейные связи.

Дом ТН-90 — это реальная возможность улучшить качество жизни без лишних затрат. Продуманная до мелочей планировка, энергоэффективные технологии и скорость строительства «под ключ» или до стадии «white box» делают вашу мечту о собственном доме достижимой уже сегодня.

-3

Хотите узнать точную стоимость проекта для вашего участка и рассчитать платеж по семейной ипотеке?
Наши специалисты проконсультируют вас, помогут подобрать лучшее решение и сопроводят на всех этапах — от одобрения кредита до новоселья.

Ваш дом ТН – 90 ждет вас!

Узнайте больше на нашем сайте: www.tndom.ru

Звоните для консультации: +7 (495) 774-44-77