Добавить в корзинуПозвонить
Найти в Дзене
Все о ремонте квартир

"Восторг!" - Идеальный интерьер "сталинки" 50 м. кв.

Дизайн небольшой квартиры отражает индивидуальность хозяйки, которая ценит эстетику, элегантность и домашний уют. Двухкомнатная квартира в Москве перешла по наследству внучке от бабушки, с которой они были очень близки всю сознательную жизнь Ирины (внучка). Еще будучи ребенком, Ира много времени проводила здесь с бабушкой и дедом, ей нравилось теплая, душевная атмосфера в доме любимых ею людей. Позже, когда бабушка осталась одна, а Ирина окончила университет и устроилась на работу, девушка предлагала сделать современный ремонт в этой квартире, но хозяйка дома категорически была против: “ Пусть, пока я жива, все останется так, а потом можешь делать как хочешь!” Сейчас, когда Ирина стала полной хозяйкой кварты, она не захотела оформлять “милое сердцу жилье”, как хотела раньше, а решила сохранить аутентичность дома, некоторые винтажные предметы мебели, декора и искусства и грамотно вписать их в новый интерьер. Для того, чтобы сделать гармоничный интерьер и грамотную планировку, Ирина обра
Оглавление

Дизайн небольшой квартиры отражает индивидуальность хозяйки, которая ценит эстетику, элегантность и домашний уют.

Двухкомнатная квартира в Москве перешла по наследству внучке от бабушки, с которой они были очень близки всю сознательную жизнь Ирины (внучка). Еще будучи ребенком, Ира много времени проводила здесь с бабушкой и дедом, ей нравилось теплая, душевная атмосфера в доме любимых ею людей.

Позже, когда бабушка осталась одна, а Ирина окончила университет и устроилась на работу, девушка предлагала сделать современный ремонт в этой квартире, но хозяйка дома категорически была против: “ Пусть, пока я жива, все останется так, а потом можешь делать как хочешь!”

Сейчас, когда Ирина стала полной хозяйкой кварты, она не захотела оформлять “милое сердцу жилье”, как хотела раньше, а решила сохранить аутентичность дома, некоторые винтажные предметы мебели, декора и искусства и грамотно вписать их в новый интерьер.

Для того, чтобы сделать гармоничный интерьер и грамотную планировку, Ирина обратилась к дизайнеру Ольге Усачевой, по дизайн-проекту которой, позже сделали капитальный ремонт квартиры.

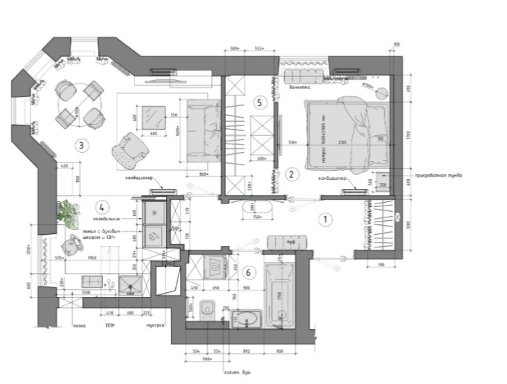
план квартиры после перепланировки и установки мебели
план квартиры после перепланировки и установки мебели

  Классические формы мебели, мягкие текстуры и винтажные детали создают атмосферу спокойствия, вкуса и элегантности в сочетании с домашним уютным теплом.

Гостиная
Гостиная

Красивые оттенки серого и синего дополняются благородными глубокими оттенками красного и бордового - в сочетании выглядят стильно и гармонично.

 Красный и голубой любимые цвета заказчицы, они также нравились и предыдущей хозяйке.
-3
Удачное расположение ободенной зоны, которая освещена естественным светом и визуально разделяет пространство кухни и гостиной, даже при открытой стеклянной перегородке
Удачное расположение ободенной зоны, которая освещена естественным светом и визуально разделяет пространство кухни и гостиной, даже при открытой стеклянной перегородке

Картины, изысканные аксессуары и растения наполняют пространство жизнью и подчеркивают индивидуальность и характер владелицы этого шикарного жилья с высокими потолками и большими окнами, через которые комнаты наполняются естественным светом, а, продуманное дизайнером, многоуровневое освещение делает квартиру еще более комфортной для жизни.

Кухня

Здесь на подоконнике, который идет заодно со столешницей кухонной мебели, оформили место для завтраков с красивым видом из окна

-5
-6

Красивое сочетании современных элементов с винтажными и классическими

Вид из гостиной на кухню
Вид из гостиной на кухню

Некоторые предметы мебели, которые девушке достались от старшего поколения, она отдала на реставрацию и покраску. 

Прихожая

У старшего поколения была большая коллекция книг, часть из них девушка оставила себе, часть сдала в библиотеку.

-8
-9
-10

На мой взгляд, квартира получилась потрясающей, где подчеркнут и изысканный вкус заказчицы, и выдержан стиль, и чувствуется историческая значимость старинного дома.

Спальня

Нежная, уютная - все располагает для спокойного отдыха и хорошего сна.

-11
-12

Дизайнер справилась на все 200%, кстати так говорит Ирина о работе Ольги Усачевой.

Ванная комната

Мне очень понравилось помещение выполненное в классическом стиле с красивым акцентным бордовым цветом, который идеально смотрится с "золотыми" элементами.

-13
-14
-15

Поделитесь в комментариях, понравился ли вам интерьер этой небольшой уютной квартиры?!

Спасибо, что заглянули в мою студию! Понравилось ставьте лайки и не забывайте подписываться!