Добавить в корзинуПозвонить
Найти в Дзене

Классика без излишеств: 45 м² продуманного уюта

На первый взгляд кажется, что разместить всё необходимое на 45 квадратных метрах гостиную с камином, обеденную зону, спальню с рабочим местом, гардеробную и просторную ванную и при этом сохранить лёгкость и стиль — задача из разряда невозможных. Но грамотная планировка и понимание реальных потребностей заказчика позволяют творить чудеса.
Посмотрите, как мы распределили пространство, чтобы каждый метр работал и при этом интерьер оставался лёгким и гармоничным. Этот проект о том, как продуманная планировка и внимание к деталям позволяют реализовать максимум на компактной площади. Меня зовут Наталья Корнюхина, я дизайнер интерьеров и руководитель студии KN.ARCH. Мы создаём современные и элегантные интерьеры, где красота не жертвует функциональностью.
Небольшая, но уютная гостиная воспринимается как продолжение кухни. Минималистичная композиция с ТВ и биокамином, огонь и мягкое освещение создают ту самую атмосферу дома, куда хочется возвращаться вечером.
Главный акцент — диван из
Оглавление

На первый взгляд кажется, что разместить всё необходимое на 45 квадратных метрах гостиную с камином, обеденную зону, спальню с рабочим местом, гардеробную и просторную ванную и при этом сохранить лёгкость и стиль — задача из разряда невозможных. Но грамотная планировка и понимание реальных потребностей заказчика позволяют творить чудеса.

Посмотрите, как мы распределили пространство, чтобы каждый метр работал и при этом интерьер оставался лёгким и гармоничным. Этот проект о том, как продуманная планировка и внимание к деталям позволяют реализовать максимум на компактной площади.

Меня зовут Наталья Корнюхина, я дизайнер интерьеров и руководитель студии KN.ARCH. Мы создаём современные и элегантные интерьеры, где красота не жертвует функциональностью.


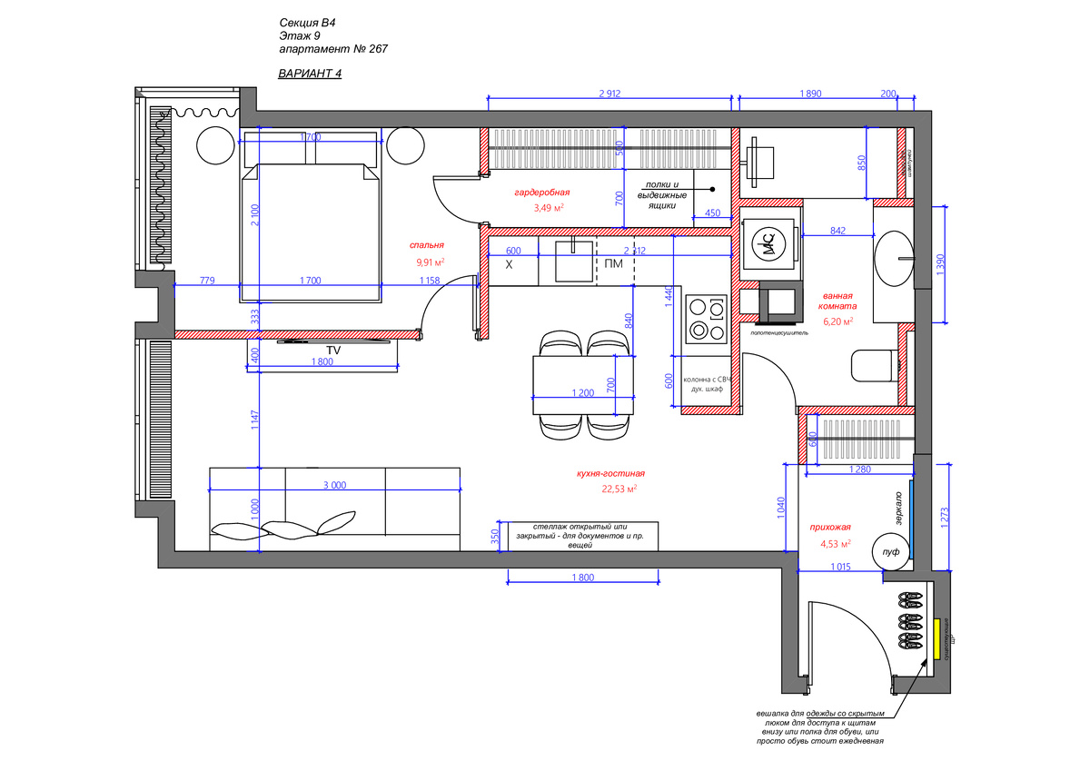
итоговая планировка квартиры
итоговая планировка квартиры


Кухня-гостиная 22 м² — открытое пространство и визуальное единство

Небольшая, но уютная гостиная воспринимается как продолжение кухни. Минималистичная композиция с ТВ и биокамином, огонь и мягкое освещение создают ту самую атмосферу дома, куда хочется возвращаться вечером.

Главный акцент — диван из бархатистого текстиля. Он задаёт ощущение расслабленности и комфорта.

Комфортный центр квартиры: уютная зона отдыха с камином и мягким диваном в нейтральных тонах создаёт атмосферу дома, где приятно проводить вечера.
Комфортный центр квартиры: уютная зона отдыха с камином и мягким диваном в нейтральных тонах создаёт атмосферу дома, где приятно проводить вечера.

-3

Визуальное расширение достигается за счёт единой отделки пола — крупноформатный керамогранит с мягким мраморным рисунком отражает свет и объединяет зоны.

Обеденная группа с бархатными стульями оттенка какао и хрустальная люстра добавляют интерьеру торжественности, не перегружая пространство.

-4

Главная идея — не перегружать


Кухня в этой квартире получилась функциональной, но при этом лёгкой и уютной. Несмотря на небольшую площадь, здесь удалось разместить всё необходимое.
Тёплые акценты в отделке и мягкий свет создают ощущение домашнего уюта, а продуманная эргономика позволяет готовить с комфортом, не теряя ни сантиметра площади.

Лаконичные фасады без ручек, глубокий оттенок каменной столешницы и продуманная подсветка создают ощущение целостности.

Функциональная и современная: продуманная организация хранения, лёгкие фасады без ручек и светлые материалы создают ощущение простора.
Функциональная и современная: продуманная организация хранения, лёгкие фасады без ручек и светлые материалы создают ощущение простора.
-6

Спальня с видом и смыслом


На площади чуть больше 12 м² удалось разместить всё необходимое: полноценную кровать, рабочее место у окна и систему хранения. Благодаря грамотной планировке спальня остаётся лёгкой.

У кровати — мягкое изголовье из текстильной обивки в тёплом оттенке капучино, которое добавляет уюта и визуально смягчает строгую геометрию помещения. Рабочая зона у окна решена максимально эргономично: узкий консольный стол и лёгкий стул на тонких ножках не утяжеляют интерьер, а дневной свет делает пространство комфортным для работы и чтения.

Интерьер спальни объединяет две функции — зона отдыха и рабочее место у окна. Мягкая палитра и текстуры делают пространство спокойным и сбалансированным.
Интерьер спальни объединяет две функции — зона отдыха и рабочее место у окна. Мягкая палитра и текстуры делают пространство спокойным и сбалансированным.
-8

Особое внимание уделено освещению: потолочный светильник с кольцевыми плафонами создаёт современный акцент, а настенные бра у кровати дают мягкий, рассеянный свет для вечернего отдыха. Благодаря нейтральной палитре, фактурному текстилю и мягкому освещению спальня получилась спокойной и гармоничной — именно такой, где хочется встречать и провожать день.

-9
-10

Гардеробная и ванная — рационально и стильно

В спальне удалось выделить компактную гардеробную площадью 3.5 м², а ванная стала продолжением общей стилистики.

Зеркала, рельефные фасады и
графичный рисунок плитки визуально увеличивают пространство. Светлые мраморные поверхности, графичный рисунок и скрытые шкафы создают ощущение порядка.

-11
-12

Большое зеркало визуально удваивает пространство, а вместительная тумба обеспечивает удобное хранение. Даже при небольшой площади здесь есть всё необходимое — от просторной душевой до скрытой зоны для стиральной и сушильной машин.

-13
-14

Ощущение порядка и уюта с порога

Первое впечатление всегда формирует прихожая — и здесь оно именно то, которое нужно: чистота, порядок и свет.

Несмотря на компактную площадь, пространство организовано максимально рационально. Вместо громоздких шкафов —
встроенные системы хранения с гладкими фасадами «в потолок». Это решение визуально поднимает потолки и избавляет от ощущения тесноты.

-15

-16

Консоль с зеркалом добавляет интерьеру лёгкости и элегантности — именно здесь удобно оставить ключи или любимые духи перед выходом.

Тёплое освещение, единое с остальными зонами, создаёт плавный переход в кухню-гостиную и поддерживает общую атмосферу комфорта.

-17
Светлая и лаконичная, с системой хранения и зеркалом, которое визуально увеличивает пространство. Минимум предметов — максимум комфорта с первых шагов в дом.
Светлая и лаконичная, с системой хранения и зеркалом, которое визуально увеличивает пространство. Минимум предметов — максимум комфорта с первых шагов в дом.

Итог


Когда мы начинали работу над этим проектом, заказчик мечтал о классическом интерьере, где есть место отдыху, красоте и привычному ощущению дома. Мы доказали:
даже небольшая площадь не мешает создать атмосферу комфорта, если каждое решение — осознанное.