Найти в Дзене
Войти
RUDESIGN_95 🏗️Грозный
10 подписчиков
Подписаться
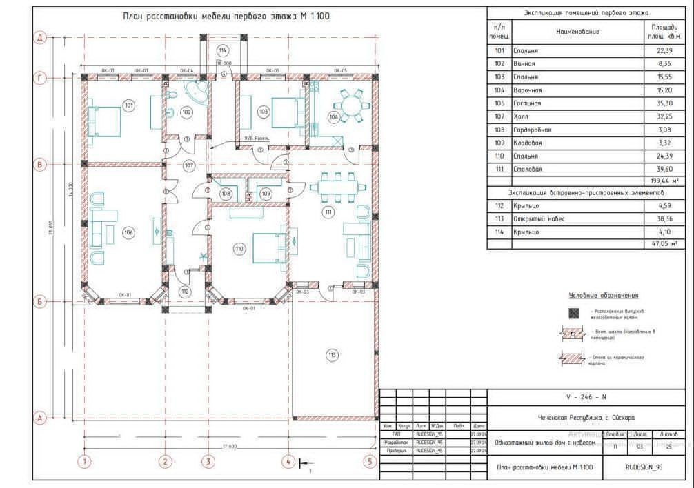
Готовый проект одноэтажного дома
19 октября
19 окт
~1 мин
Готовый проект одноэтажного дома