Найти в Дзене

Чертежные и проектные работы: качество и профессионализм в каждой детали

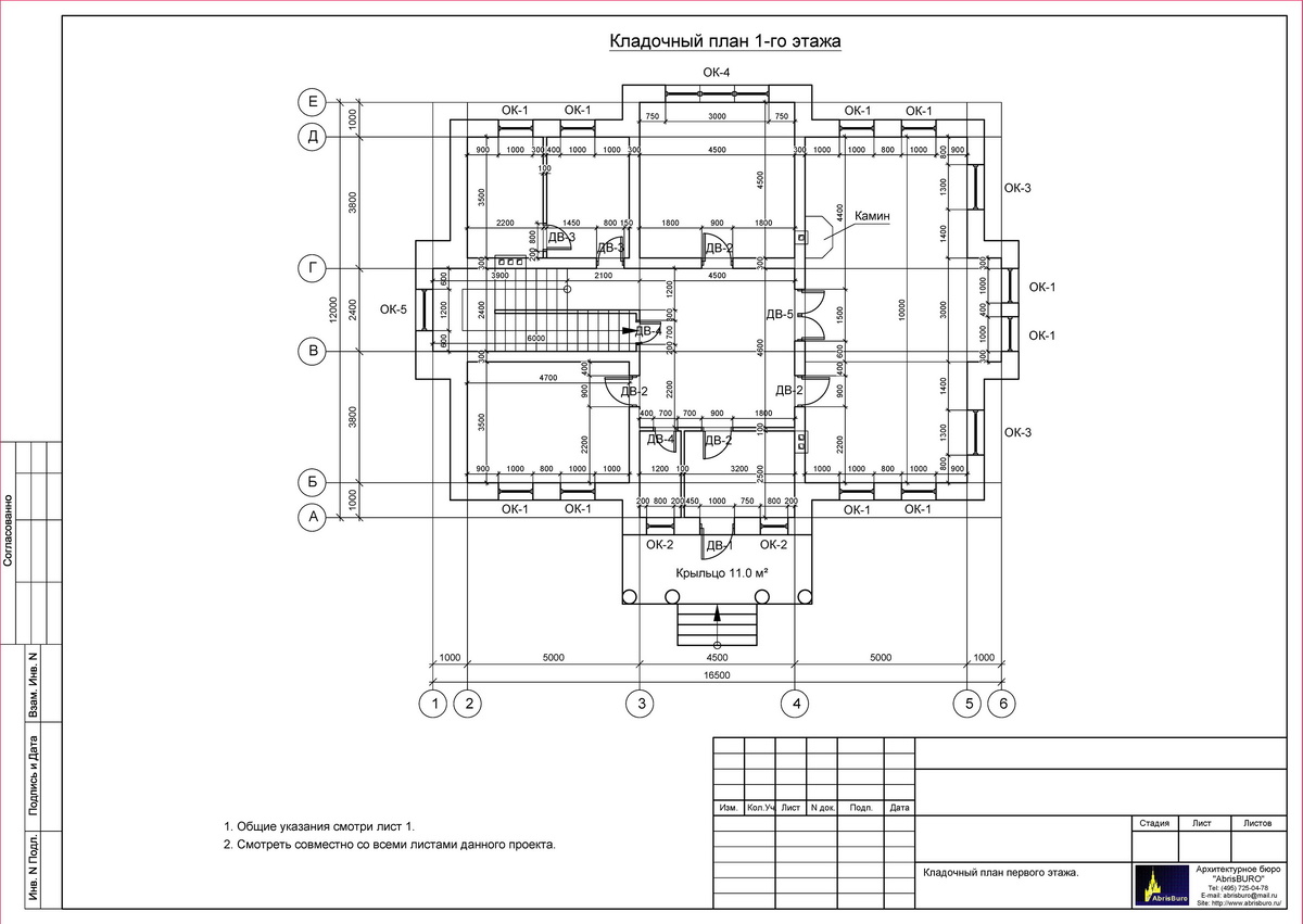
Чертежные и проектные работы в архитектурном бюро АБРИСБЮРО Чертежные работы Чертёж — это документ, содержащий контурное изображение изделия и другие данные, необходимые как для изготовления, контроля и идентификации изделия, так и для операций с самим документом. Чертежные работы — это один из ключевых этапов в проектировании и инженерии, который включает создание точных, образмеренных и подробных чертежей деталей и узлов, зданий и сооружений, машин и механизмов. Эти работы необходимы для четкого представления желаемого результата, облегчения документооборота и обеспечения связи между различными участниками проекта. Разработка Архитектурно-строительных чертежей – трудоемкая и ответственная работа, которая должна осуществляться по действующим нормам и правилам СНИП и СП. Необходимость разработки чертежей обуславливается потребностью Заказчика увидеть проект дома до начала строительства, а так же возведения здания строительной организацией в соответствии с проектной документацией. Что т
Оглавление
AbrisBURO — проекты коттеджей! Готовые проекты домов! Каталог проектов домов и коттеджей!

Чертежные и проектные работы в архитектурном бюро АБРИСБЮРО

СОДЕРЖАНИЕ

Чертежные работы

Что такое чертёж?

Чертёж — это документ, содержащий контурное изображение изделия и другие данные, необходимые как для изготовления, контроля и идентификации изделия, так и для операций с самим документом.

Чертежные работы — это один из ключевых этапов в проектировании и инженерии, который включает создание точных, образмеренных и подробных чертежей деталей и узлов, зданий и сооружений, машин и механизмов. Эти работы необходимы для четкого представления желаемого результата, облегчения документооборота и обеспечения связи между различными участниками проекта.

Разработка Архитектурно-строительных чертежей – трудоемкая и ответственная работа, которая должна осуществляться по действующим нормам и правилам СНИП и СП. Необходимость разработки чертежей обуславливается потребностью Заказчика увидеть проект дома до начала строительства, а так же возведения здания строительной организацией в соответствии с проектной документацией.

-2

Что такое чертёж?

Зачем нужны чертежные работы?

Чертежные работы выполняют несколько ключевых функций:

  • Визуализация Идеи: Чертежи помогают визуализировать проекты, что особенно важно на начальных этапах разработки.
  • Технические Спецификации: Они содержат все необходимые технические детали, такие как размеры, материалы и методы изготовления.
  • Коммуникация: Чертежи служат средством коммуникации между инженерами, архитекторами, подрядчиками и клиентами.
  • Документация: Являются важной частью проектной документации, необходимой для получения разрешений и сертификаций.
-3

Зачем нужны чертежные работы?

Виды чертежных работ

Существует несколько типов чертежных работ, каждый из которых имеет свои особенности и применение:

  • Архитектурные чертежи: Указывают на планировку зданий, фасады и разрезы.
  • Конструктивные чертежи: Включают схемы конструкций зданий и сооружений, детали их компонентов и узлов.
  • Механические чертежи: Представляют собой детали машин и механизмов, показывающие их конструкцию и взаимосвязи.
  • Электрические схемы: Используются для иллюстрации схем электроснабжения, силовых и слаботочных систем.
-4

Виды чертежных работ

Порядок и особенности разработки чертежей

Чертежные работы обычно проходят через несколько стадий:

  • Исследование и планирование: На этом этапе собираются все необходимые данные, ведутся переговоры с клиентами и составляются предварительные эскизы.
  • Создание чертежей: Используются различные инструменты, от простых карандашей и бумаги до компьютерных программ.
  • Проверка и согласование: Готовые чертежи проверяются на соответствие вопросам безопасности, стандартам и регламентам, после чего согласуются с заинтересованными сторонами.
  • Финализация и передача: Чертежи подготавливаются для передачи заказчику, могут быть созданы электронные копии или печатные версии.
-5

Процесс выполнения чертежных работ

Технологии в чертежных работах

В последние десятилетия появились новые технологии, которые значительно облегчили процесс чертежных работ:

  • Автоматизированные системы проектирования (CAD): Программы CAD, такие как AutoCAD, SolidWorks и другие, позволяют создавать точные 2D и 3D чертежи с использованием компьютерных технологий.
  • Моделирование информации о здании (BIM): Используется в архитектуре и строительстве для создания сложных и высоко детализированных моделей зданий с последующей автоматизированной генерацией чертежей.
  • Печать на 2D и 3D-принтерах: Полученные чертежи могут быть использованы для создания прототипов и моделей, что помогает лучше понять концепцию.
-6

Технологии в чертежных работах

Услуги по черчению в АБРИСБЮРО

Выполнение чертежных работ любой сложности в программах Autocad, Archicad, Revit, Компас, SW и от руки. Изготовление чертежей по готовой детали. Копирование деталей и перенос чертежа изделия с бумаги в электронный вид. Производство чертежей по готовой 3D модели. Изготовление чертежей по эскизам, фото заказчика, по словесному описанию. Разработка архитектурно-строительных и машиностроительных чертежей, сборочных чертежей и деталировок. Корректировка и доработка чертежей. Оцифровка чертежей. Перевод и экспорт чертежей и трехмерных моделей (векторизация), в различные электронные форматы (.pdf,.jpeg,.dwg, .step,.stl,.bin и прочие). Быстрое и качественное выполнение работ точно в срок. Мы знаем, как сберечь ваше свободное время, которое можете провести с пользой. Пока вы учитесь или работаете, решаете повседневные задачи и воплощаете мечты в реальность, мы всегда рядом - в шаге, в клике, по звонку. С каждым клиентом работаем индивидуально, относимся с уважением и учитываем все пожелания. Вся документация оформляется согласно СНИП, СП, ТУ, ГОСТы и ЕСКД. Опыт работ - более 25 лет. Каждый чертеж уникален и его цена зависит от объема работ. Чтобы оценить объем работ свяжитесь с нами по телефону +7 (495)-725-04-78 или оставьте заявку online, и мы подробно расскажем вам о цене будущих работ. Срок рассмотрения заявки от 15 минут.

-7

Услуги по черчению в АБРИСБЮРО

КАТЕГОРИИ

популярные теги

С уважением, ваш надежный проектировщик ABRISBURO