Найти в Дзене

Выполнены работы по монтажу домокомплекта БП-148 в Истринском районе

Новости со строительной площадки! 🚧

Рады сообщить, что на объекте выполнены работы по монтажу домокомплекта БП-148 в Истринском районе. 🏗️

-2
-3
-4
-5
-6

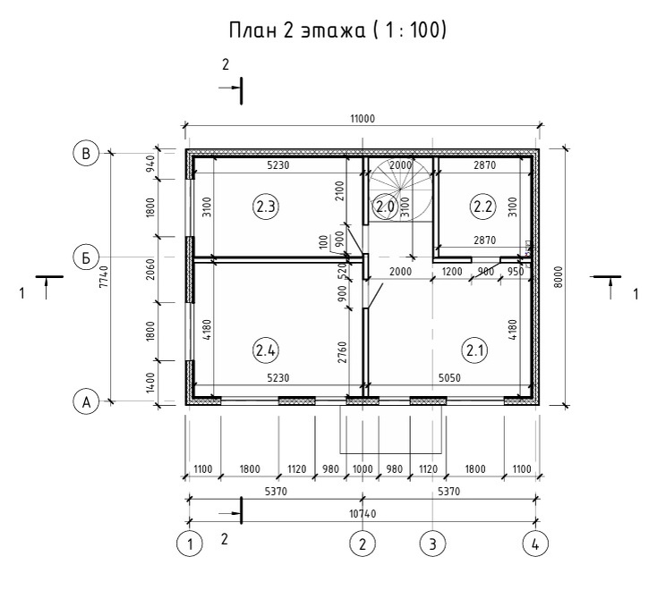
Здание — крупнопанельное, бескаркасное, двухэтажное. Габариты: 10,74х7,74 м. 📏

Несущие конструкции наружных стен 1 и 2 этажа представляют собой ребристые сборные железобетонные панели, выполненные по технологии БЭНПАНПремиум. 🏢

Внутренние стены — из панелей БЭНПАН. Высота этажа — 3,2 м. ⚒️

На первом этаже расположены: котельная, спортзал, санузел, гараж. 🚿🏋️‍♂️🚗

На втором этаже — кухня, две спальни, санузел. 🍽️🛏️🛁

Следите за нашими новостями и развитием проекта!

📞 Позвоните: +7 (495) 260-98-32

❓ А что для вас важнее в доме — просторные комнаты или современная планировка? Поделитесь в комментариях!

#строительство #новостройки #доммечты #Истра #строительство2024 #панельное_здание #стройка #инвестиции #недвижимость