Найти в Дзене

Квартира для больших семей в ЖК Supernova

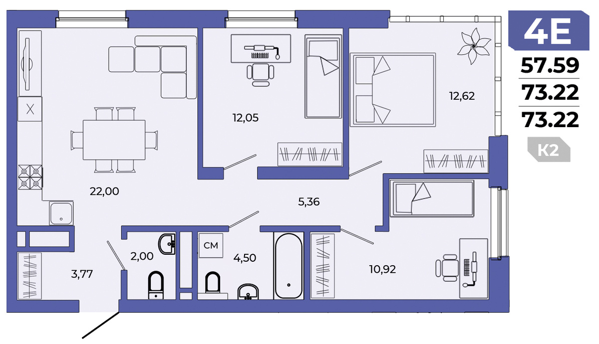
Сотрудники РКС Деволопмент предлагают рассмотреть к покупке просторную евро-четырехкомнатную квартиру для больших семей. Удобная эргономичная планировка, которая учитывает потребности человека, обеспечивает комфорт и функциональность пространства. Входная группа оснащена нишей под гардеробную и гостевым санузлом, который по желанию можно переоборудовать в постирочную. Кухня гостиная – место где жители смогут не только заниматься приготовлением любимых блюд, но и проводить душевные семейные вечера после тяжелого трудового дня. Небольшой коридор и три спальных комнаты, для каждого члена семьи найдется свой личный уголок для отдыха и увлечений. Изюминка данной квартиры – большое окно с французским остеклением: встречайте рассветы, вдохновляйтесь, живите с комфортом в ЖК Supernova. Просторная квартира уже с ремонтом, а ключи можно получить прямо в день сделки: выбирайте темную или светлую отделку. Телефон офиса продаж: +7 (8412) 50-09-17 Сайт проекта rks-penza.ru

Сотрудники РКС Деволопмент предлагают рассмотреть к покупке просторную евро-четырехкомнатную квартиру для больших семей.

Удобная эргономичная планировка, которая учитывает потребности человека, обеспечивает комфорт и функциональность пространства.

Входная группа оснащена нишей под гардеробную и гостевым санузлом, который по желанию можно переоборудовать в постирочную. Кухня гостиная – место где жители смогут не только заниматься приготовлением любимых блюд, но и проводить душевные семейные вечера после тяжелого трудового дня. Небольшой коридор и три спальных комнаты, для каждого члена семьи найдется свой личный уголок для отдыха и увлечений.

Изюминка данной квартиры – большое окно с французским остеклением: встречайте рассветы, вдохновляйтесь, живите с комфортом в ЖК Supernova.

Просторная квартира уже с ремонтом, а ключи можно получить прямо в день сделки: выбирайте темную или светлую отделку.

Телефон офиса продаж: +7 (8412) 50-09-17

Сайт проекта rks-penza.ru