Найти в Дзене

Как правильно спланировать строительство дома под семейную ипотеку: советы

Правильное планирование строительства дома под семейную ипотеку — залог успешного и комфортного приобретения жилья. Архитекторы и специалисты советуют учитывать множество факторов, чтобы дом соответствовал требованиям программы и при этом был удобным и энергоэффективным. Рассмотрим ключевые моменты планирования, проекты и советы по оптимизации бюджета. Первый шаг — выбор проекта, учитывающего состав семьи и её потребности. Оптимальными считаются малоэтажные дома до трёх этажей, площадь которых соответствует стандартам семейной ипотеки. Важно, чтобы проект прошёл согласование с банком и соответствовал нормативам 214-ФЗ и требованиям по оформлению эскроу-счёта. При проектировании учитывается возможность будущего расширения и эргономика внутренних помещений. Среди рекомендуемых — проекты с рациональной планировкой, которая позволяет сэкономить площадь без потери удобства. Многие архитектурные бюро предлагают адаптированные решения специально для семейной ипотеки, включая уже аккредитованн
Оглавление

Правильное планирование строительства дома под семейную ипотеку — залог успешного и комфортного приобретения жилья. Архитекторы и специалисты советуют учитывать множество факторов, чтобы дом соответствовал требованиям программы и при этом был удобным и энергоэффективным. Рассмотрим ключевые моменты планирования, проекты и советы по оптимизации бюджета.

Планирование дома под семейную ипотеку

Первый шаг — выбор проекта, учитывающего состав семьи и её потребности. Оптимальными считаются малоэтажные дома до трёх этажей, площадь которых соответствует стандартам семейной ипотеки. Важно, чтобы проект прошёл согласование с банком и соответствовал нормативам 214-ФЗ и требованиям по оформлению эскроу-счёта. При проектировании учитывается возможность будущего расширения и эргономика внутренних помещений.

Лучшие проекты домов и архитектурные бюро

Среди рекомендуемых — проекты с рациональной планировкой, которая позволяет сэкономить площадь без потери удобства. Многие архитектурные бюро предлагают адаптированные решения специально для семейной ипотеки, включая уже аккредитованные проекты, которые признаются банками. Помимо готовых решений, бюро могут разработать индивидуальный проект с учётом ваших пожеланий и требований банка.

Энергоэффективность и материалы

Современные энергоэффективные технологии снижают расходы на отопление и обслуживание дома. В проектировании учитывают ориентацию дома для максимального использования солнечного света, теплоизоляцию стен и применяют экологичные материалы. Использование современных панелей и систем отопления помогает снизить коммунальные платежи и повысить комфорт проживания.

Важные аспекты проектирования

При планировании важно продумать распределение жилых и технических зон, предусмотреть удобные входы, достаточное количество спален и санузлов, а также места для хранения. Продуманная вентиляция и естественное освещение создадут благоприятный микроклимат. Обязательным становится оформление полного пакета документов для банка, включая проектную документацию, которая подтверждает соответствие нормативам.

Бюджет и оптимизация затрат

Планируйте бюджет с запасом на непредвиденные расходы. Чтобы снизить затраты, выбирайте типовые и модульные проекты, применяйте энергоэффективные технологии, закладывайте реалистичные сроки и заключайте договоры с проверенными подрядчиками. Советы архитекторов помогут сбалансировать комфорт и экономию, сделать дом удобным для жизни и не выйти за рамки ипотеки.

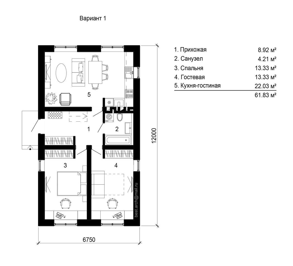
Типовой проект П-5 | архитектор Борис Бестужев | best-arch.ru
Типовой проект П-5 | архитектор Борис Бестужев | best-arch.ru

Такой комплексный подход к планированию дома под семейную ипотеку позволяет не только оформить кредит на выгодных условиях, но и получить удобное, надёжное и экономичное жильё, соответствующее всем требованиям и ожиданиям вашей семьи