Добавить в корзинуПозвонить
Найти в Дзене

Проект мечты: как мы строим современный дом из инноблоков для семьи в Москве

Каждый наш новый проект - это всегда вдохновение и вызов. Сегодня мы хотим познакомить вас с эскизным проектом комфортабельного двухэтажного дома из инноблоков, который мы создаем для заказчика Павла в Московской области. Этот дом - идеальный пример того, как современные технологии и продуманная планировка создают идеальное пространство для жизни. Давайте заглянем в проект и разберем его ключевые особенности. Архитектура и планировка: простор и функциональность Двухэтажный дом из блоков с гармоничными размерами 8.6 x 11.8 метров. Планировка продумана до мелочей: Важный момент: работы по террасе и навесу в данный проект не входят - их можно будет доработать позже по желанию заказчика. Конструктивные решения: надежность и энергоэффективность Основа дома - это монолитная железобетонная плита толщиной 300 мм, которая служит надежным и устойчивым фундаментом. Для усиления конструкции на уровне +2.850 и +5.850 запроектированы монолитные армопояса. Инженерные коммуникации: все продумано заран

Каждый наш новый проект - это всегда вдохновение и вызов. Сегодня мы хотим познакомить вас с эскизным проектом комфортабельного двухэтажного дома из инноблоков, который мы создаем для заказчика Павла в Московской области. Этот дом - идеальный пример того, как современные технологии и продуманная планировка создают идеальное пространство для жизни.

Давайте заглянем в проект и разберем его ключевые особенности.

Архитектура и планировка: простор и функциональность

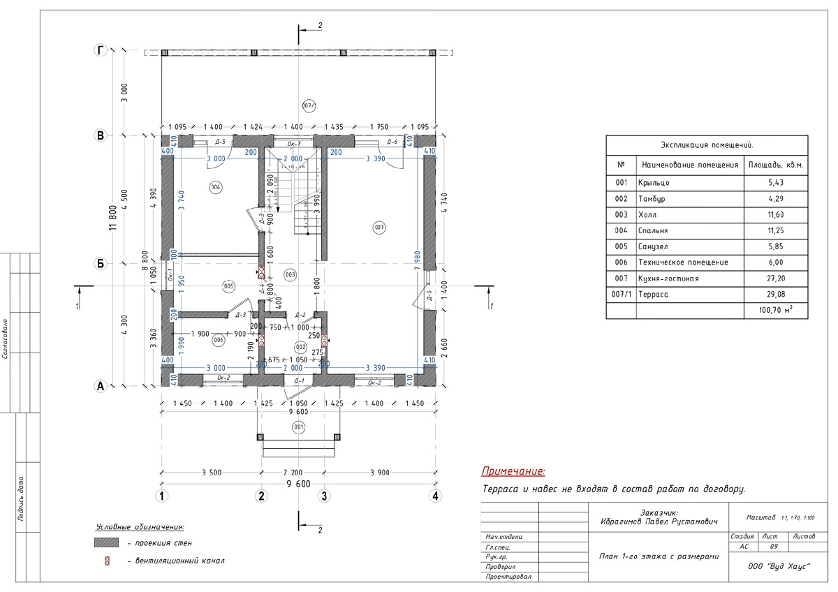
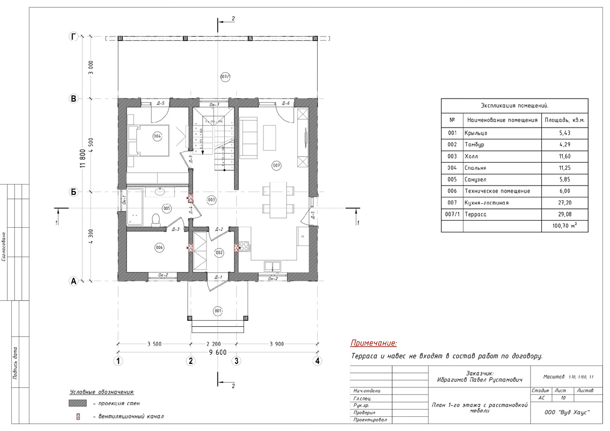
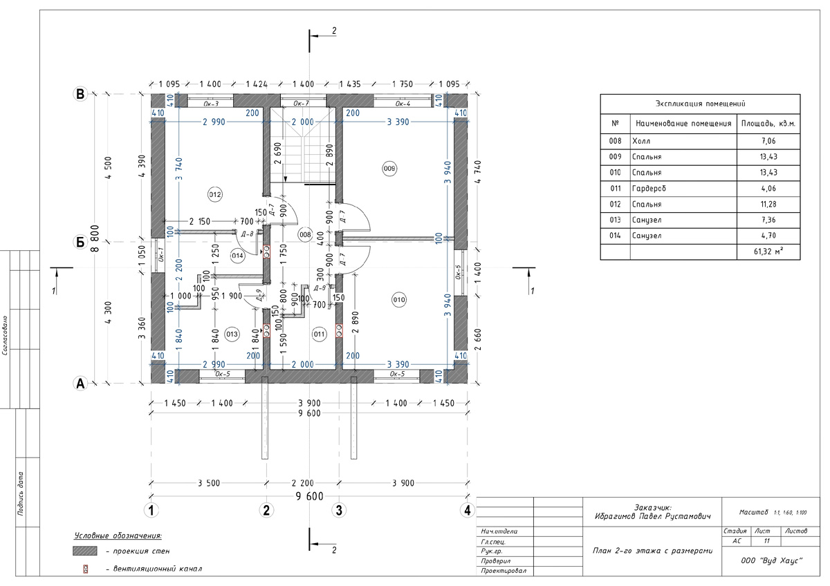
Двухэтажный дом из блоков с гармоничными размерами 8.6 x 11.8 метров. Планировка продумана до мелочей:

  • Первый этаж (100.70 м²) - здесь расположена просторная зона дня: прихожая (тамбур и холл), уютная спальня, техническое помещение, санузел и большая кухня-гостиная, которая станет сердцем дома. Отдельный бонус - терраса площадью 29 м², идеальная для отдыха на свежем воздухе.
  • Второй этаж (54.32 м²) - приватная зона. Здесь мы разместили три спальни, два санузла и гардеробную. Такое решение обеспечивает комфорт и уединение для всех членов семьи.

Важный момент: работы по террасе и навесу в данный проект не входят - их можно будет доработать позже по желанию заказчика.

Конструктивные решения: надежность и энергоэффективность

Основа дома - это монолитная железобетонная плита толщиной 300 мм, которая служит надежным и устойчивым фундаментом. Для усиления конструкции на уровне +2.850 и +5.850 запроектированы монолитные армопояса.

  • Стены: Несущие и внешние стены мы возводим из прочных инноблоков VRB 80, а для внутренних перегородок используем керамзитобетонные блоки толщиной 100 и 200 мм. Эта технология гарантирует отличную теплоизоляцию и долговечность.
  • Перекрытия и кровля: Межэтажные перекрытия выполнены из сборных плит, а чердачное - из деревянных балок сечением 50x200 мм. Кровля - металлочерепица по деревянной стропильной системе, что обеспечивает и легкость конструкции, и ее стойкость к погодным условиям.
  • Безопасность: Все деревянные элементы обрабатываются антипиренами и антисептиками для защиты от огня и биологических угроз.

Инженерные коммуникации: все продумано заранее

На этапе заливки фундамента мы предусмотрели все необходимые гильзы и закладные для подвода коммуникаций: канализации (ПВХ 110), водопровода (Ф63) и электрического кабеля (Ф40). Это избавляет от проблем с их интеграцией в будущем.

Окна и двери: свет и стиль

В доме будут установлены современные стеклопакеты ПВХ с белой ламинацией. Все открывающиеся створки спроектированы с открыванием внутрь помещений, что удобно и безопасно. Размеры оконных проемов варьируются, обеспечивая оптимальную инсоляцию каждого помещения.

Технико-экономические показатели дома:

  • Общая площадь: 155.02 м²
  • Жилая площадь: 76.59 м²
  • Площадь застройки: 89.99 м²
  • Высота потолков: 1-й этаж — 2.65 м, 2-й этаж — 2.68 м.

Этот проект наглядно демонстрирует наш комплексный подход к созданию домов. Мы не просто возводим стены, мы создаем надежное, комфортное и технологичное жилое пространство, где учтены все пожелания заказчика и строгие требования современных строительных стандартов (СП и СНиП).

Следите за нашими обновлениями, чтобы увидеть, как этот проект воплощается в жизнь!

#вудхаус #доммечты #строительстводомов #инноблок #проектированиедома #частныйдом #строительствомосква #современныйдом #семейныйдом #яндексдзен #домизблока #ижс