Найти в Дзене

Универсальный дом - шесть планировок одного проекта.

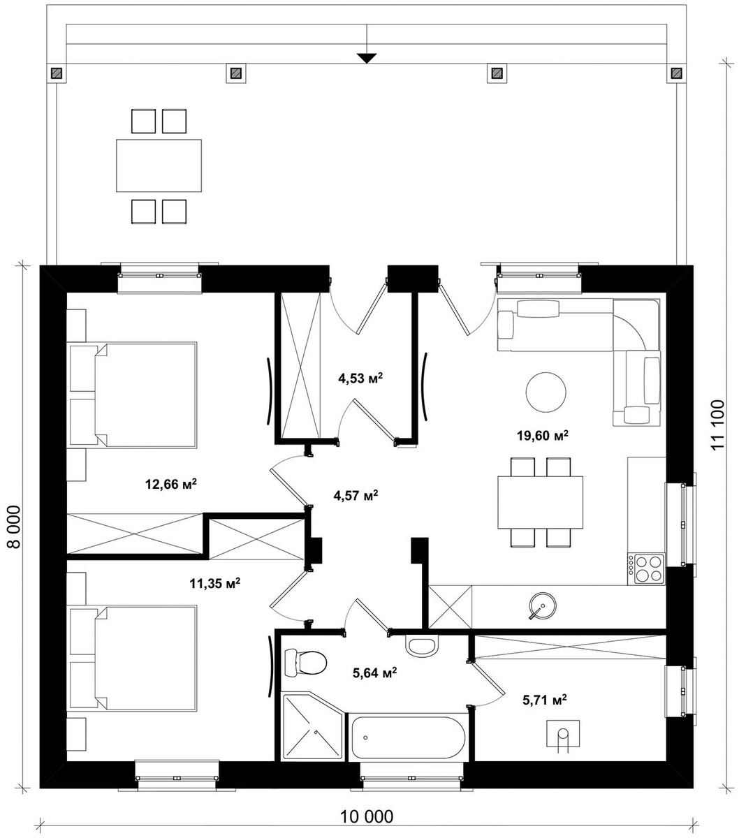
Почти все дома в каталоге готовых проектов ИНВАПОЛИС выполнены со свободной планировкой. Свободная планировка - это отсутствие внутри помещения (будь то дом, квартира или офисное пространство) несущих стен, и при этом такое расположение окон, которое позволяет нарезать комнаты по-разному. В том числе свободная планировка в последнем из представленных на канале проектов, небольшом домике СОФРИНО 👇 ✅ Проект готовый, условия заказа чертежей - на основном сайте На примере этого дома можно видеть, сколько возможностей разного взаиморасположения комнат может быть внутри "коробки" дома, если у неё подходящие для вариантности габариты, и продуманно размещены несущие элементы. Дом запроектирован с двумя несущими столбами посередине. А на уровне верха окон проходит армопояс (совмещена функция армопояса и перемычек проёмов), так что окна можно перемещать по фасаду, как заблагорассудится. Тем более, что внешний вид дома не обязывает соблюдать симметрию, или определять для красоты конкретное место

Почти все дома в каталоге готовых проектов ИНВАПОЛИС выполнены со свободной планировкой.

Свободная планировка - это отсутствие внутри помещения (будь то дом, квартира или офисное пространство) несущих стен, и при этом такое расположение окон, которое позволяет нарезать комнаты по-разному.

В том числе свободная планировка в последнем из представленных на канале проектов, небольшом домике СОФРИНО 👇

✅ Проект готовый, условия заказа чертежей - на основном сайте

На примере этого дома можно видеть, сколько возможностей разного взаиморасположения комнат может быть внутри "коробки" дома, если у неё подходящие для вариантности габариты, и продуманно размещены несущие элементы.

Дом запроектирован с двумя несущими столбами посередине. А на уровне верха окон проходит армопояс (совмещена функция армопояса и перемычек проёмов), так что окна можно перемещать по фасаду, как заблагорассудится. Тем более, что внешний вид дома не обязывает соблюдать симметрию, или определять для красоты конкретное место каждому окну. Всё может быть подчинено плану, и даже корректировки а проект можно вносить по ходу стройки, не боясь что-то ослабить или испортить.

Здесь приводим типовой план и ещё 5 (!!!) возможных вариантов. Можно и ещё придумать, но больше мы не стали, так как наша задача сейчас - показать, что множество вариантов планировок возможны в одном пространстве.

Листайте галерею, в ней 6 планов 👇

Кроме показанного, во всех вариантах можно вместо совмещенного санузла сделать отдельную ванную и туалет, поменять местами кухню и спальню у входа, и много ещё чего.

Также, если спустя годы у вас появятся новые мысли о доме, можно легко устроить новые проёмы в новых местах (перемычка же есть везде), а старые закрыть.

Заказать документацию можно на страничке проекта дома на сайте бюро ИНВАПОЛИС. Проект (с типовым планом) разработан в составе "Паспорт + строительный раздел". Также можно заказать разработку иной планировки.

  • Другие проекты одноэтажных домов ИНВАПОЛИС здесь

► Получать обзоры наших проектов и следить за новостями и можно также в ТЕЛЕГРАММ-КАНАЛЕ ИНВАПОЛИС – подписывайтесь, контент немного отличается.