Найти в Дзене
G-Art Studio

Роскошный дом с террасой и комнатой отдыха: просто жизнь мечты!

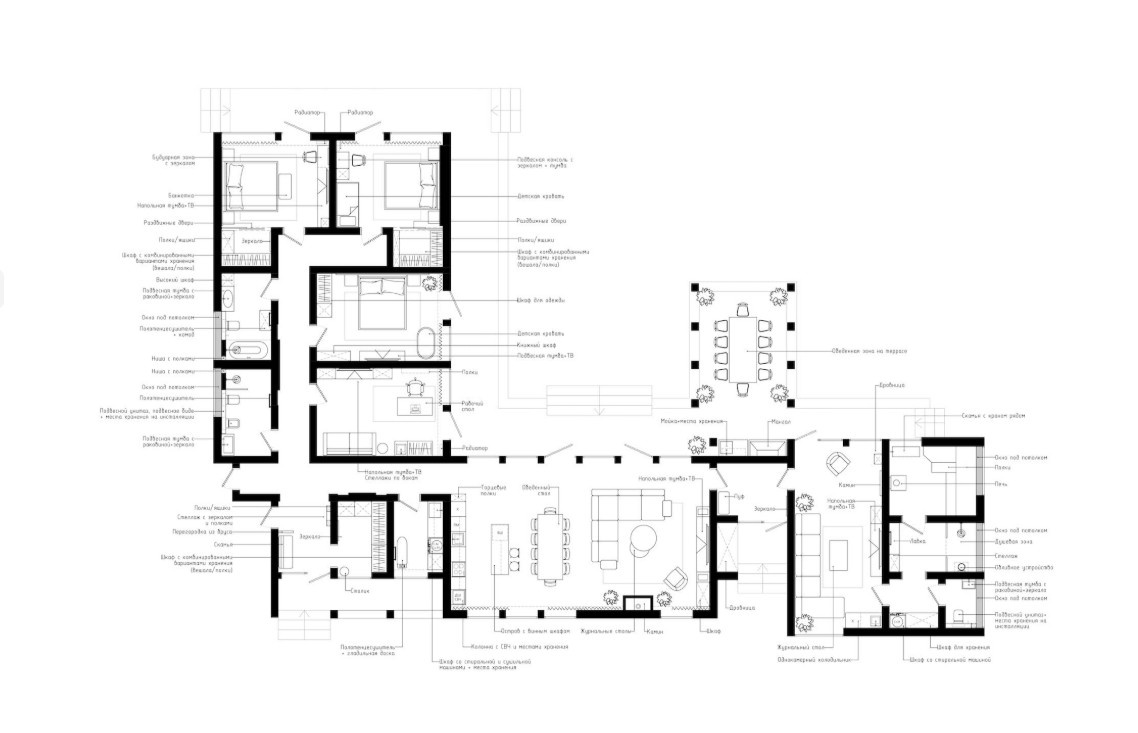
Это один из наших любимых проектов, уютный, теплый и просто очень классный дом. Итак, это дом в коттеджном поселке "Большая вода". Это самый настоящий, сказочный и большой дом, который объединяет уют шале, сдержанную элегантность минимализма и мудрую простоту джапанди. Три таких важных столпа. Внутреннее пространство организовано на принципах минимализма: здесь можно увидеть, что в доминанте - лаконичные формы мебели, монохромная палитра и минимум декора. Всё по плану, все четко и без лишних деталей. Каждая деталь функциональна, линии просты и чётки, а обилие открытых пространств подчёркивает эффект «меньше — больше». Характерно и то, что интерьер выдержан в нейтральных натуральных оттенках, при этом основное внимание уделено качеству материалов и гармонии пространства. Всё именно так, как и хотели заказчики этого проекта. Обсудим с вами сначала входную группу. Она получилась очень стильной, с большим окном и стеклянной дверью. На входе зона со скамьей, за ней крючки для верхней оде
Оглавление

Это один из наших любимых проектов, уютный, теплый и просто очень классный дом.

Итак, это дом в коттеджном поселке "Большая вода". Это самый настоящий, сказочный и большой дом, который объединяет уют шале, сдержанную элегантность минимализма и мудрую простоту джапанди. Три таких важных столпа.
фото и проект автора
фото и проект автора

Внутреннее пространство организовано на принципах минимализма: здесь можно увидеть, что в доминанте - лаконичные формы мебели, монохромная палитра и минимум декора. Всё по плану, все четко и без лишних деталей. Каждая деталь функциональна, линии просты и чётки, а обилие открытых пространств подчёркивает эффект «меньше — больше».

Характерно и то, что интерьер выдержан в нейтральных натуральных оттенках, при этом основное внимание уделено качеству материалов и гармонии пространства. Всё именно так, как и хотели заказчики этого проекта.

Обсудим с вами сначала входную группу. Она получилась очень стильной, с большим окном и стеклянной дверью. На входе зона со скамьей, за ней крючки для верхней одежды, эта зона отделена перегородкой из реек, чтобы все было лаконично, и отсутствовал визуальный шум. Стена за скамьей выделена латунным большими листами, который отлично сочетается с деревом. В самом гардеробе мы спланировали комбинированную систему хранения с открытыми и закрытыми шкафами, также установив тут еще одно большое зеркало. Как известно, зеркала зрительно увеличивают пространство, а в этой зоне нам это на руку.

фото и проект автора
фото и проект автора

КУХНЯ-ГОСТИНАЯ

фото и проект автора
фото и проект автора

Далее мы переходим с вами в самое любимое заказчиками пространство - кухню-гостиную. Она большая, очень просторная, светлая и все ее просто обожают. Ее метраж 60 кв. м.

фото и проект автора
фото и проект автора

Она оформлена в современной эклектике с элементами природной эстетики. В отделке использованы текстуры натурального дерева, камня и металла, дорого и элегантно.

фото и проект автора
фото и проект автора

Центральным акцентом выступает авторский светильник, который как бы объединяет зону отдыха и обеденный стол. Еще не можем не отметить этот совершенно чудесный мягкий модульный диван, кофейный стол из спила дерева и камин. Ну просто гостиная мечты, правда?

фото и проект автора
фото и проект автора

Спальня №1

фото и проект автора
фото и проект автора

Эта комната - еще один гимн уюту и красоте! Интерьер спальни наполнен светом, природными фактурами и ощущением покоя, как должно и быть. Тут имеется весьма интересный акцент - деревянная вставка в изголовье кровати, подчёркнутая текстурной штукатуркой с круговыми рельефами. А еще мы добавили сюда хрупкую люстру в форме ветвей, это придает воздушности всей концепции пространства.

фото и проект автора
фото и проект автора

Спальня №2

фото и проект автора
фото и проект автора

Интерьер здесь уже совсем другой, более брутальный и мужской. Мы оформили ее в теплой палитре и постарались сделать акцент на натуральные материалы.

фото и проект автора
фото и проект автора

Глубокие оттенки дерева сочетаются с графитовыми поверхностями и мягким текстилем. В парадигме этой комнаты прекрасно смотрится темная, акцентная стена и в тандеме с ней уютная подсветка.

фото и проект автора
фото и проект автора

Также мы сделали здесь встроенную систему хранения и компактную рабочую зону. Пространство должно быть по максимуму функциональным.

фото и проект автора
фото и проект автора

Ванная комната

фото и проект автора
фото и проект автора

В ванной комнате тоже превалирует стилистика минимализма. Она оформлена в светлой натуральной гамме с акцентом на текстуру дерева.

фото и проект автора
фото и проект автора

Стены отделаны светлым керамогранитом с мягким рисунком, перекликающимся с древесной отделкой. Минимализм тут присутствует и в лаконичности мебели. Вы видите открытые полки, подсветку и смарт-зеркало. А как вам черная сантехника? Не слишком брутально? )

фото и проект автора
фото и проект автора

Комната отдыха

фото и проект автора
фото и проект автора

Да-да, здесь имеется и комната отдыха! Это супер уютное, теплое пространство, из которого не хочется уходить. Смотрите, как здесь хорошо! Деревянные стены и мебель отсылают нас к уютным шале в Провансе.

фото и проект автора
фото и проект автора

Центральным декоративным элементом выступает панно из спилов дерева, дополненное бра, создающими мягкое рассеянное освещение. Пространство зонировано на комфортную лаунж-зону с диванами и мини-кухней, а панорамные окна обеспечивают визуальное единение с садом. Очень даже концептуально получилось!

фото и проект автора
фото и проект автора

Парная

Мечта многих, правда? Как здорово, когда парная есть в доме! Здесь имеется каменка, облицованная толькохлоритом. На противоположной стороне угловая зона для парения из массива Кело. Стены облицованы полубревном келло, а потолок доской келло, что добавит огромный тепловой запас для помещения и незабываемый аромат в скупе с травами. Для фанатов парений - это просто еще один закрытый гештальт!

фото и проект автора
фото и проект автора

Терраса

фото и проект автора
фото и проект автора

Ну и чтобы удивить вас окончательно, мы расскажем, что из гостиной и комнаты отдыха можно попасть на террасу в зону барбекю. Центральным элементом выступает массивный деревянный стол с лаконичными черными стульями, рассчитанный на большую компанию. Фасад кухни выполнен из темного дерева и графитового металла, дополняется встроенной печью и грилем. Всё, что нужно для классного, комфортного и просто роскошного отдыха!

фото и проект автора
фото и проект автора

Как вам такой дом? Хотели бы в нем жить?

---------------------------------

Благодарим вас за то, что читаете наш блог, не забывайте на него подписываться!

Получить нашу консультацию можно здесь.

Рассчитать стоимость вашего дизайн-проекта здесь.

Поддержать автора донатами можно по ссылке.