Найти в Дзене

Сколько санузлов должно быть в доме?

При проектировании дома будущие владельцы часто задаются вопросом: сколько санузлов нужно в частном доме? На первый взгляд ответ очевиден — чем больше, тем лучше. Но на практике всё зависит от множества факторов: планировки, количества проживающих, бюджета и даже образа жизни семьи. Количество санузлов напрямую связано с архитектурным решением. В одноэтажном доме площадью до 70 м² обычно достаточно одного санузла, совмещённого с ванной. В домах площадью от 120 м² и выше нередко проектируют 2-3 санузла: хозяйский (при спальне владельцев), общий и гостевой. При разработке планировки дома все эти нюансы учитываются ещё на этапе проектирования — чтобы инженерные системы были логичными и не усложняли строительство. Если дом предназначен для двух человек, одного санузла обычно достаточно. В семье с детьми удобнее, когда есть отдельный туалет или дополнительная ванная. Если вместе живут несколько поколений — стоит предусмотреть санузел для пожилых родственников на первом этаже (если дом двухэ
Оглавление

При проектировании дома будущие владельцы часто задаются вопросом: сколько санузлов нужно в частном доме? На первый взгляд ответ очевиден — чем больше, тем лучше. Но на практике всё зависит от множества факторов: планировки, количества проживающих, бюджета и даже образа жизни семьи.

Планировка и площадь дома

Количество санузлов напрямую связано с архитектурным решением.

В одноэтажном доме площадью до 70 м² обычно достаточно одного санузла, совмещённого с ванной.

В домах площадью от 120 м² и выше нередко проектируют 2-3 санузла: хозяйский (при спальне владельцев), общий и гостевой.

При разработке планировки дома все эти нюансы учитываются ещё на этапе проектирования — чтобы инженерные системы были логичными и не усложняли строительство.

Состав семьи и образ жизни

Если дом предназначен для двух человек, одного санузла обычно достаточно.

В семье с детьми удобнее, когда есть отдельный туалет или дополнительная ванная.

Если вместе живут несколько поколений — стоит предусмотреть санузел для пожилых родственников на первом этаже (если дом двухэтажный). Это вопрос не роскоши, а комфорта и безопасности.

Для домов, где часто принимают гостей, актуален гостевой туалет — компактный, но расположенный рядом с гостиной или прихожей.

Экономическая сторона вопроса

Каждый дополнительный санузел — это не только комфорт, но и затраты: на сантехнику, вентиляцию, инженерные коммуникации, отделку и дальнейшее обслуживание. Иногда рациональнее сделать один просторный и хорошо спроектированный санузел, чем несколько тесных.

Перспектива на будущее

Дом — это инвестиция на годы. Даже если сейчас в нём живёт пара, стоит предусмотреть возможность установки второго санузла в будущем. Закладные под воду и канализацию можно сделать заранее — это не сильно увеличит бюджет, но даст гибкость при перепланировке.

Вывод

Нет универсального ответа на вопрос, сколько санузлов должно быть в доме. Оптимальное количество зависит от площади, планировки, состава семьи и бюджета. Главное — продумать всё заранее и доверить проектирование специалистам.

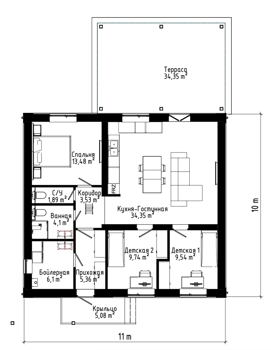
Планировка дома 88-127 в коттеджном посёлке "Победа" в Сургуте
Планировка дома 88-127 в коттеджном посёлке "Победа" в Сургуте

В коттеджном посёлке "Победа" мы разработали универсальные 4 проекта, которые будут оптимальны под каждый тип семьи.

Но у вас есть возможность разработать собственную планировку под свой сценарий жизни в загородном доме на этапе адаптации.

Записывайтесь на консультацию: +7 (3462) 27-14-22