Найти в Дзене

Архитектурный проект двухэтажного дома площадью 150 кв. м.

Завершён архитектурный проект уютного и функционального двухэтажного дома площадью 150 кв. м — пространства, где продуманная планировка встречается с лаконичной эстетикой. На первом этаже расположены светлая кухня-гостинная, гостевая спальня, удобный санузел, компактная котельная и технические помещения. Второй этаж отведён под приватную зону: три спальни, включая главную с гардеробной, и общий санузел создают комфортную атмосферу для отдыха всей семьи. Проект выдержан в духе современной классики: белый фасад, цоколь под натуральный камень и небольшая терраса подчёркивают сдержанную элегантность и гармонию с окружением. Если вы мечтаете о таком проекте — уникальном, продуманном до мелочей и созданном именно под ваш образ жизни, — мы готовы превратить вашу идею в архитектурную реальность. Каждый наш дом рождается в диалоге с заказчиком: без шаблонов, без компромиссов, только индивидуальное проектирование, внимание к деталям и уважение к вашему пространству.
Оглавление

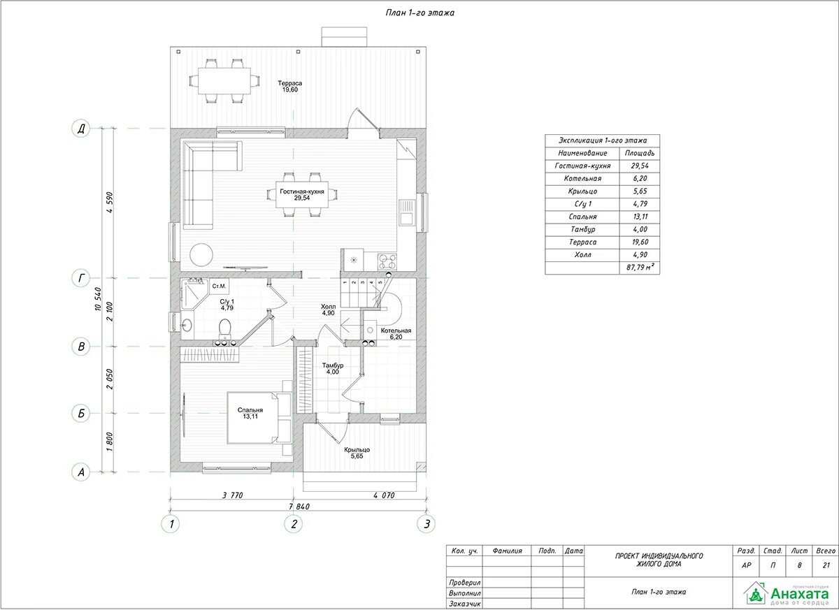
Завершён архитектурный проект уютного и функционального двухэтажного дома площадью 150 кв. м — пространства, где продуманная планировка встречается с лаконичной эстетикой. На первом этаже расположены светлая кухня-гостинная, гостевая спальня, удобный санузел, компактная котельная и технические помещения.

Второй этаж отведён под приватную зону: три спальни, включая главную с гардеробной, и общий санузел создают комфортную атмосферу для отдыха всей семьи. Проект выдержан в духе современной классики: белый фасад, цоколь под натуральный камень и небольшая терраса подчёркивают сдержанную элегантность и гармонию с окружением.

Архитектурные планы

Архитектурный план 1 этажа
Архитектурный план 1 этажа
Архитектурный план 2 этажа
Архитектурный план 2 этажа

Дом в разрезах

Разрез 1-1
Разрез 1-1
Разрез 3-3
Разрез 3-3
Разрез 2-2
Разрез 2-2

Фасады дома

Фасад в осях 1-4
Фасад в осях 1-4
Фасад в осях 4-1
Фасад в осях 4-1
Фасад в осях Д-А
Фасад в осях Д-А
Фасад в осях А-Д
Фасад в осях А-Д

Визуализация дома

-11
-12
-13
-14

Если вы мечтаете о таком проекте — уникальном, продуманном до мелочей и созданном именно под ваш образ жизни, — мы готовы превратить вашу идею в архитектурную реальность. Каждый наш дом рождается в диалоге с заказчиком: без шаблонов, без компромиссов, только индивидуальное проектирование, внимание к деталям и уважение к вашему пространству.