Найти в Дзене

Как читать архитектурный проект: 5 ключевых моментов, которые должен понять каждый заказчик

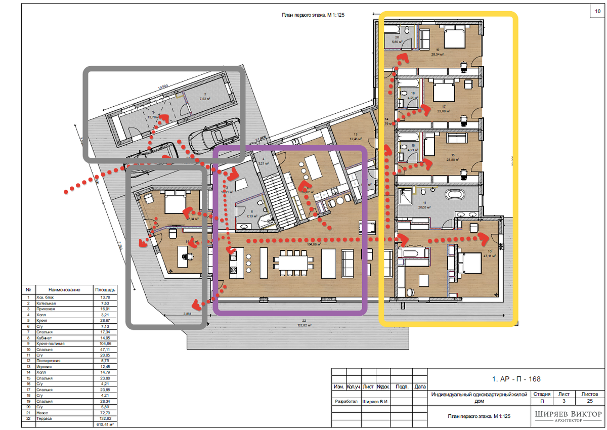
Вам показывают папку с чертежами или файл с 3D-картинкой. Вы киваете, стараясь понять эти линии, цифры и странные обозначения. В голове одна мысль: «Выглядит красиво, но я ведь не архитектор... Как проверить, то ли это, о чем мы договаривались?» Я, Ширяев Виктор Игоревич, как частный архитектор, уверяю вас: умение «читать» проект — это ваш главный инструмент для контроля. Вам не нужно разбираться в тонкостях ГОСТов. Достаточно понять 5 ключевых вещей. Поехали! Момент 1: Планировочные решения — «Дом, в котором удобно жить» Это «душа» вашего дома. Смотрите не на картинки, а на логику. 1. Зонирование: четко ли разделены общественные зоны (гостиная, кухня) и приватные (спальни, кабинет)? Не проходит ли путь в спальню через гостиную? Нет ли за кроватью стенки за которой общий туалет? 2. Маршруты: мысленно пройдите по дому. Удобно ли нести продукты из машины на кухню? Как дети будут бегать из своей комнаты в санузел? 3. Размеры: Найдите размеры комнат. Сравните их с вашей нынешней квартирой.

Вам показывают папку с чертежами или файл с 3D-картинкой. Вы киваете, стараясь понять эти линии, цифры и странные обозначения. В голове одна мысль: «Выглядит красиво, но я ведь не архитектор... Как проверить, то ли это, о чем мы договаривались?»

Я, Ширяев Виктор Игоревич, как частный архитектор, уверяю вас: умение «читать» проект — это ваш главный инструмент для контроля. Вам не нужно разбираться в тонкостях ГОСТов. Достаточно понять 5 ключевых вещей. Поехали!

Момент 1: Планировочные решения — «Дом, в котором удобно жить»

-2

Это «душа» вашего дома. Смотрите не на картинки, а на логику.

  • Что смотреть?

1. Зонирование: четко ли разделены общественные зоны (гостиная, кухня) и приватные (спальни, кабинет)? Не проходит ли путь в спальню через гостиную? Нет ли за кроватью стенки за которой общий туалет?

2. Маршруты: мысленно пройдите по дому. Удобно ли нести продукты из машины на кухню? Как дети будут бегать из своей комнаты в санузел?

3. Размеры: Найдите размеры комнат. Сравните их с вашей нынешней квартирой. 15 м² для спальни — это много или мало? Лайфхак: Расставьте на полу в квартире мебель по размерам из проекта. Поймете, насколько просторно будет. Или съездите на выставку готовых домов, чтобы посмотреть вживую.

  • Вопрос архитектору: «Покажите, как мы будем перемещаться по дому в будний день и в выходные?»

Момент 2: Фасады и визуализация — «Тот ли это дом?»

-3

Красивая картинка — это хорошо, но она может быть обманчива. Ваша задача — понять, что скрывается за рендером.

  • Что смотреть?

1. Соответствие планировке: Окна на визуализации должны точно соответствовать окнам на плане. Большое панорамное окно в гостиной есть и там, и там?

2. Материалы: Найдите на чертежах пояснения (экспликацию материалов). Чем будет отделан фасад: штукатурка, кирпич, дерево? А не просто «красивая текстура».

3. Пропорции: Соразмерны ли этажи, окна, кровля? Не выглядит ли дом приземистым или, наоборот, громоздким?

  • Вопрос архитектору: «Это финальный вариант материалов или подборка для образа? Где на чертежах указан тип штукатурки/сайдинга?»

Момент 3: Разрезы — «Что внутри стен?»

-4

Если план — это вид сверху, то разрез — это вид сбоку. Самый недооцененный, но критически важный чертеж.

  • Что смотреть?

1. Высоты: Найдите отметки высот чистого потолка. Это не «примерно три метра», а точная цифра, например, 2.85 м.

2. Лестница: внимательно изучите разрез в зоне лестницы. Удобный ли уклон? Достаточно ли места над головой на втором этаже?

3. Конструктив: посмотрите на толщину стен, перекрытий и конструкцию кровли. Это дает понимание о составе конструкций.

  • Вопрос архитектору: «Какая итоговая чистовая высота потолка на первом этаже с учетом всех отделочных материалов? Удобно ли будет заносить по этой лестнице высокую мебель?»

Момент 4: Спецификации окон и дверей — «Дьявол в деталях»

-5

Окна — это не просто дыры в стене. Их размер и расположение определяют освещенность и комфорт.

  • Что смотреть?

1. Маркировка: На планах и фасадах все окна и двери имеют маркировку (например, ОК-1, ДВ-2). Можно на спецификации также обозначить открывания окон.

2. Таблица: Найдите таблицу (спецификацию), где расшифрована эта маркировка. Там должны быть точные ширины и высоты.

3. Логика: Соответствуют ли размеры окон назначению комнаты? Большие — в гостиной, стандартные — в спальне, маленькие — в санузле.

  • Вопрос архитектору: «Почему мы выбрали такое окно для кухни? Можно ли его сделать шире для лучшего вида?»

Момент 5: Ведомость материалов — «А что внутри?»

-6

Это ваша защита от слов подрядчика «а мы тут решили немного иначе». Здесь зафиксировано ВСЕ.

  • Что смотреть?

1. По конструкциям: Ведомость материалов для всех ограждающих конструкций – фундамент, перекрытия, окна, кровля.

2. Конкретика: не «газобетон», а газобетон D400, 400 мм. Не «бетон», а бетон В22,5, W6.

3. Узлы: все узлы соединений между ограждающими конструкциями. Фундамент со стенами, стены с перекрытиями и т.д.

  • Вопрос архитектору: «Эта ведомость материалов — часть пакета документов, который мы передадим подрядчику для точного расчета сметы?»

Краткий чек-лист при получении проекта:

1. План: Удобны ли маршруты и размеры комнат?

2. Фасады: соответствуют ли материалы и окна тому, что на плане?

3. Разрез: устраивают ли вас высоты потолков и лестница?

4. Окна/двери: Проверьте размеры по таблице.

5. Материалы: есть ли детальная ведомость по материалам?

Помните: проект — это не картинка для красоты. Это юридический, технический и финансовый документ, который защищает ваши интересы при работе с подрядчиком по строительству. Если вы понимаете эти 5 моментов, вы перестаете быть просто зрителем и становитесь главным участником процесса создания своего дома.

А вы когда-нибудь видели архитектурный проект? Что показалось самым сложным для понимания? Задавайте вопросы в комментариях, разберем любую непонятную деталь!

Архитектор Ширяев Виктор Игоревич. Создание комплексных проектов загородных домов

▸ От эскиза до рабочей документации
▸ Контроль реализации на объекте

→ vk: https://vk.com/shiryaevarch

→ Связь: https://t.me/shiryaev_arch

#архитектурныйпроект #читатьчертежи #проектдома #строительстводома #ИЖС #архитектор #каквыбратьпроект #частныйдом #загородныйдом #советыархитектора